The project consists of three houses: two residential ones for friends, and one common one, intended for meetings and joint recreation. The houses are located on neighboring plots and are united by a single architectural logic - the desire for privacy, comfort and spatial purity.

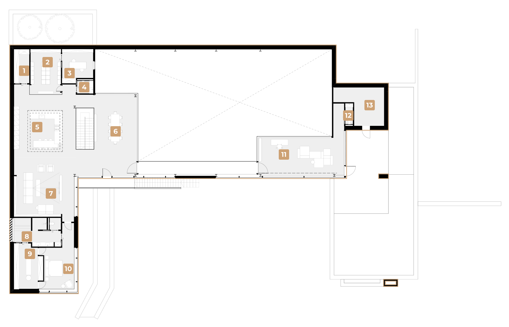
The first house is located on an elongated plot, which determined its oblong shape. The architecture is built around the idea of privacy, without compromising natural light. The main element is a light "floating" wall, hiding the interior space from the street, but not blocking the light thanks to panoramic glazing.

| 1. | Utility room | 23.08 |
| 2. | Garage | 58.8 |
| 3. | Storage room | 17.88 |
| 4. | Office | 22.99 |
| 5. | Common area | 152.22 |
| 6. | Kitchen | 24.59 |
| 7. | Bathroom | 3.35 |
| 8. | Ironing | 4.48 |
| 9. | Pantry | 13.41 |
| 10. | Children's | 11.59 |
| 11. | Master bedroom | 47.38 |
| 12. | Master bathroom | 19.11 |

| 1. | Game | 67.36 |
| 2. | Bedroom | 28.17 |
| 3. | Bathroom | 6.14 |
| 4. | Bedroom | 36.38 |
| 5. | Bathroom | 6.64 |
| 6. | Pantry | 43.23 |
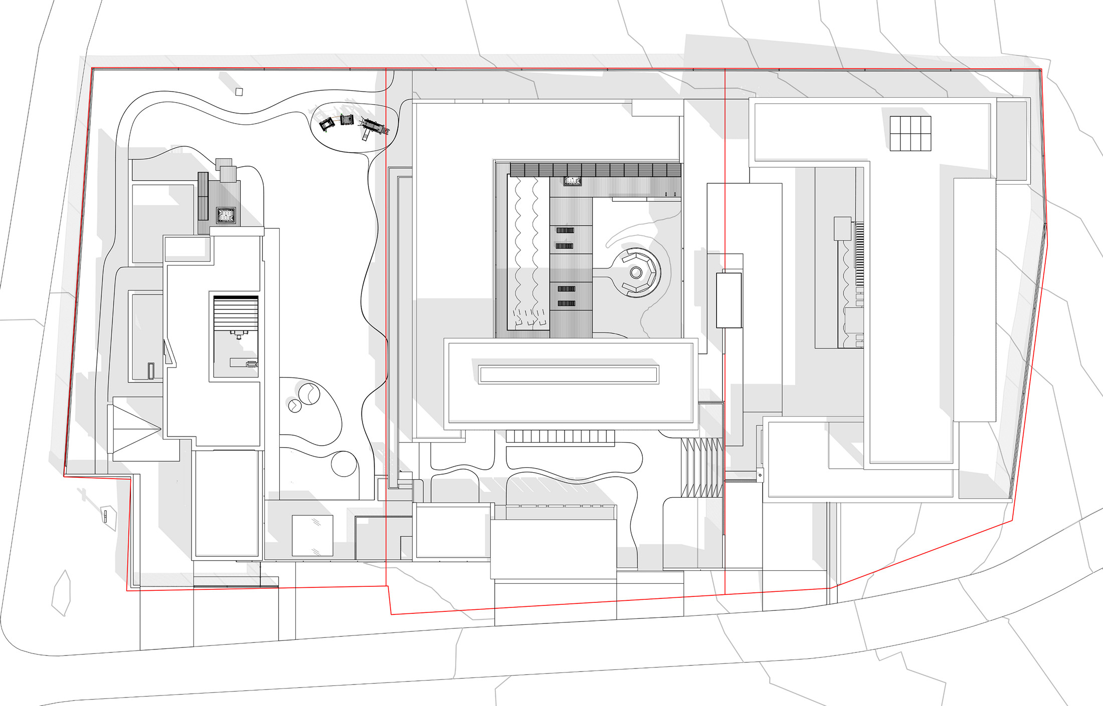
The common house, located between the two main houses, serves as a public space. It separates the courtyard from the street and neighbors, creating a protected, closed environment. The architecture is turned toward the courtyard and is organized according to the principle of an inverted letter P. The space inside is open, without corridors, the zones flow smoothly into each other, along the perimeter there is a gallery connecting the house and the courtyard with a terrace, pool, jacuzzi and fire pit.

| 1 | Hall | 21.98 |
| 2 | Wardrobe | 4.83 |
| 3 | Bathroom | 7.77 |
| 4 | Living room | 46.24 |
| 5 | Utility | 5.33 |
| 6 | Dining room | 17.64 |
| 7 | Kitchen | 18.75 |
| 8 | Billiard room | 38.32 |
| 9 | Dance hall | 60.05 |
| 10 | Gaming | 38.56 |
| 11 | Gaming | 34.82 |
| 12 | Gallery | 13.63 |
| 13 | Gym | 26.13 |
| 14 | Changing room | 9.59 |
| 15 | Massage | 16.9 |
| 16 | SPA | 66.59 |
| 17 | Sauna | 4.22 |
| 18 | Bathroom | 4.44 |
| 19 | Stairs | 8.25 |
| 20 | Staff vestibule | 2.16 |
| 21 | Hall staff | 6.51 |
| 22 | Staff break room | 22.58 |
| 23 | Laundry | 11.29 |
| 24 | Bathroom personnel | 3.67 |
| 25 | Staff bedroom | 10.16 |
| 26 | Staff bedroom | 11.06 |
| 27 | Corridor | 24.25 |
| 28 | Rough kitchen | 21.14 |
| 29 | Pantry | 7.93 |
| 30 | Cold pantry | 4.92 |

| 1 | Corridor | 26.69 |
| 2 | Guest bedroom | 20.82 |
| 3 | Bathroom | 6.99 |
| 4 | Guest bedroom | 21.76 |
| 5 | Bathroom | 4.32 |
| 6 | Guest bedroom | 19.43 |
| 7 | Bathroom | 4.22 |
| 8 | Guest bedroom | 19.35 |
| 9 | Bathroom | 4.23 |
| 10 | Guest bedroom | 19.31 |
| 11 | Bathroom | 4.25 |
| 12 | Balcony | 6.65 |
The second house is built deep in the plot and is oriented towards maximum privacy. Compositionally, it is a closed U-shaped structure. The house begins with a checkpoint at the entrance, where a point for receiving deliveries via QR access is organized without the need to enter the house. The central element is a hangar that unites spaces, with a double-height volume, linear glazing and a rotating platform. The residential part of the house is as remote as possible and has a visually hovering console part - a 12-meter span supported by just one glass column.

| 1 | Hall | 23.02 |
| 2 | Wardrobe | 10.34 |
| 3 | Laundry | 10.51 |
| 4 | Guest bathroom | 2.83 |
| 5 | Storage | 6.28 |
| 6 | Guest Bathroom | 5.46 |
| 7 | Guest Bedroom | 18.1 |
| 8 | Guest Bathroom | 5.46 |
| 9 | Guest bedroom | 17.99 |
| 10 | Corridor | 23.66 |
| 11 | Stairs | 10.36 |
| 12 | Hangar with cars | 336.32 |
| 13 | Workshop | 44.77 |
| 14 | Wash | 42.52 |
| 15 | Warehouse | 15.1 |
| 16 | Hangar ventilation chamber | 17.08 |
| 17 | Security toilet | 7.1 |
| 18 | Technical room | 10.56 |
| 19 | Security room | 25.73 |
| 20 | Boiler room | 8.45 |

| 1 | Storage room | 7.14 |
| 2 | Lego showroom | 19.08 |
| 3 | Room for lego | 13.22 |
| 4 | Bathroom | 2.84 |
| 5 | Kitchen | 57.53 |
| 6 | Dining room | 57.35 |
| 7 | Living room | 50.49 |
| 8 | Master bathroom | 16.45 |
| 9 | Wardrobe Master | 16.29 |
| 10 | Master bedroom | 22.04 |
| 11 | Cabinet | 49.93 |
| 12 | Bathroom | 2.19 |
| 13 | Terrace furniture storage | 20.25 |
Interested in our full portfolio? Click below to view all of our completed projects.