While many homes in Hideout use busy, complex rooflines to mimic the mountains, the Zaripov Residence takes a cleaner approach. Our goal was to beat the traditional cabin at its own game pairing the cozy, grounded feel of a mountain retreat with a sharp, minimalist aesthetic. The design uses familiar gabled forms but strips away the clutter to focus on light and local connection.
The house is positioned on a steep, 0.19-acre lot. By placing the home on a high, stone-clad foundation, we achieved two things visible in the landscape the main living areas are raised above the street level, allowing for massive windows that remain private from passersby and the orientation that captures a wide, unobstructed view of Jordanelle State Park and the reservoir. To handle the Utah winter, the dark exterior panels absorb solar heat, while the deep overhangs and stone base provide a sense of heavy, protective shelter against the elements.
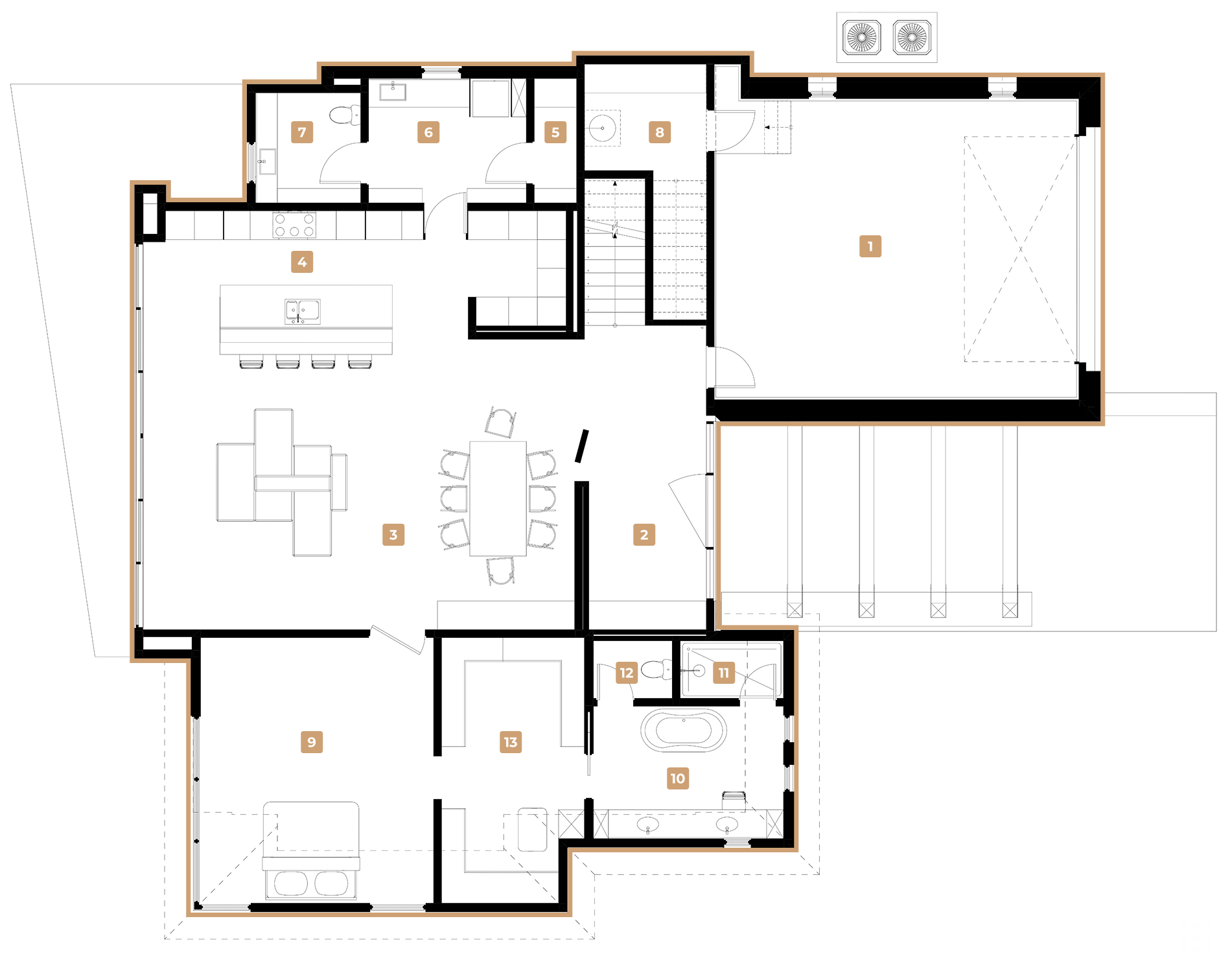
The house is designed around a sequence of reveal and retreat. Visitors enter either through the spacious two-car garage or under a deep, timber-lined architectural canopy that protects the front door from snow.
The ground floor features a kitchen, dining, and living area designed for year-round sun. As seen in the rear renderings, the entire wall consists of floor-to-ceiling glass. In summer, these walls slide open completely to merge the interior with the mountainside grass and terrace. A short walk leads to the primary bedroom, where the bedroom faces the brush-covered slope. The bathroom and walk-in closet are tucked toward the hill-wall, using narrow, vertical windows to maintain privacy without losing natural light.
A central family room acts as a light well for the rest of the house, using dual-aspect windows, designed to allow the residents to bask in the sun year-round. A dedicated terrace also faces the back of the house from this central hub. The upper floor houses three additional bedrooms secondary primary suite featuring a double vanity and a spacious walk-through walk-in closet. On the opposite side of the family room are two compact kids' bedrooms, each highlighted by corner windows.
The exterior materials are chosen to reflect the Utah landscape through a high-contrast, modern palette. A towering fieldstone chimney acts as the house’s spine, providing a traditional focal point that grounds the modern silhouette.
We balanced rugged stone cladding on the lower levels with warm, vertical wood siding and matte charcoal panels above. Corner windows break up the solid walls. The thin black frames disappear into the dark facade, making the glass feel like it wraps around the building. Visible floor slabs and exposed rafter tails under the eaves give the house a crisp, engineered look, signaling that this is a contemporary evolution of the mountain home.

Get an individual consultation with our architect and find out the price for your project
Interested in our full portfolio? Click below to view all of our completed projects.