Catskill HOUSE

Residential Architecture, NY
  • Studio: ZROBIM architects
  • Location: Catskill, NY
  • Area: 4521 ft2
  • Year: 2021

Project Description

The design of this house is deeply influenced by its natural surroundings. The property is situated on a large plot with varied terrain and stunning mountain views. A dense forest originally covered the area we chose to preserve, allowing the house to blend seamlessly with its environment.

The architecture integrates with the landscape, achieved through extended roof overhangs and reflective glazing on the facade, mirroring the surrounding scenery.

The complex includes two buildings: a main house and a guest house. The main house is divided into functional areas, with a shared living space, a spa section, and a sleeping area on the second floor. The spa block is positioned to be easily accessible for both homeowners and guests, maintaining privacy for all without compromising convenience.

  • Catskill HOUSE

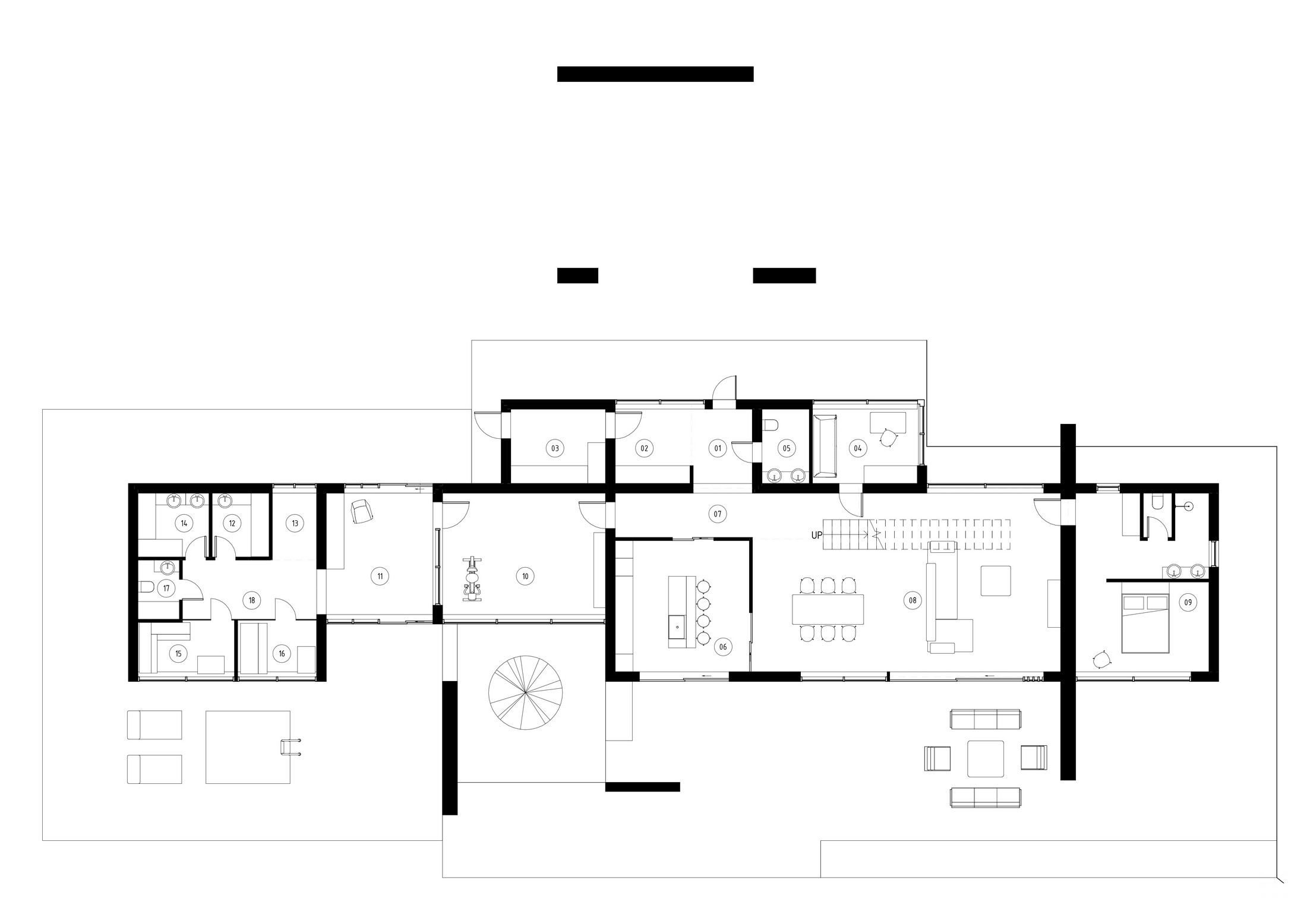
1st floor plan

1st floor plan
Plan details

2st floor plan

2nd floor plan
Plan details

Plan of 1 floors of the guest house

3rd floor plan
Plan details

Plan of 2 floors of the guest house

4th floor plan
Plan details

See an overview of the project



Like this project?

Get an individual consultation with our architect and find out the price for your project


Our projects

Interested in our full portfolio? Click below to view all of our completed projects.

Book A Consultation
And we will answer any questions you have