WINTERFELL ESTATE

Residential Architecture, CA
  • Studio: ZROBIM architects
  • Location: Truckee, CA
  • Area: 6244.35 ft2
  • Year: 2023

Project Description

Our primary goal for this project was to create a dream home for our clients on a challenging plot with a 54 sq. ft. elevation drop situated along a stunning mountain ridge.

As with many projects in the United States, we faced several constraints, including limitations on the building footprint, site height, access methods, and other local regulations. Despite these challenges, we successfully designed a project that works within these restrictions, centered around an innovative internal structure. We moved away from conventional layouts with long corridors and rooms on either side, instead designing complex multi-level zones. Key areas such as the master bedroom and living room feature expansive double-height spaces, enhanced by large panoramic windows that capture breathtaking views.

To reflect the surrounding Californian mountain landscape, we carefully selected natural materials for the finishes, including slate, metal, wood, and concrete.

  • WINTERFELL ESTATE

Ground floor plan

Basement floor plan
Plan details

Вasement floor plan

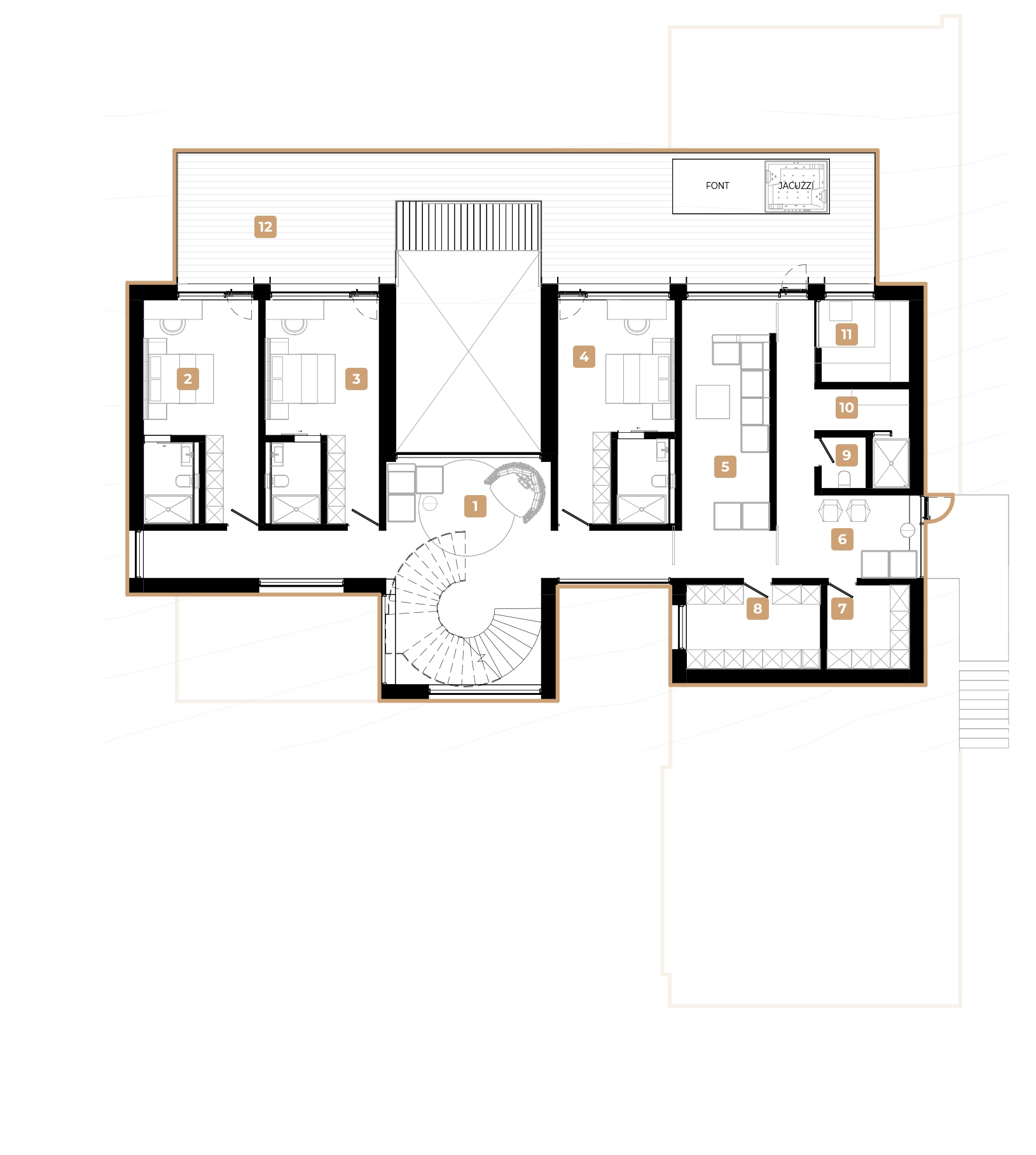
1st floor plan
Plan details


Like this project?

Get an individual consultation with our architect and find out the price for your project


Our projects

Interested in our full portfolio? Click below to view all of our completed projects.

Book A Consultation
And we will answer any questions you have