OMNI ESSENCE

Architectural project
  • Studio: ZROBIM architects
  • Area: 436,3 m2
  • Year: 2022

Project Description

Unlike many other residences in Ecopolis ESSENCE, this home is situated on a flat plot, which significantly influenced its architectural design and visual characteristics. The layout was carefully planned to respect the plot's rounded edges and the presence of mature fir trees, resulting in a complex, multi-tiered structure. The house seamlessly integrates interior public spaces with the courtyard through a system of terraces and a gazebo.

The primary material used for the façade is a rich, dark-toned wood, which extends into the interior design, further connecting the home with its natural surroundings.

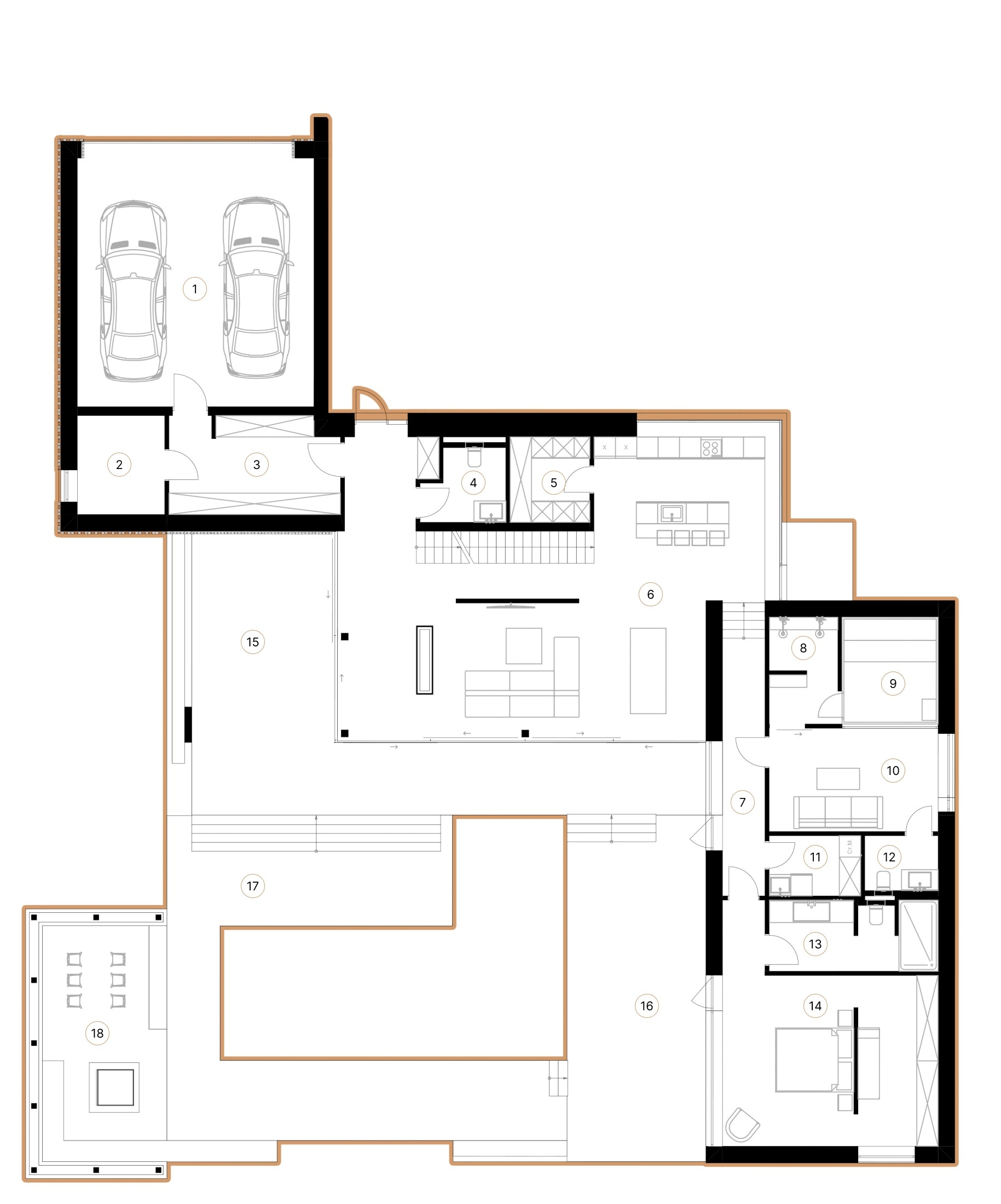
1st floor plan

1st floor plan
Plan details

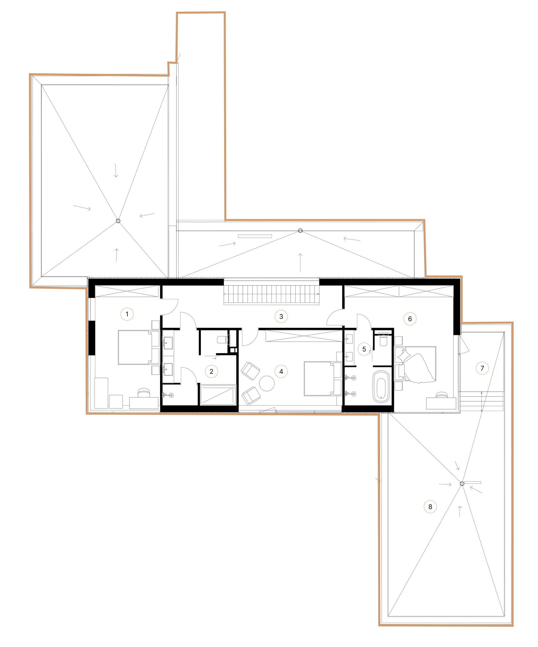
2nd floor plan

2nd floor plan
Plan details


Like this project?

Get an individual consultation with our architect and find out the price for your project


Our projects

Interested in our full portfolio? Click below to view all of our completed projects.

Book A Consultation
And we will answer any questions you have