OMNI ESSENCE INTERIOR

Private house
  • Studio: ZROBIM architects
  • Area: 4696 ft2
  • Year: 2022

Project Description

The interiors of all Essence Ecopolis residences serve as a natural extension of the architecture. The strict geometry, clear composition, and use of natural materials reflect the complex's unity with its natural surroundings.

In this project, we used contrasting materials in natural shades to define distinct zones. Against a backdrop of light tones, accents of dark wood and gray-blue stone add depth. The natural motifs, harmonious tones, and designer furniture make this interior both expressive and comfortable.

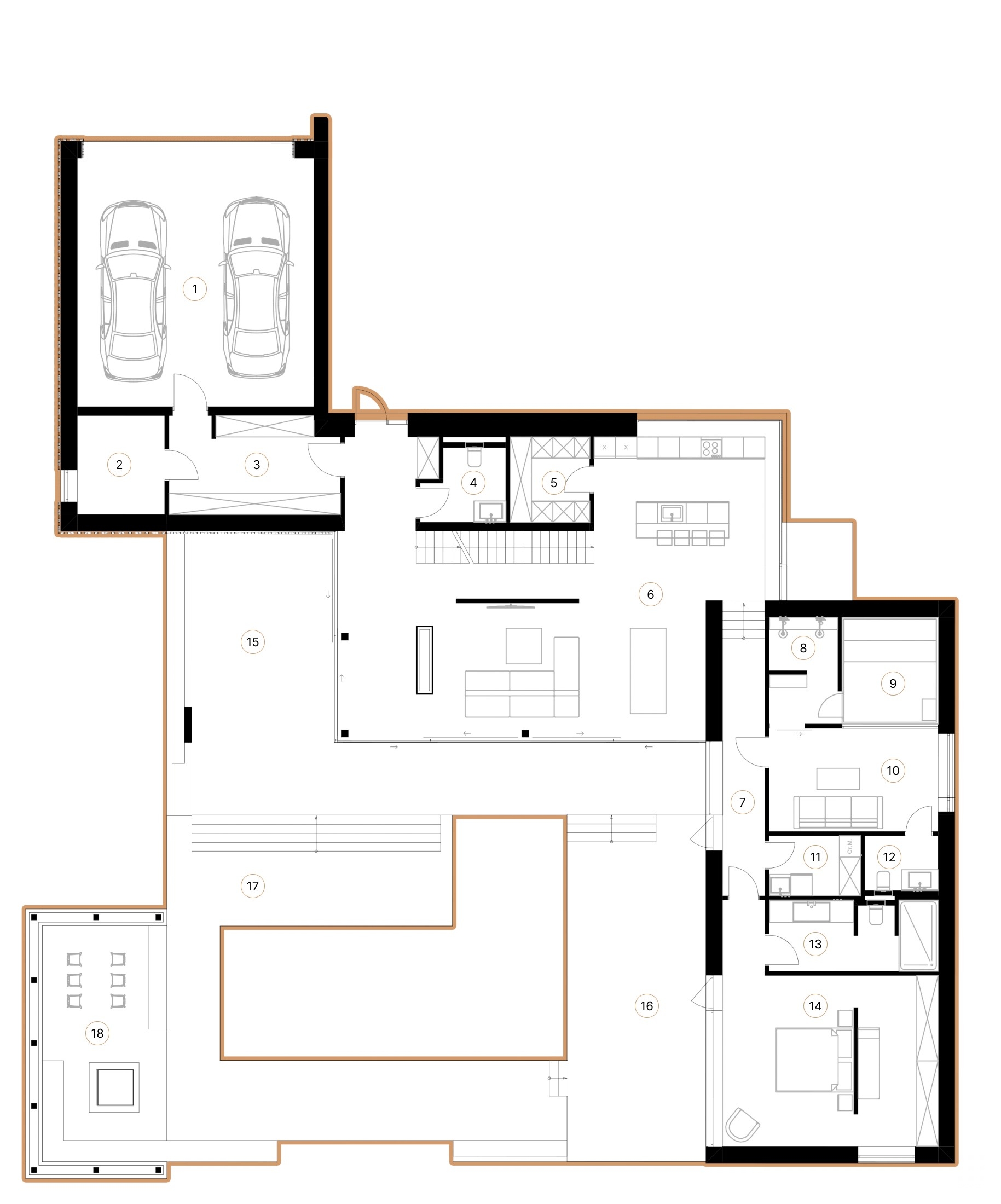
1st floor plan

1st floor plan
Plan details

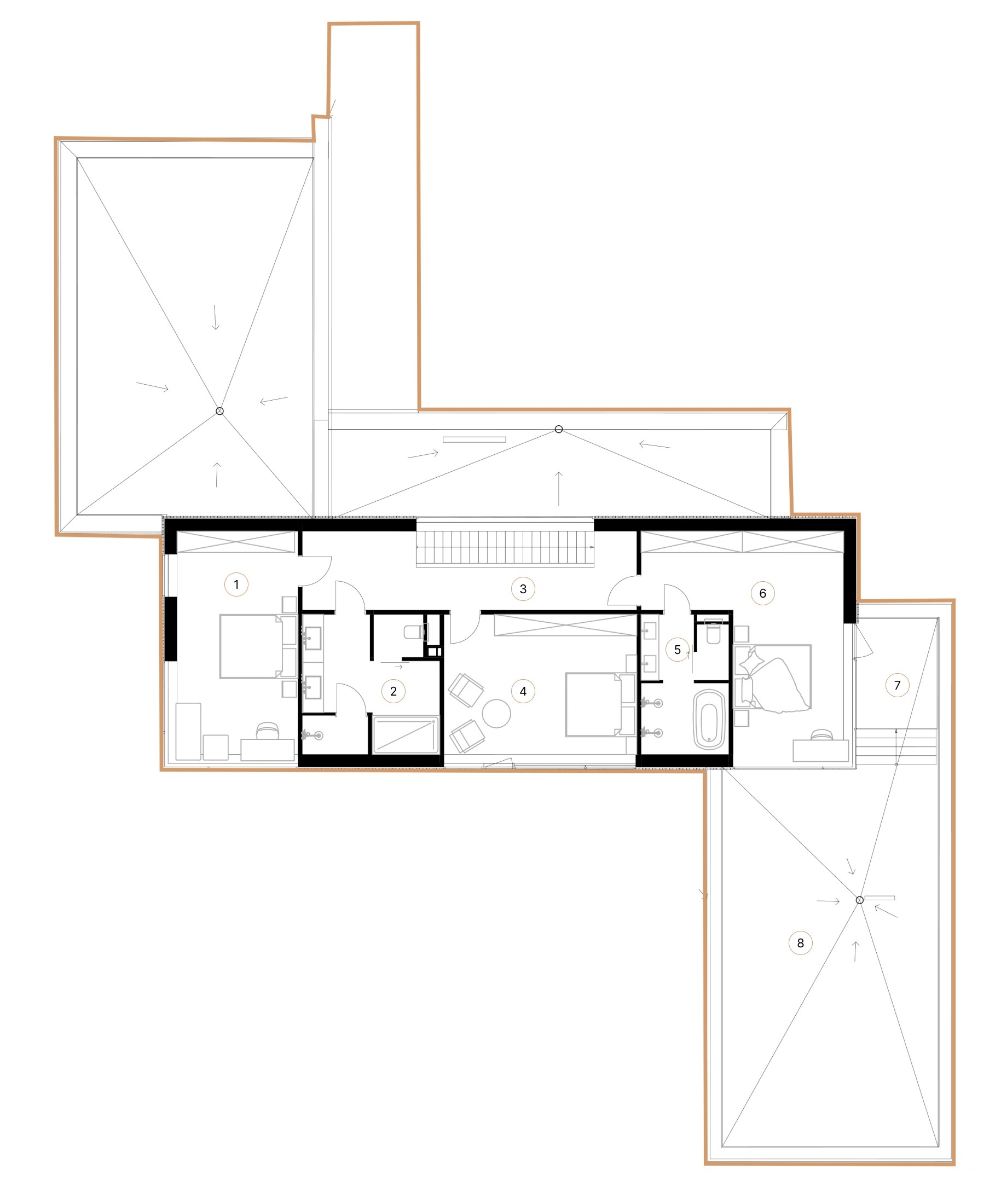
2nd floor plan

2nd floor plan
Plan details

Press publications



Like this project?

Get an individual consultation with our architect and find out the price for your project


Our projects

Interested in our full portfolio? Click below to view all of our completed projects.

Book A Consultation
And we will answer any questions you have