LUMIERE ESSENCE

Architectural project
  • Studio: ZROBIM architects
  • Area: 352 m2
  • Year: 2022

Project Description

A stream nestles this residence in a picturesque setting, bordered by a forest. One of the primary goals was to preserve the existing willows on the property, inspiring us to incorporate subtle Japanese influences into the home's design.

The site has a natural slope, so we positioned the house with the front façade level with the roadway while the rear of the house "floats" above the ground. The unique layout also provides additional privacy by concealing the courtyard from view.

Given the courtyard's modest size, we designed five terraces, each with distinct functions. Inspired by the Japanese engawa, these terraces encircle the home, creating a dynamic and visually engaging exterior.

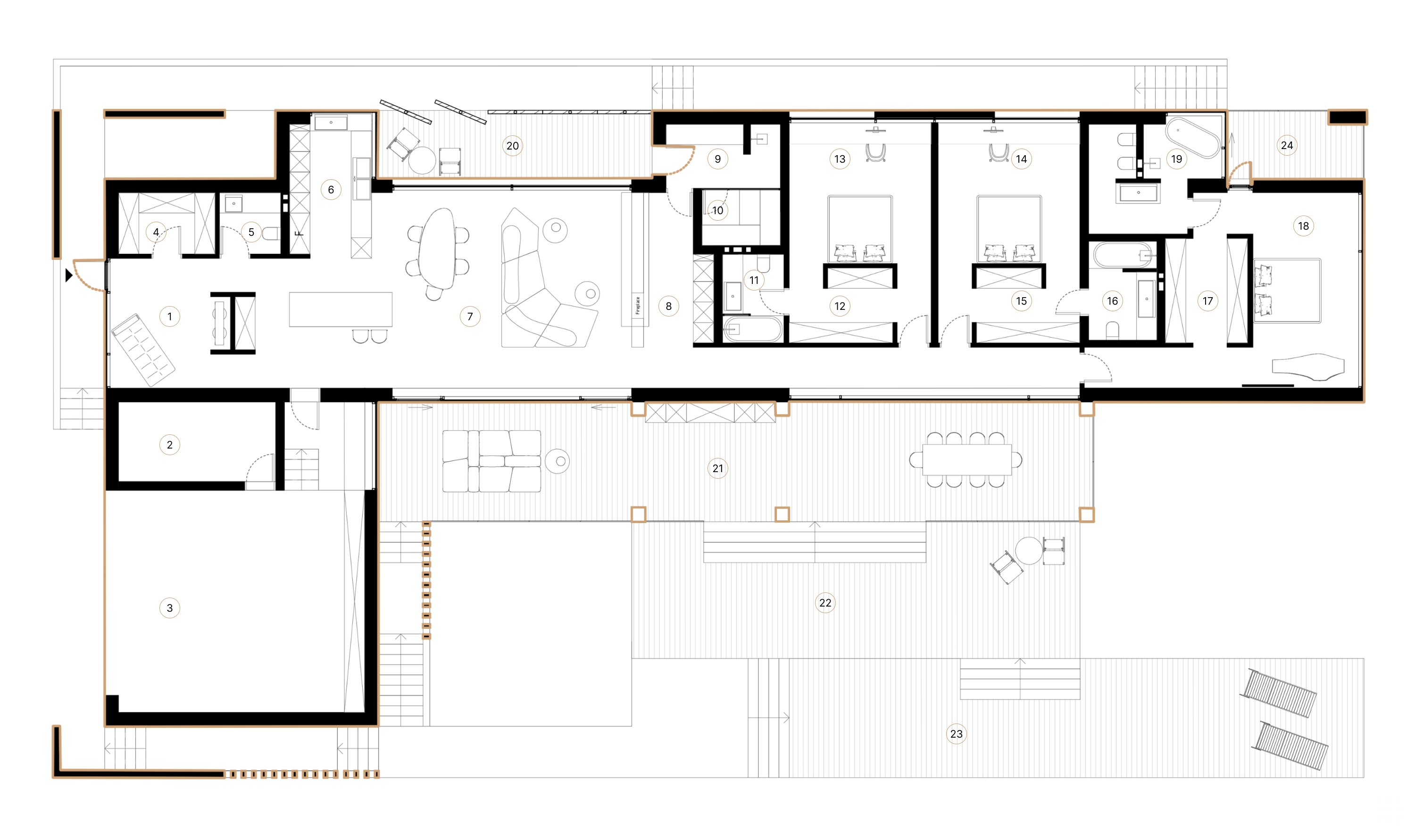
1st floor plan

1st floor plan
Plan details


Like this project?

Get an individual consultation with our architect and find out the price for your project


Our projects

Interested in our full portfolio? Click below to view all of our completed projects.

Book A Consultation
And we will answer any questions you have