GENESIS ESSENCE

Architectural project
  • Studio: ZROBIM architects
  • Area: 379,1 m2
  • Year: 2022

Project Description

This residence is positioned at the top of a hill, offering a striking yet minimalist two-story façade from the entrance side. Its elongated design creates a spacious, private interior, fully shielded from neighboring properties within the village.

A vital feature of the layout is separating the dining area, kitchen, and living room. This design caters to those who value privacy and seclusion while allowing for an open living experience without needing separate, enclosed spaces like an office.

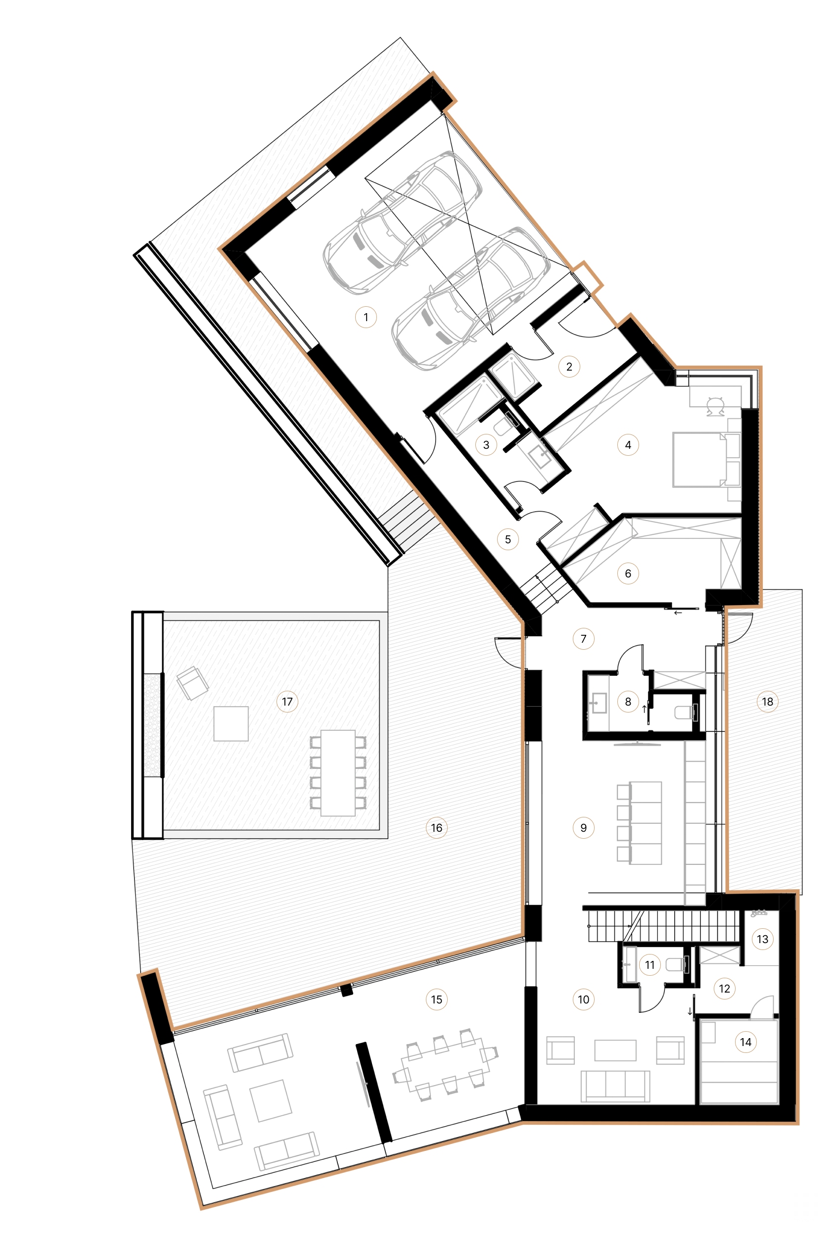
1st floor plan

1st floor plan
Plan details

2nd floor plan

2nd floor plan
Plan details


Like this project?

Get an individual consultation with our architect and find out the price for your project


Our projects

Interested in our full portfolio? Click below to view all of our completed projects.

Book A Consultation
And we will answer any questions you have