OXYGEN ESSENCE

Architectural project
  • Studio: ZROBIM architects
  • Area: 423,1 m2
  • Year: 2022

Project Description

This residence, like its neighboring homes, is situated on a steep terrain, seamlessly integrating with the landscape. However, we sought to introduce a unique element to the exterior, giving this residence the look of a modernist villa by combining metal and plaster for the façade.

The upper level of the house is slightly rotated about the lower level, creating a dynamic architectural form and a non-traditional spatial layout. This design enhances the home's visual interest and emphasizes its modern, distinctive character.

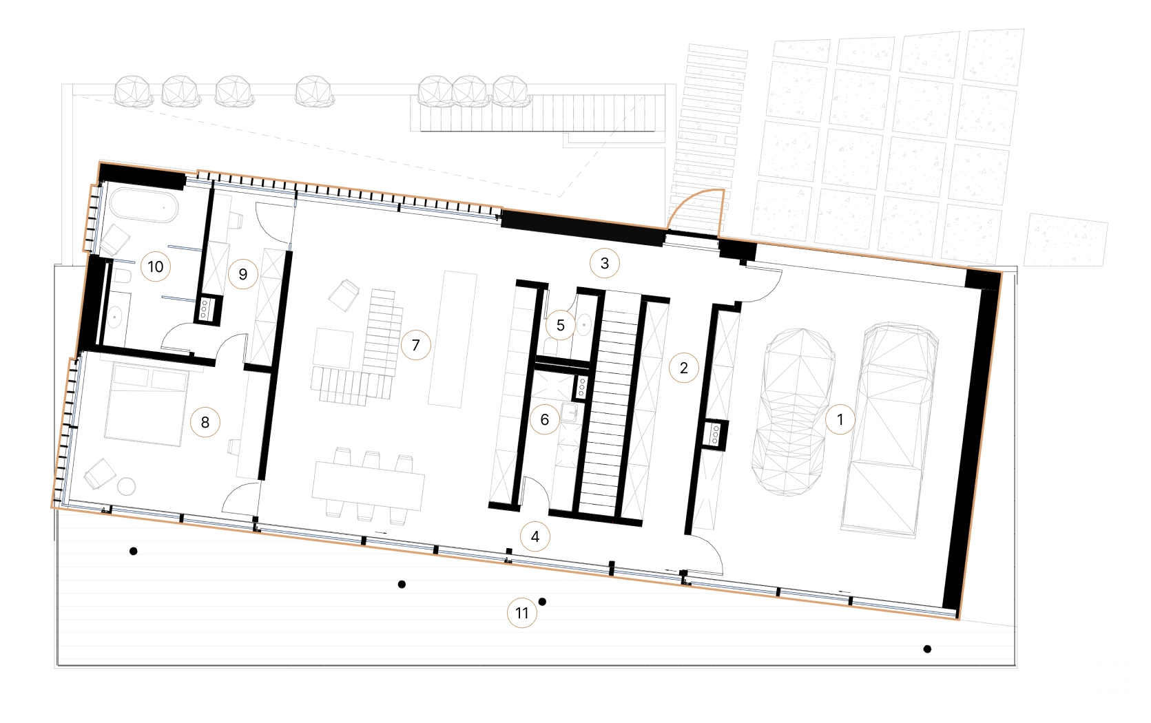
1st floor plan

1st floor plan
Plan details

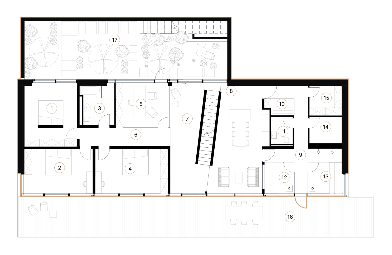
2nd floor plan

2nd floor plan
Plan details


Like this project?

Get an individual consultation with our architect and find out the price for your project


Our projects

Interested in our full portfolio? Click below to view all of our completed projects.

Book A Consultation
And we will answer any questions you have