CALIPSO ESSENCE

Architectural project
  • Studio: ZROBIM architects
  • Area: 269 m2
  • Year: 2022

Project Description

When designing this residence in ecopolis ESSENCE, it was important for us to take into account several important nuances at the same time. First of all, it was necessary to observe the privacy of the house relative to the general development. We also paid special attention to the orientation of all the main rooms towards the picturesque pond passing through the site. Another introduction was a one-story residence next door, next to which our two-story volume was supposed to look harmonious.

As a result, we have a house that looks like a minimalistic "cube" from the street, and from the inside - a complex architectural volume that provides the proper level of privacy and a picturesque view from the windows.

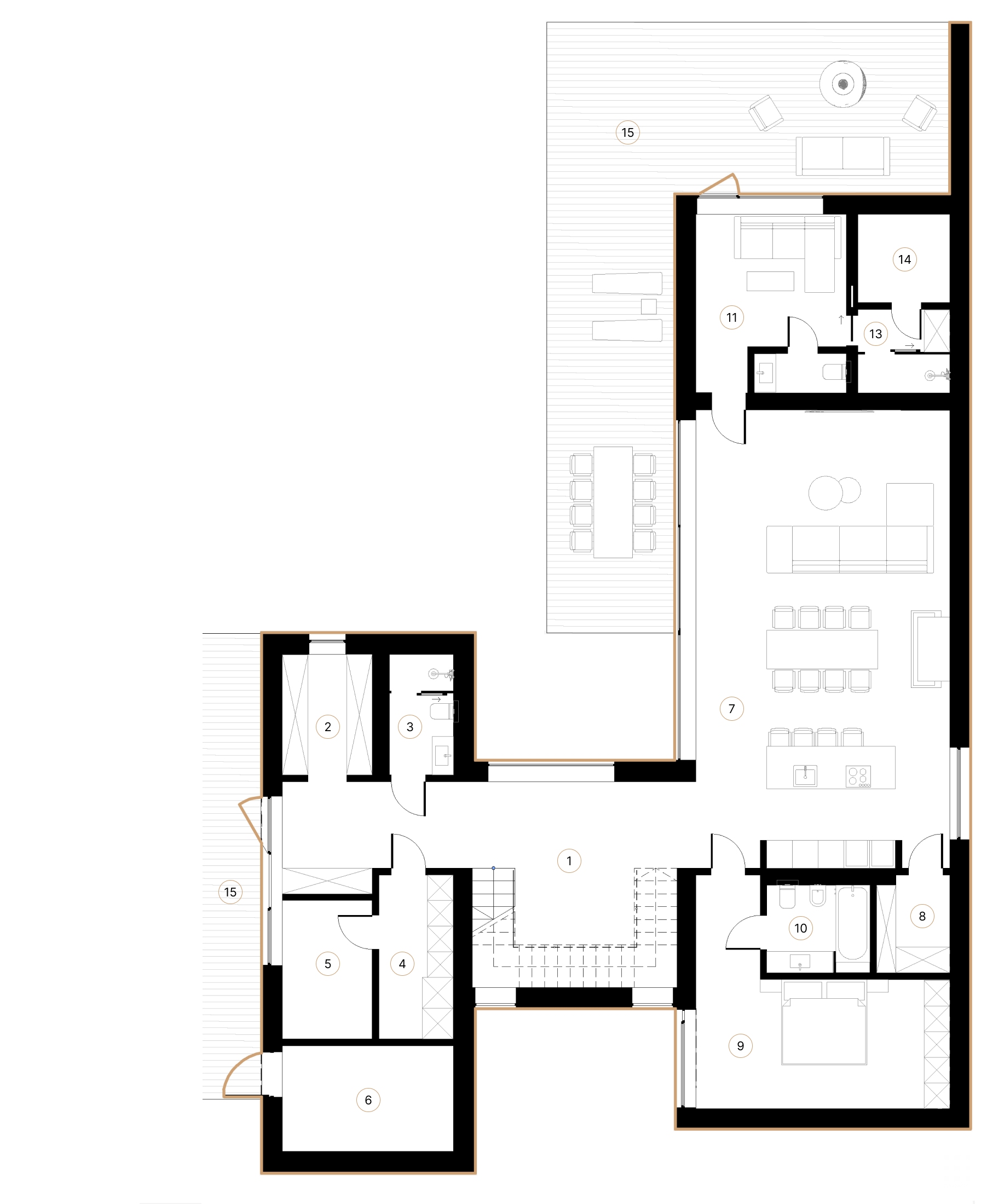
1st floor plan

1st floor plan
Plan details

2nd floor plan

2nd floor plan
Plan details


Like this project?

Get an individual consultation with our architect and find out the price for your project


Our projects

Interested in our full portfolio? Click below to view all of our completed projects.

Book A Consultation
And we will answer any questions you have