ECLIPSE ESSENCE

Architectural project
  • Studio: ZROBIM architects
  • Area: 364,4 m2
  • Year: 2022

Project Description

This residence stands out with its bold, minimalist design, resembling an avant-garde art piece.

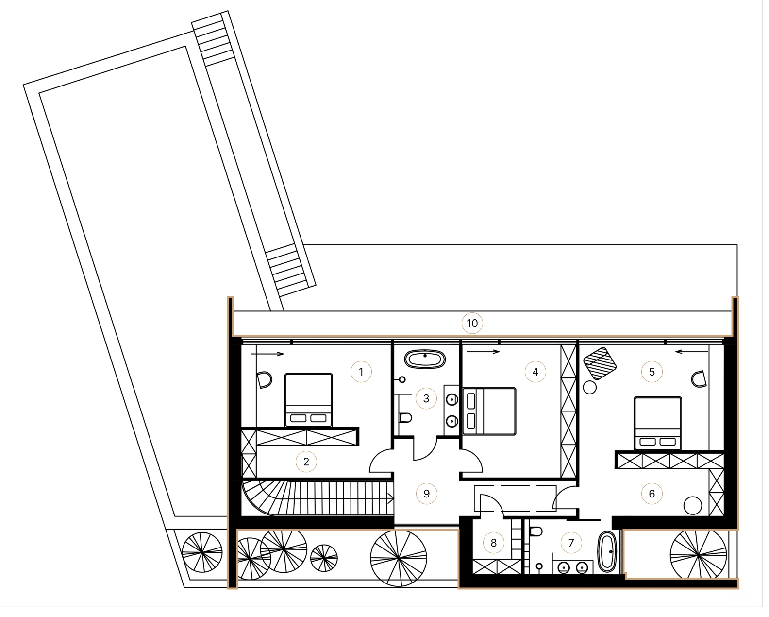
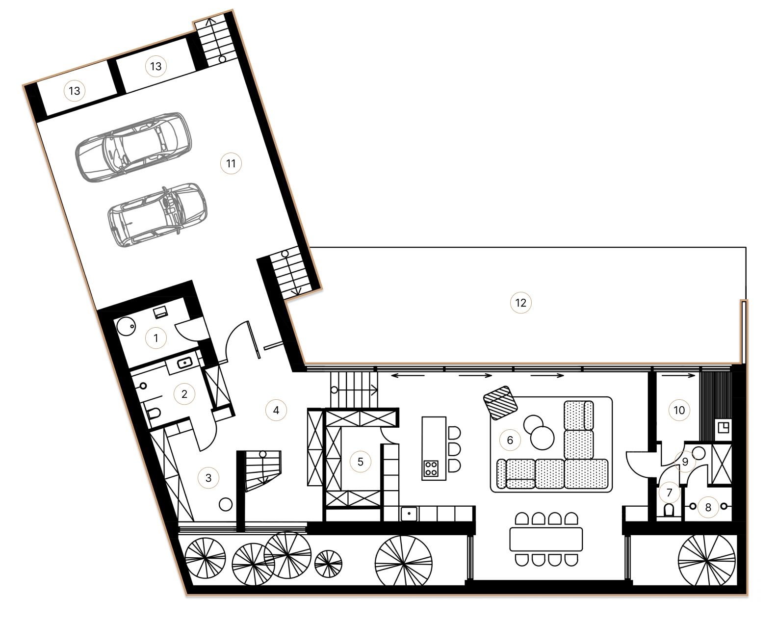
The floor plan is functionally divided, with the ground floor dedicated entirely to public spaces, including a large open-concept kitchen and living room, bathrooms, and technical rooms. The second floor features a master bedroom suite with private access to the terrace, two guest bedrooms, and an additional bathroom.

All panoramic windows are oriented toward the courtyard, ensuring a relaxed, private atmosphere while shielding the residents from outside views, enhancing the sense of seclusion and comfort.

1st floor plan

1st floor plan
Plan details

2nd floor plan

2nd floor plan
Plan details


Like this project?

Get an individual consultation with our architect and find out the price for your project


Our projects

Interested in our full portfolio? Click below to view all of our completed projects.

Book A Consultation
And we will answer any questions you have