TRINITY ESSENCE INTERIOR

Private house
  • Studio: ZROBIM architects
  • Location: Moscow Region, Russia
  • Area: 452,8 m2
  • Year: 2022

Project Description

Our primary goal for the interior of the TRINITI residence was to create harmony with nature. The design features natural beige tones and an abundance of stone elements. A standout feature is the copper wave in the living room, inspired by the nearby stream and echoing its smooth, flowing curves.

While stone interiors are often seen as rough and cold, we aimed to demonstrate that, with thoughtful design, stone can create a warm and inviting atmosphere. The furniture is simple and understated, further highlighting the space's unique characteristics and connection to the surrounding natural environment.

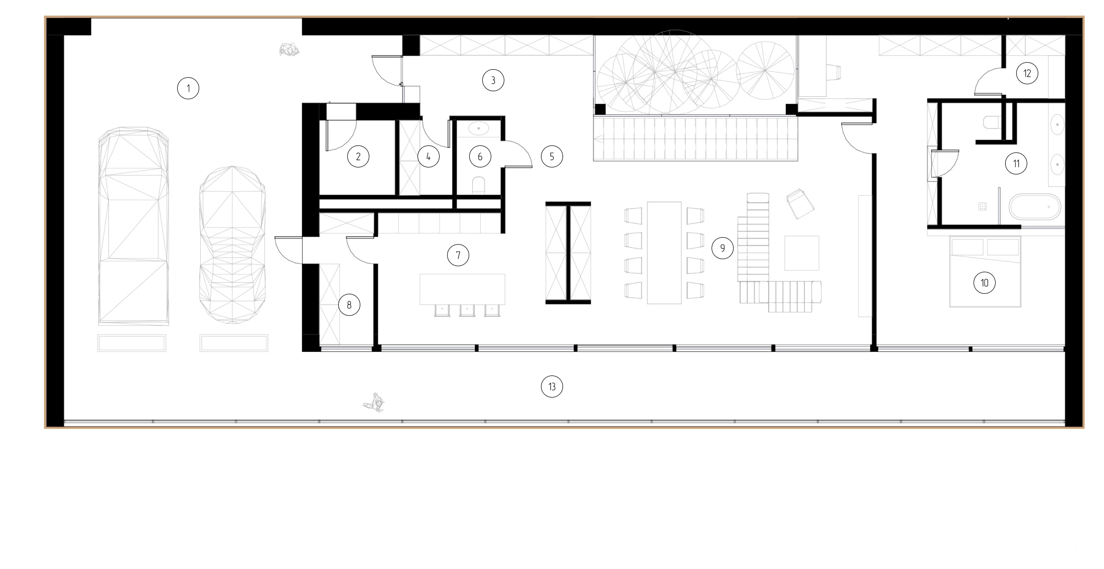
1st floor plan

1st floor plan
Plan details

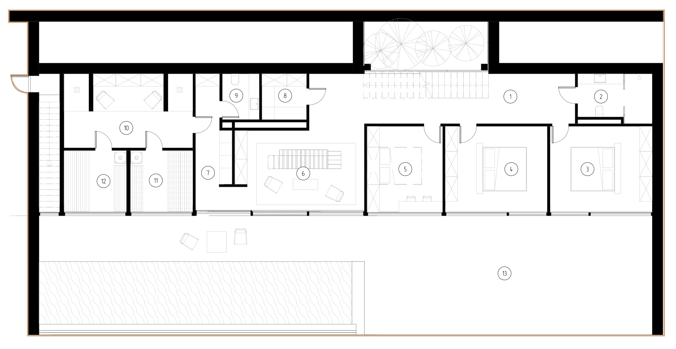
2nd floor plan

2nd floor plan
Plan details


Like this project?

Get an individual consultation with our architect and find out the price for your project


Our projects

Interested in our full portfolio? Click below to view all of our completed projects.

Book A Consultation
And we will answer any questions you have