Catskill Guest INTERIOR

House Interiors, NY
  • Studio: ZROBIM architects
  • Location: Catskill, NY
  • Area: 334.9 ft2
  • Year: 2022

Project Description

This interior was designed for a guest house within a complex developed by our studio.

The client requested dark, warm tones and natural materials, resulting in a gray, brown, and black palette. To maintain visual contrast, we introduced lighter areas throughout. The standout feature of this space is a copper-finished fireplace, providing a striking color accent to the common area.

To illuminate the large, high-ceilinged room, we incorporated general ceiling and zonal lighting, with specific fixtures over the dining area, kitchen island, a sconce beside the fireplace, and a floor lamp under the stairs.

With this design, we created a cohesive and harmonious interior and exterior that honors the client’s vision.

NY HOUSE INTERIOR

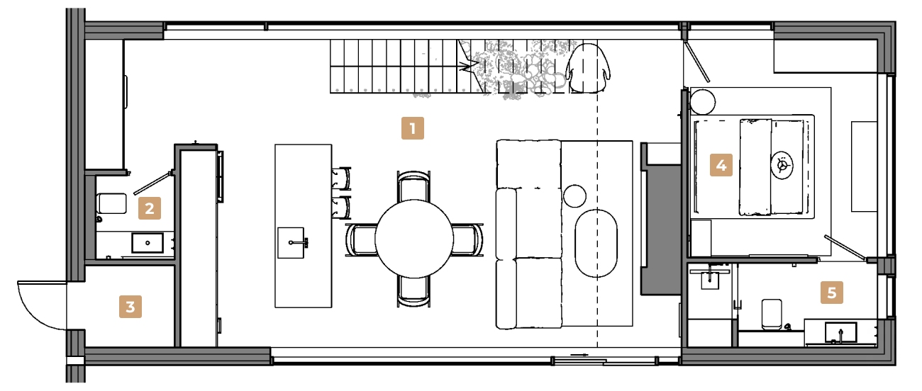
1st floor plan

1st floor plan
Plan details

2nd floor plan

2nd floor plan
Plan details

See an overview of the project



Like this project?

Get an individual consultation with our architect and find out the price for your project


Our projects

Interested in our full portfolio? Click below to view all of our completed projects.

Book A Consultation
And we will answer any questions you have