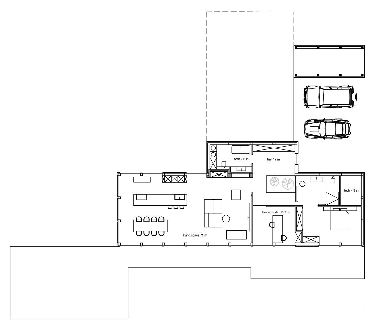
At the heart of Matski House is an atrium housing a living walnut tree, a vibrant life form within the concrete structure.
Changing with the seasons, the tree invites residents to experience the cycles of nature throughout the year, visible from every room in the home. The house is laid around this atrium, with an open, corridor-free design allowing movement through various paths.
Room ceiling heights are proportionate to their size, with hallways and passages at 6.5 feet and painted white to expand the space visually. In living areas, ceilings are raised to 10 feet and crafted from finely finished wooden planks, individually made and removable for access to hidden utilities.
The design prioritizes light orientation and energy efficiency. It features panoramic glazing across 65% of the southwest facade, offering expansive views of the surrounding landscape, including a pond, bridge, and sculptural elements. To reduce heat loss, the north facade remains completely solid. Solid concrete floors and internal partitions enhance passive solar heating, boosting thermal inertia and ensuring a stable microclimate.
The color palette is monochromatic, enriched by natural materials: warm wood tones in the ceiling and furniture, monolithic concrete arches, and polished metal accents. Custom furniture and lighting, crafted to the homeowner’s specifications, embody a luxurious, natural minimalism tailored to the owner’s style and needs. The Matski House is a guide for creating functional, aesthetically harmonious spaces, blending nature, innovation, and exclusive design.
Best Residential Architecture Design Project 2023 (Eastern Europe) - Build Architecture Awards 2023.

Gold Winner, International Architecture & Design Awards 2024

The Archello Awards 2024 Longlist in the House of the Year (rural) - Medium category

AZ Awards 2024. Award of merit Matski House

Matski House Honorable Mention 2024

Get an individual consultation with our architect and find out the price for your project
Interested in our full portfolio? Click below to view all of our completed projects.