2B HOUSE INTERIOR

Private house
  • Studio: ZROBIM architects
  • Location: Kiev, Ukraine
  • Area: 536,85 m2
  • Year: 2023

Project Description

The interior of this home aimed to seamlessly extend its architecture, guided by the client's vision of visual purity and timelessness.

We achieved a minimalist design without open shelving, glass fronts, or unnecessary decor. The kitchen is divided into two areas—a primary and a secondary workspace—to discreetly contain cooking activities and odors.

To ensure longevity in style, we selected a classic palette of materials: natural wood, stone, concrete flooring, plaster, and metal. This foundational choice offers enduring appeal and can easily be updated by changing furniture and decor.

The interior's focal point is onyx, which is carefully integrated across elements throughout the space. Its subtle color complements the palette, bringing a vibrant, unique quality without overwhelming the design.

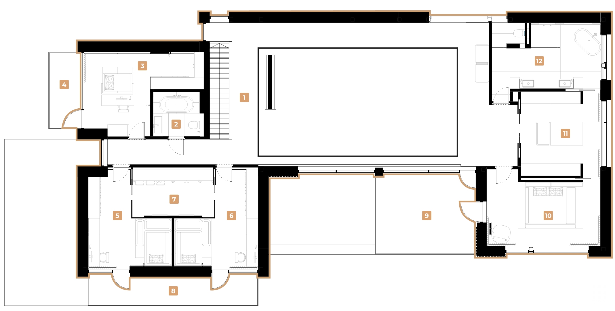
Basement floor plan

Basement floor plan
Plan details

1st floor plan

1st floor plan
Plan details

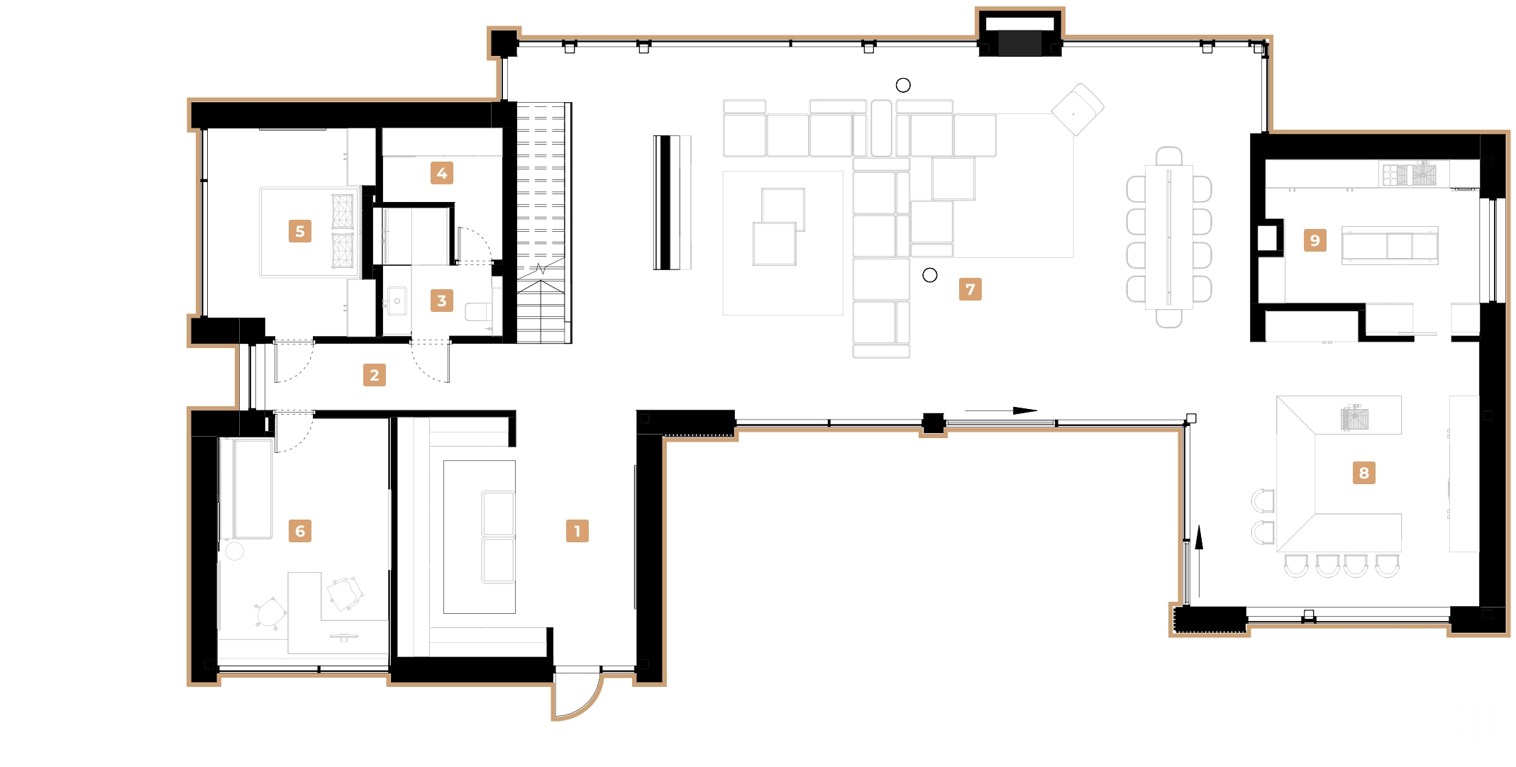
2nd floor plan

2nd floor plan
Plan details

Press publications



Like this project?

Get an individual consultation with our architect and find out the price for your project


Our projects

Interested in our full portfolio? Click below to view all of our completed projects.

Book A Consultation
And we will answer any questions you have