ZHD HOUSE

Architectural project
  • Studio: ZROBIM architects
  • Area: 584 m2
  • Year: 2024
  • Year of design: 2018

Project Description

This house is designed for a small family but can comfortably host a large group of friends. The centerpiece is a spacious double-height living room seamlessly connected to the kitchen and dining areas, with a distinctive cantilevered section extending over the landscape. The house features extensive glazing, including U-shaped panoramic windows in the living room, continuous ribbon glazing along the ceiling, and a gallery on the first floor with terrace access, creating a seamless bond between the interior and the surrounding nature.

Set in a scenic location outside the city amidst tall pines, the design embraces nature, with a tree integrated directly into the terrace.

The exterior finishes include three harmonizing materials: clinker bricks, large-format porcelain stoneware, and wooden slats.

1st floor plan

1st floor plan

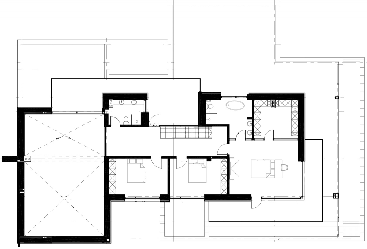
2nd floor plan

2nd floor plan

See an overview of the project

  • ZHD HOUSE
    A luxurious house for country life, which has absolutely everything!


Like this project?

Get an individual consultation with our architect and find out the price for your project


Our projects

Interested in our full portfolio? Click below to view all of our completed projects.

Book A Consultation
And we will answer any questions you have