Old hamlet residence

Architectural project
  • Studio: ZROBIM architects
  • Location: Zornaya st., v. Staroye Selo, Minsk region, Belarus
  • Area: 198 m2
  • Year: 2020

Project Description

The mono-material exterior construction of this house enables a design with clean lines, a minimalist aesthetic, precise proportions, and flawless detailing.

The house's sculptural quality is evident from the main entrance, where the closed front facades conceal expansive glazing on the courtyard side. Windows in every room overlook a private courtyard, echoing the shape of the house itself. The outer contour serves as a protective barrier and a fence, shielding the inner area from outside view and creating a tranquil space for relaxation and connection.

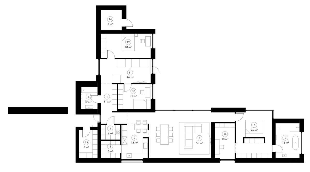
1st floor plan

1st floor plan
Plan details

See an overview of the project

  • Old hamlet residence
    Beyond Ordinary: Modern Cave House Review | Architecture & Design


Like this project?

Get an individual consultation with our architect and find out the price for your project


Our projects

Interested in our full portfolio? Click below to view all of our completed projects.

Book A Consultation
And we will answer any questions you have