Zatzen House

Architectural project
  • Studio: ZROBIM architects
  • Area: 160 m2
  • Year: 2020
  • Year of design: 2017

Project Description

The house is situated in a densely populated residential area, and our priority was to maintain an open and airy feel while maximizing functionality. To achieve this, we included a floor-to-ceiling corner window on the first floor, seamlessly connecting the terrace and the living room. This visually extends the interior without compromising the green space on the plot. The cantilevered sections of the house also serve as canopies, further enhancing the sense of expanded indoor space.

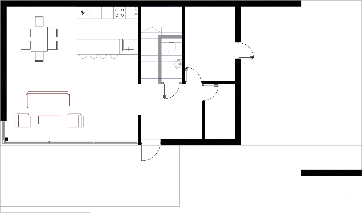
1st floor plan

1st floor plan

2nd floor plan

2nd floor plan

See an overview of the project



Like this project?

Get an individual consultation with our architect and find out the price for your project


Our projects

Interested in our full portfolio? Click below to view all of our completed projects.

Book A Consultation
And we will answer any questions you have