SPLINTER HOUSE

Architectural project
  • Studio: ZROBIM architects
  • Area: 193.6 m2
  • Year: 2024
  • Year of design: 2021

Project Description

Compact frame, eco-friendly house with the possibility of further extension deeper into the site.

Despite the limited total area, a large number of residential premises have been placed and a double-height space has been created above the dining area, which will further divide the main part of the house from the one that will be added in the future.

With the overall laconicism of the house, the unusual broken roof creates an interesting and dynamic image.

  • SPLINTER HOUSE
  • SPLINTER HOUSE
  • SPLINTER HOUSE
  • SPLINTER HOUSE
  • SPLINTER HOUSE

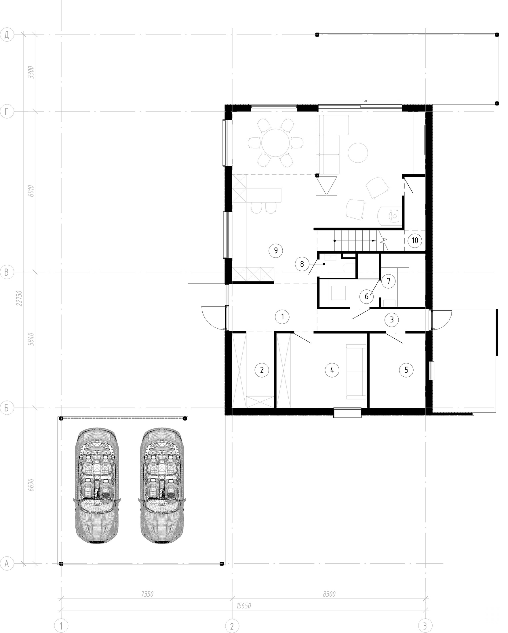
1nd floor plan

1st floor plan
Plan details

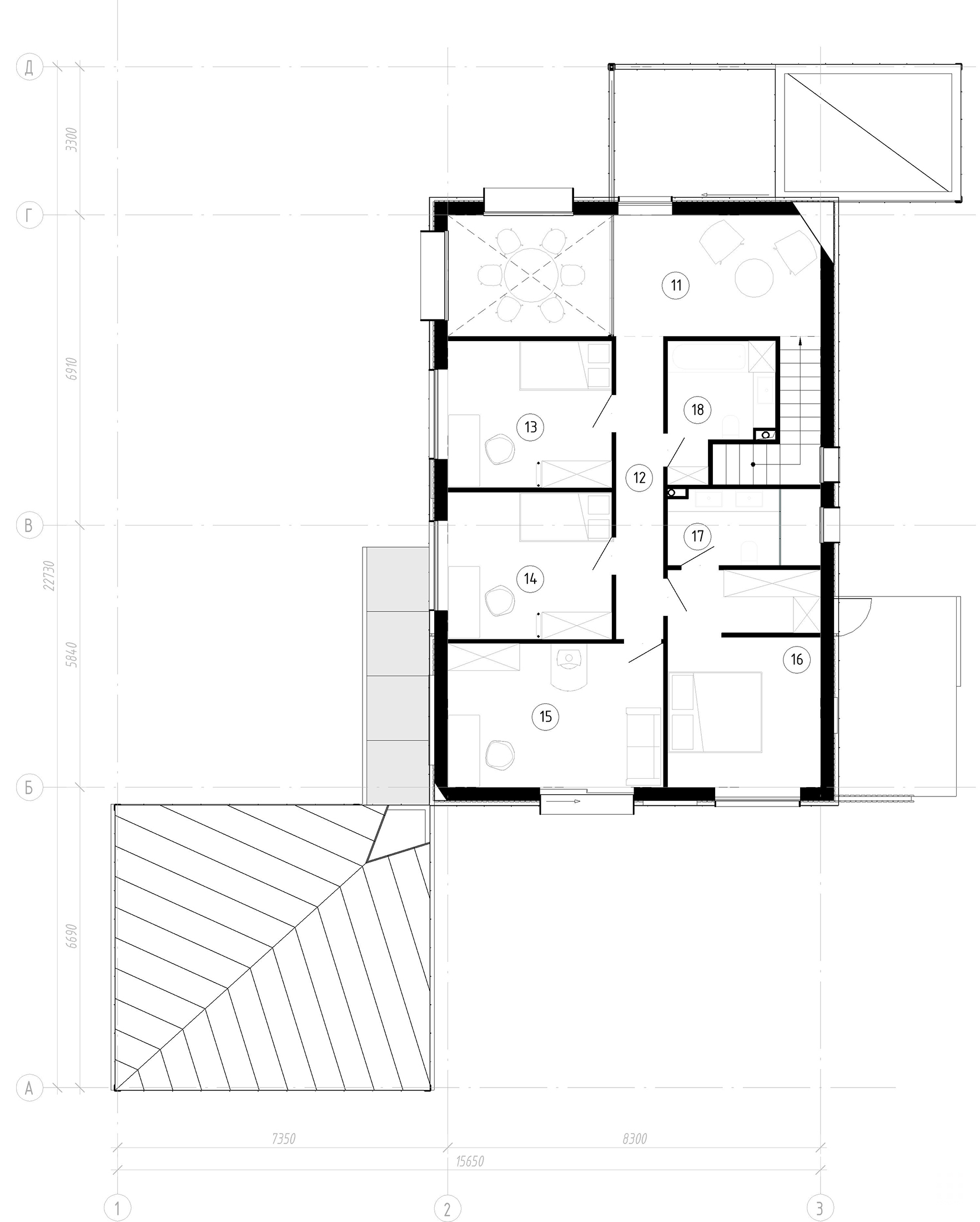
2nd floor plan

2nd floor plan
Plan details

Floor 2 cut

3rd floor plan


Like this project?

Get an individual consultation with our architect and find out the price for your project


Our projects

Interested in our full portfolio? Click below to view all of our completed projects.

Book A Consultation
And we will answer any questions you have