Forest Villa

Architectural project
  • Studio: ZROBIM architects
  • Area: 578,9 m2
  • Year: 2021

Project Description

This compact, eco-friendly frame house is designed with the potential for future extension more profound into the site.

Despite its limited footprint, the layout accommodates multiple living spaces, with a double-height ceiling over the dining area that will separate the house's main section from any future additions.

The minimalist design is complemented by a distinctive, angular roof, adding an intriguing and dynamic aesthetic to the overall structure.

Basement floor plan

Basement floor plan
Plan details

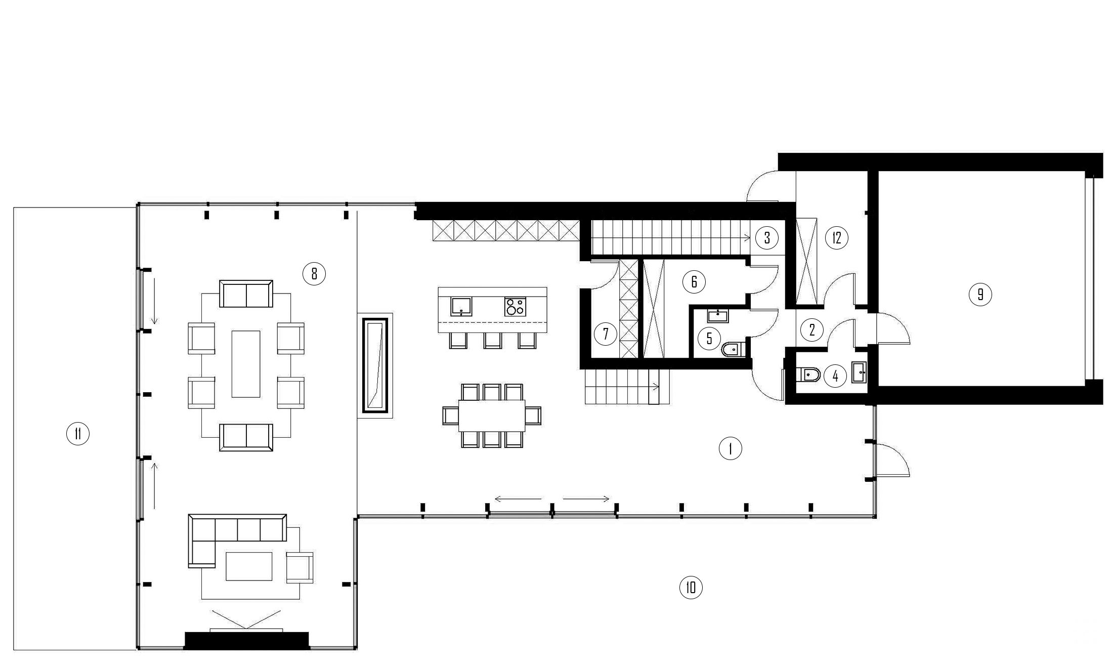
1st floor plan

1st floor plan
Plan details

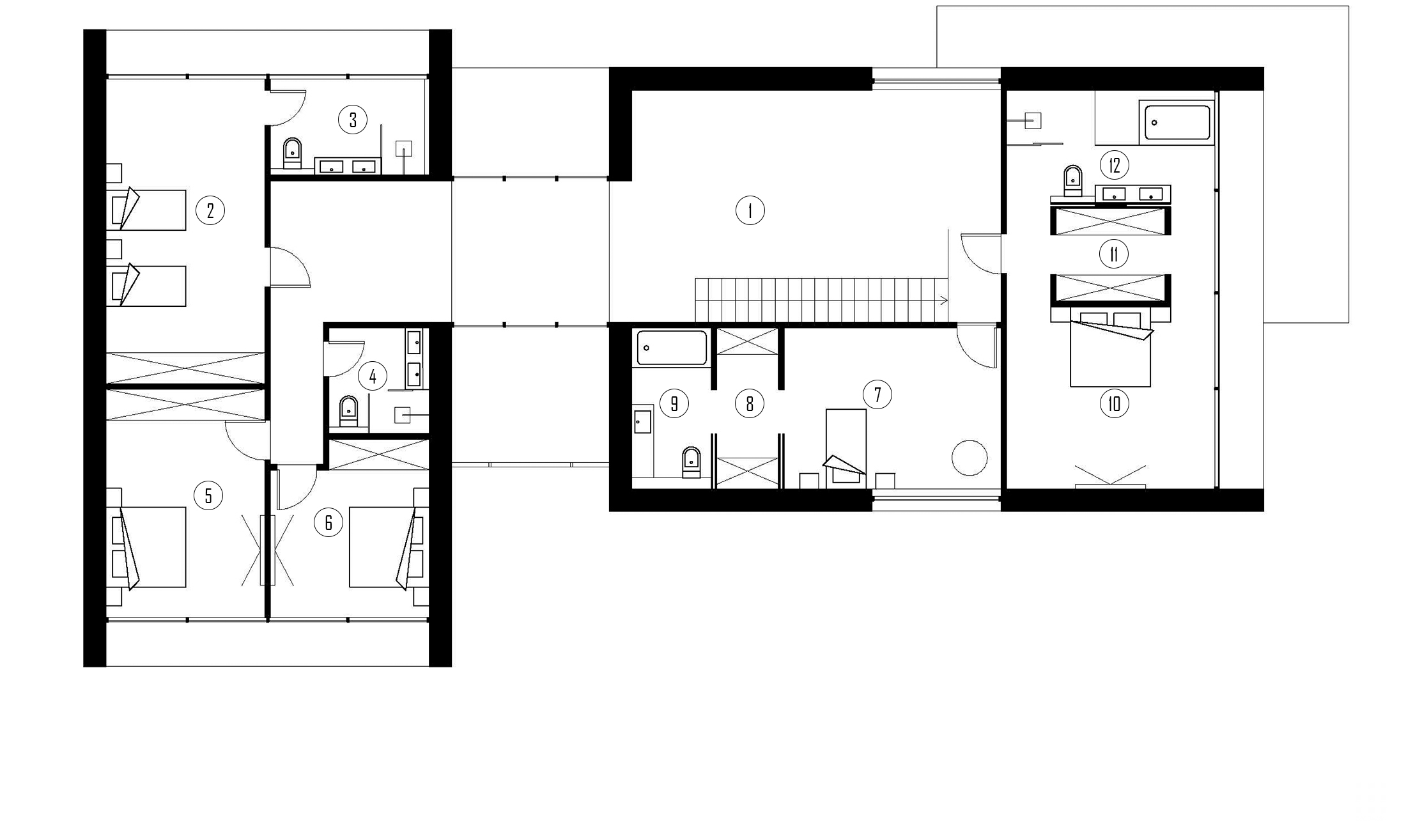
2nd floor plan

2nd floor plan
Plan details


Like this project?

Get an individual consultation with our architect and find out the price for your project


Our projects

Interested in our full portfolio? Click below to view all of our completed projects.

Book A Consultation
And we will answer any questions you have