SHINDISI RESIDENCE

Architectural project
  • Studio: ZROBIM architects
  • Location: Georgia
  • Area: 695 m2
  • Year: 2025

Project Description

A spiral staircase on the terrace, perforated concrete, and an extended line of panoramic glazing are accents that shape the residence's character. We deliberately play with contrasts: the strict tectonics of concrete is combined with the lightness of glass, and the powerful relief of the site becomes part of the architectural composition.

From the entrance, the house appears compact and restrained, preserving privacy. But step out into the courtyard, and its scale is revealed: four levels, visually lightened by transparent surfaces and precise proportions.

The guest area becomes a focal point for large groups. A thoughtful layout with a visual emphasis on the garage transforms the owners' beloved cars into part of the architectural design.

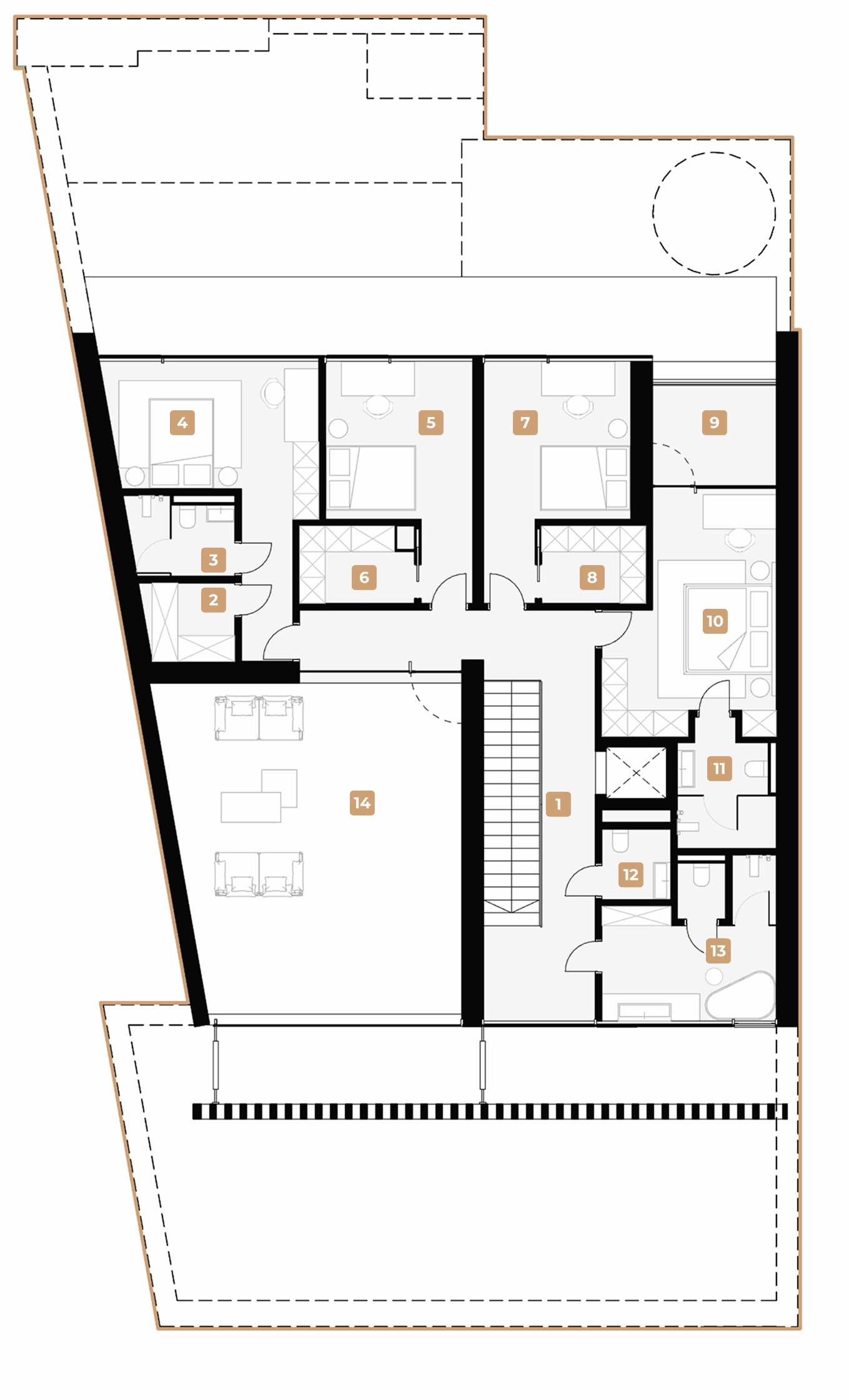
The living area is divided into two levels. The upper floor is dedicated to the children's bedrooms, providing privacy and comfort for them. The second floor is an oasis of privacy for the parents. The spacious master bedroom is connected to a study, walk-in closet, bathroom, and terrace.

Each space is meticulously designed to create a harmonious blend of functionality and aesthetics, while the striking facades add a distinctive touch of style.

  • SHINDISI RESIDENCE

Basement floor plan

Basement floor plan
Plan details

1st floor plan

1st floor plan
Plan details

2nd floor plan

2nd floor plan
Plan details

3rd floor plan

3rd floor plan
Plan details


Like this project?

Get an individual consultation with our architect and find out the price for your project


Our projects

Interested in our full portfolio? Click below to view all of our completed projects.

Book A Consultation
And we will answer any questions you have