• Studio: ZROBIM architects
  • Location: Riyadh, Saudi Arabia
  • Area: 35520,9 ft2
  • Year: 2023

Project Description

In this project, we aimed to design a small complex of 8 private villas for rent. These villas are conceptually tailored for entrepreneurs and company founders who lead dynamic, business-oriented lives and frequently travel. The villas offer a convenient and comfortable space for meeting with employees or business partners in Riyadh before heading out again for other engagements.

The core idea behind the project is to create spaces equally suited for living and working. These villas provide short-term rental options without compromising on quality or comfort, ensuring a seamless balance between professional and personal needs.

General development plan

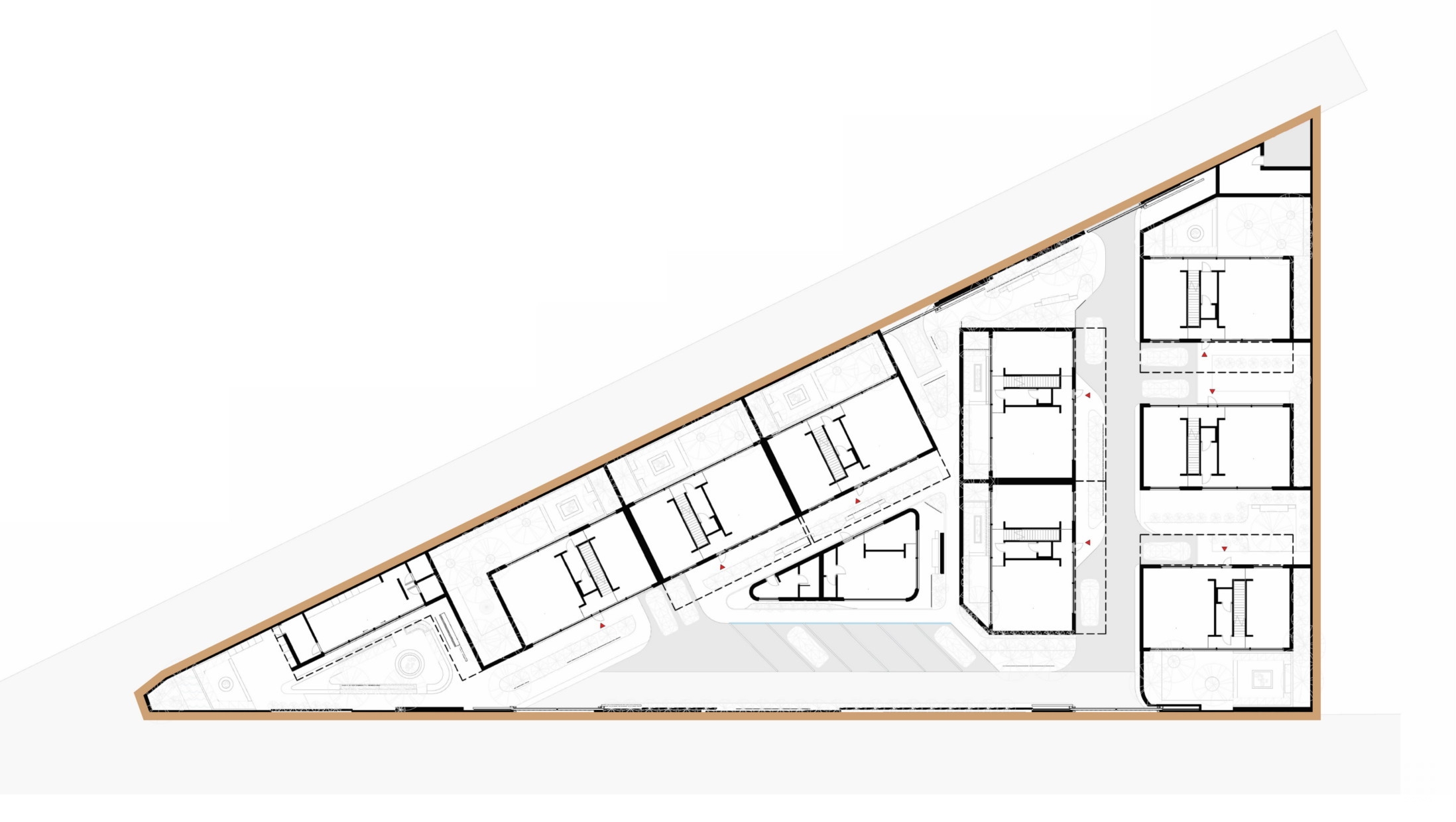
1st floor plan


Like this project?

Get an individual consultation with our architect and find out the price for your project


Our projects

Interested in our full portfolio? Click below to view all of our completed projects.

Book A Consultation
And we will answer any questions you have