• Studio: ZROBIM architects
  • Area: 351 m2
  • Year: 2025
  • Year of design: 2022

Project Description

This unique house, located in the village of Nemo, takes its name from its location and stands out as a distinctive retreat for temporary suburban living, with a strong focus on interior activity. In a region where suburban homes are rarely known for cohesive or striking architecture, our goal was to create something that contrasts with its surroundings—a house that looks inward rather than outward.

Through close collaboration with the client, we designed a seemingly minimalist home with Scandinavian influences. However, the complex roofline and internal atrium give the house a distinctive and recognizable character. We enhanced this with industrial materials, resulting in a highly individual and, in a way, mystical home—an architectural reflection of its owner's personality amidst the open plain.

Winner of the ADDAWARDS.RU Award 2025

NEMO. Special prize from ARHIWOOD 2025

NEMO. Archello Awards 2025. House of the Year - Medium

NEMO. Best Russian Interior Awards 2025 in the Best House category

NEMO. Best of Year Awards - 2025 Project Finalists

NEMO. Winner of the 2025 OBSTANOVKA AWARDS in the Private Architecture category
  • NEMO
  • NEMO

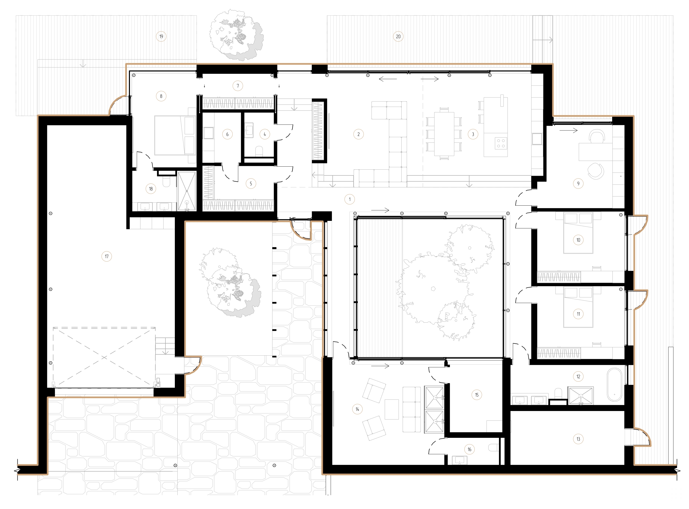
1st floor plan

1st floor plan
Plan details

Press publications



Like this project?

Get an individual consultation with our architect and find out the price for your project


Our projects

Interested in our full portfolio? Click below to view all of our completed projects.

Book A Consultation
And we will answer any questions you have