DUALITY RESIDENCE

Architectural project
  • Studio: ZROBIM architects
  • Area: 587 m2
  • Year: 2022

Project Description

This residence is set on a large, picturesque corner plot surrounded by tall pine trees. With no neighboring properties directly bordering it, the house's southern side faces the forest, offering a sense of seclusion.

The house's name reflects the contrasting appearances of its northern and southern facades. The northern side, which faces the road, features a solid, monolithic wall designed to create a sense of security and privacy. In contrast, the southern side opens fully to nature with expansive panoramic glazing, allowing the living spaces to blend seamlessly with the surrounding environment.

Functionally, the house is divided into two blocks: technical and main. The technical block includes a garage, technical rooms, staff quarters with two bedrooms, and a recreation room that connects to the main block through the laundry room. The main block is a three-story structure featuring a double-height living room, a cinema room, a private master suite, and an entire recreational floor with a large terrace positioned at treetop level.

Every movement throughout the house provides an exceptional experience for the owners. Every hallway and corridor is framed by panoramic windows or highlighted by accent furniture, enhancing the home's connection to the outdoors.

  • DUALITY RESIDENCE

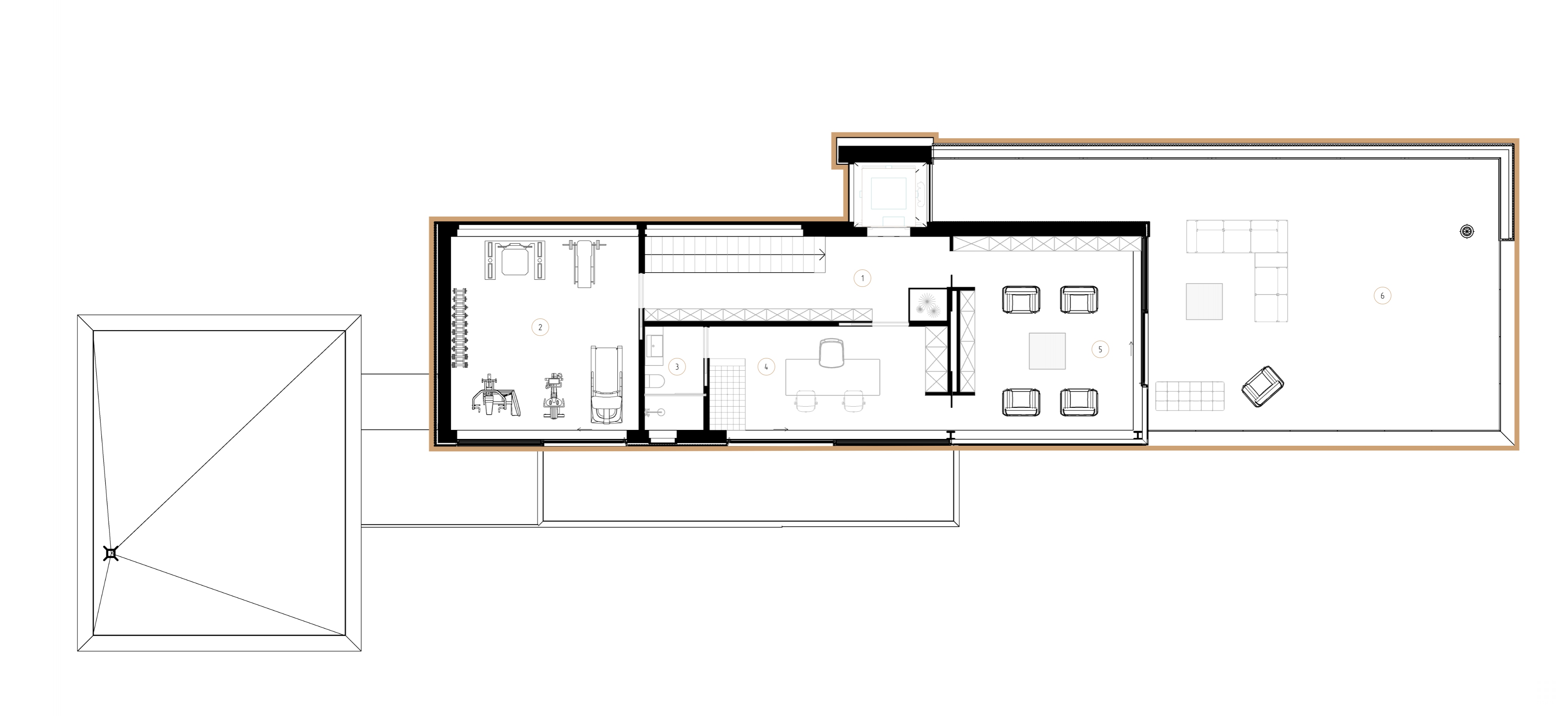
1st floor plan

1st floor plan
Plan details

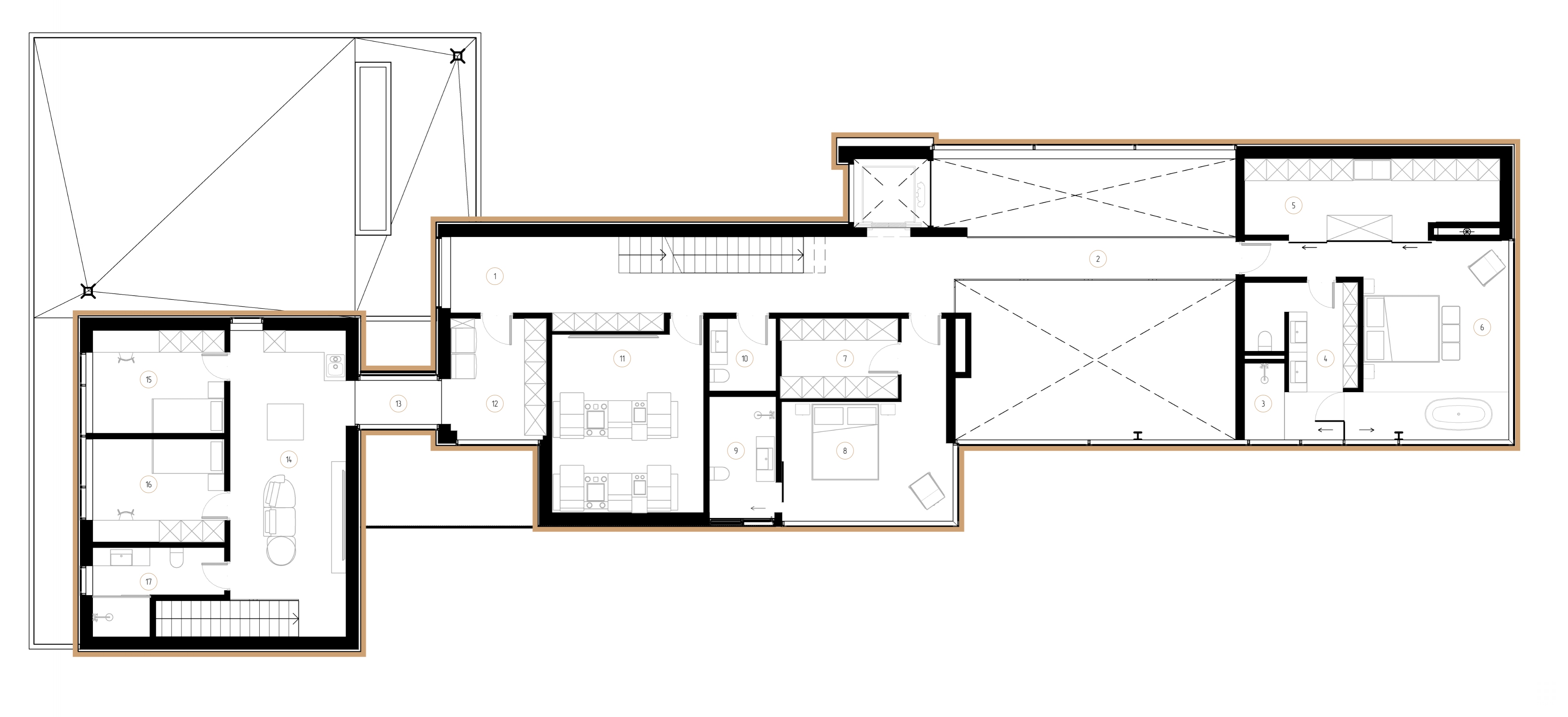
2nd floor plan

2nd floor plan
Plan details

3rd floor plan

3rd floor plan
Plan details


Like this project?

Get an individual consultation with our architect and find out the price for your project


Our projects

Interested in our full portfolio? Click below to view all of our completed projects.

Book A Consultation
And we will answer any questions you have