VITALITY ESSENCE

Architectural project
  • Studio: ZROBIM architects
  • Area: 407,3 m2
  • Year: 2022

Project Description

The core concept behind this residence and the entire Ecopolis ESSENCE was to integrate the architecture seamlessly with the natural landscape. Equally important was creating a private courtyard, offering a secluded space for outdoor relaxation.

We also focused on the panoramic glazing in the common areas, positioning it above road level to provide stunning views of the nearby stream. This elevated design enhances the view and ensures privacy, preventing visibility from the road and offering residents a comfortable, private living environment.

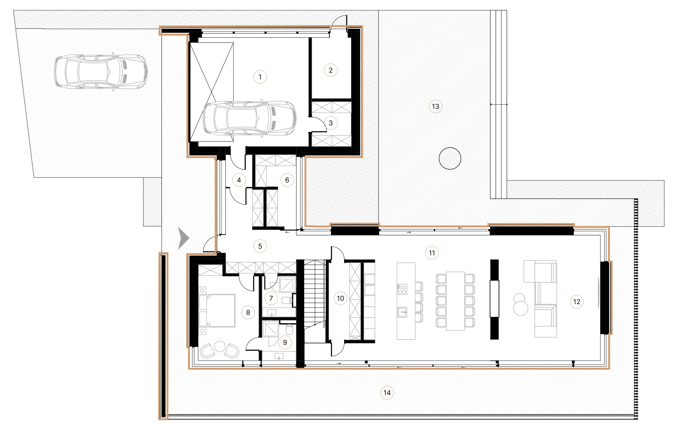
1st floor plan

1st floor plan
Plan details

2nd floor plan

2nd floor plan
Plan details


Like this project?

Get an individual consultation with our architect and find out the price for your project


Our projects

Interested in our full portfolio? Click below to view all of our completed projects.

Book A Consultation
And we will answer any questions you have