EVA ESSENCE

Architectural project
  • Studio: ZROBIM architects
  • Area: 386 m2
  • Year: 2022

Project Description

This residence within Ecopolis ESSENCE is distinguished by its architecture, which follows the terrain's natural slope, resulting in a dynamic and layered layout. The living room is elevated from the main part of the house, with dual-sided windows that create a bright, airy atmosphere.

The private areas feature panoramic glazing oriented toward the courtyard, ensuring privacy from the street. The second floor is angled 25 degrees relative to the first, offering expansive views and adding visual intrigue to the design. This interplay of architectural volumes also gives the home a larger, more impressive appearance than its actual size.

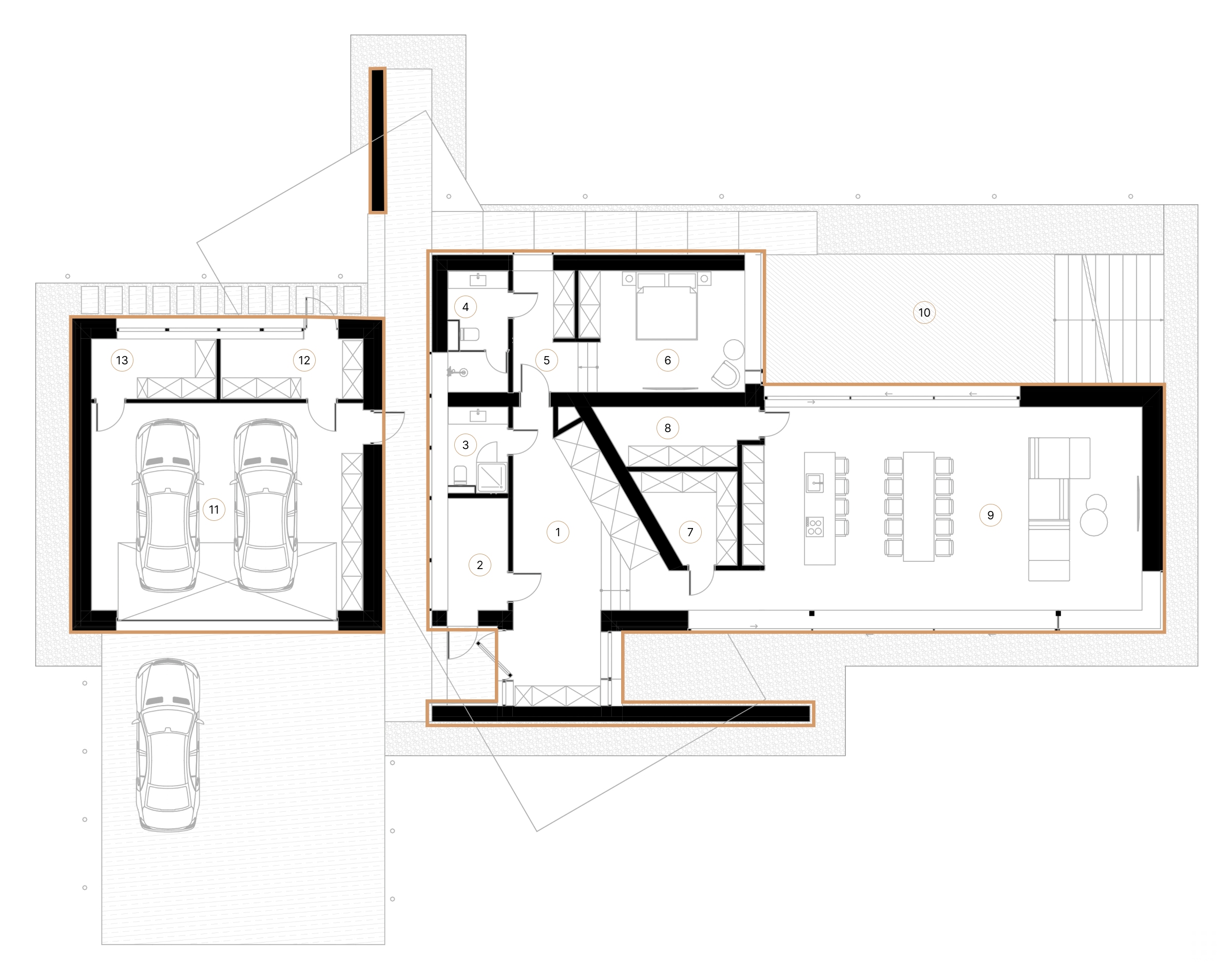
1st floor plan

1st floor plan
Plan details

2nd floor plan

2nd floor plan
Plan details


Like this project?

Get an individual consultation with our architect and find out the price for your project


Our projects

Interested in our full portfolio? Click below to view all of our completed projects.

Book A Consultation
And we will answer any questions you have