CUBIC HOUSE

Architectural project
  • Studio: ZROBIM architects
  • Location: Tallinn, Estonia
  • Area: 415 m2
  • Year: 2022

Project Description

This home is located in Tallinn, in a residential area near a picturesque forest. During the design process, we faced the challenge of making the house as functional as possible while respecting the client's wishes and adhering to the strict building restrictions for the allotted construction area. These constraints ultimately led to the home's sleek and minimalist form.

We oriented the main living spaces to face the courtyard, which overlooks a tall poplar tree where the client plans to build a treehouse for their children. The facade materials were carefully selected to emphasize the home's clean architectural lines and complement its modern design. Additionally, we incorporated a server room, turning the house into a fully automated smart home for maximum convenience and efficiency.

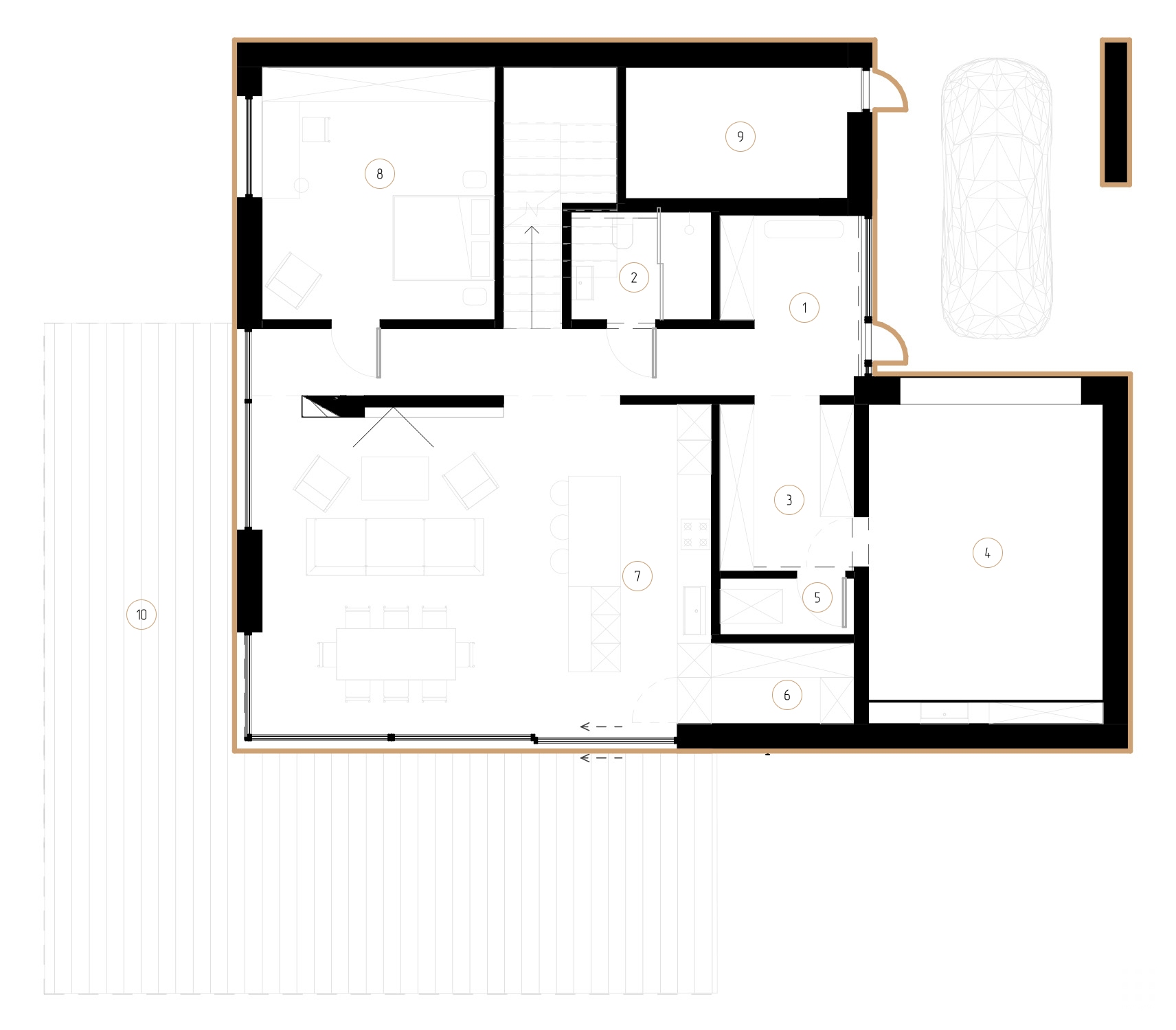
1st floor plan

1st floor plan
Plan details

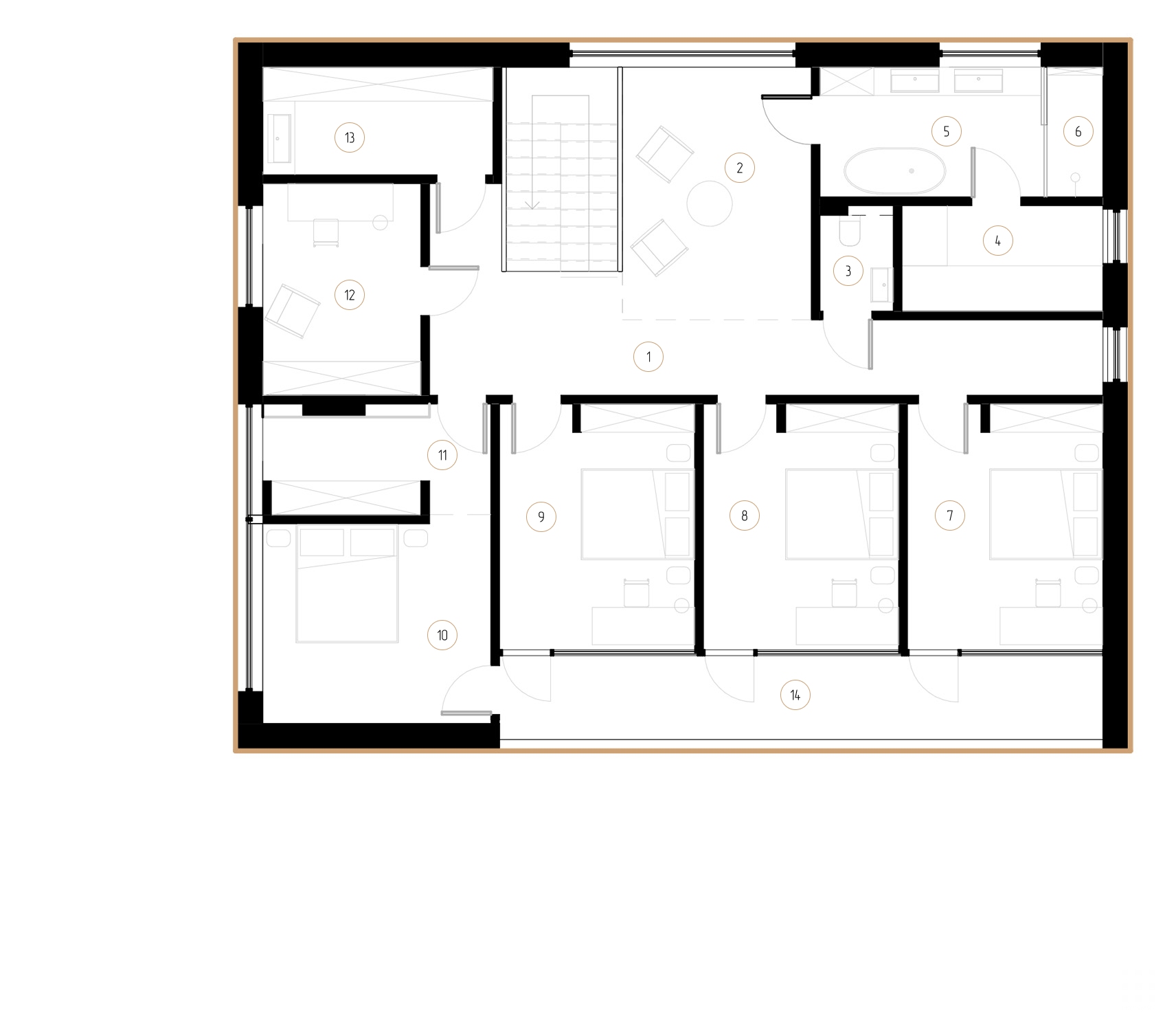
2nd floor plan

2nd floor plan
Plan details


Like this project?

Get an individual consultation with our architect and find out the price for your project


Our projects

Interested in our full portfolio? Click below to view all of our completed projects.

Book A Consultation
And we will answer any questions you have