FLUMEN HOUSE

Architectural project
  • Studio: ZROBIM architects
  • Area: 600 m2
  • Year: 2022

Project Description

This home is located on the riverbank, and the scenic views of the water heavily influenced the design. We oriented all the main living areas to maximize the picturesque river views.

The house is spread across three levels. The lower level houses technical rooms and a boathouse for storing boats. The middle level is dedicated to public spaces, including a spacious living room, kitchen, dining area, office, studio, and bath. The upper level is private, featuring the master suite and additional bedrooms.

Privacy was a key consideration for us in this project. We designed the bedrooms to be shielded from neighboring properties, ensuring a comfortable and secluded living environment.

  • FLUMEN HOUSE

Basement floor plan

Basement floor plan
Plan details

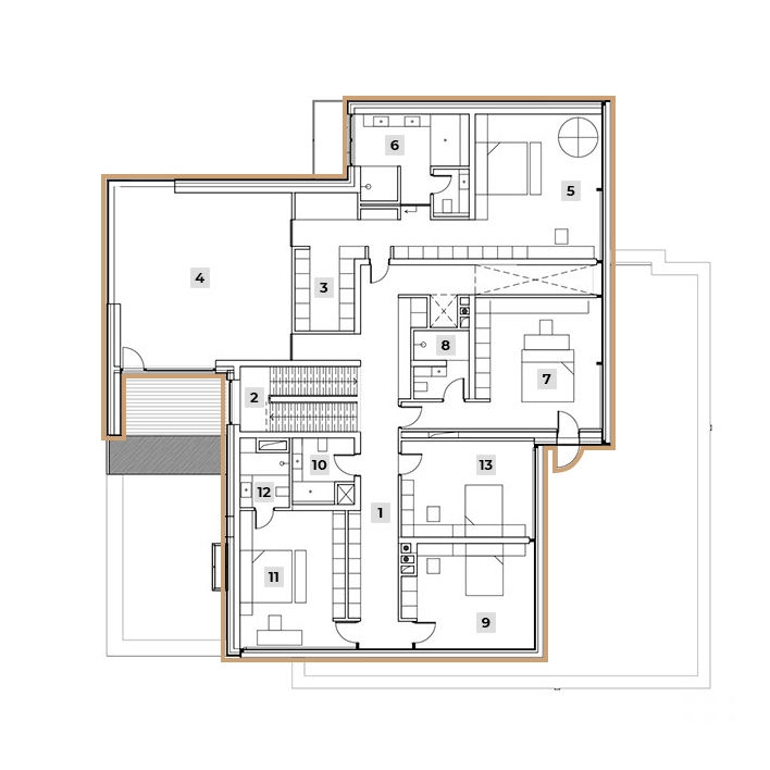
1st floor plan

1st floor plan
Plan details

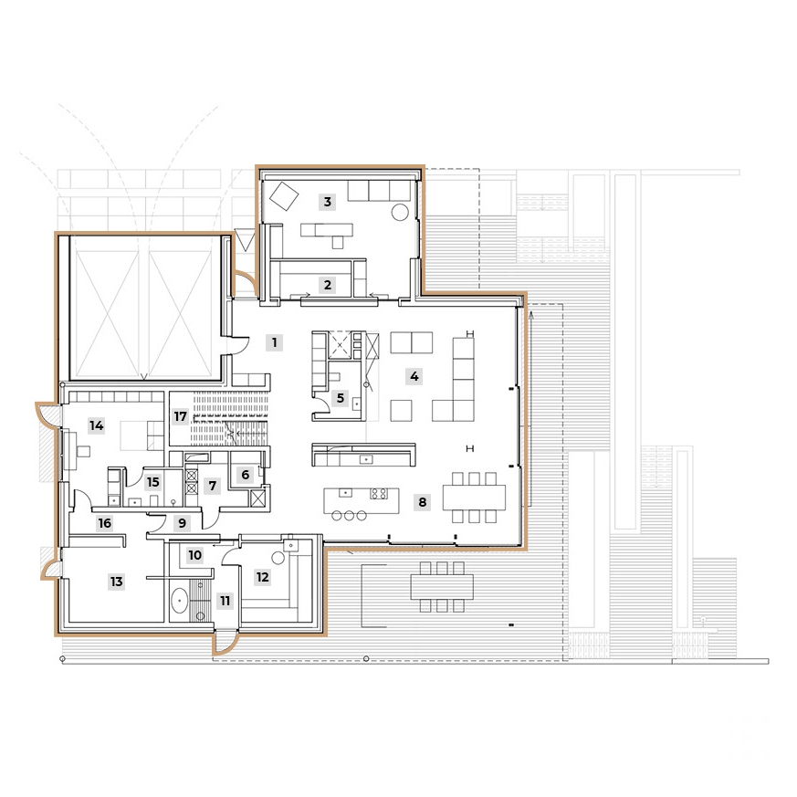
2nd floor plan

2nd floor plan
Plan details


Like this project?

Get an individual consultation with our architect and find out the price for your project


Our projects

Interested in our full portfolio? Click below to view all of our completed projects.

Book A Consultation
And we will answer any questions you have