AETHER HOUSE

Architectural project
  • Studio: ZROBIM architects
  • Location: Lithuania
  • Area: 390 m2
  • Year: 2025

Project Description

Textures, reflections, and tactility.

A minimalist house with an emphasis on materiality and proportion. Clear lines and a restrained palette allow the architecture to blend seamlessly into the landscape and existing buildings, not competing with the surroundings but rather logically continuing them. Here, we utilize one of our key techniques: introverted on the outside, open and bright on the inside.

Stainless steel accents create architectural tension and a subtle contrast with the warm, natural textures of the travertine, enhancing the vertical proportions and lending the architecture additional expressiveness.

The spatial scenario is revealed upon entering: a bright, open space with a second-story skylight forms a visual axis to the courtyard with a terrace, a separate indoor lounge area, and a spa. A thoughtful design detail is the two passages through the dressing room, one of which leads to the staircase, allowing movement between levels without disrupting the flow of the common space.

We paid special attention to natural light and the orientation of the rooms according to the sun. Throughout the day, light changes density and character, reflecting in materials and gradually transforming the atmosphere, creating a quiet dialogue between architecture, landscape, and time.

1st floor plan

1st floor plan
Plan details

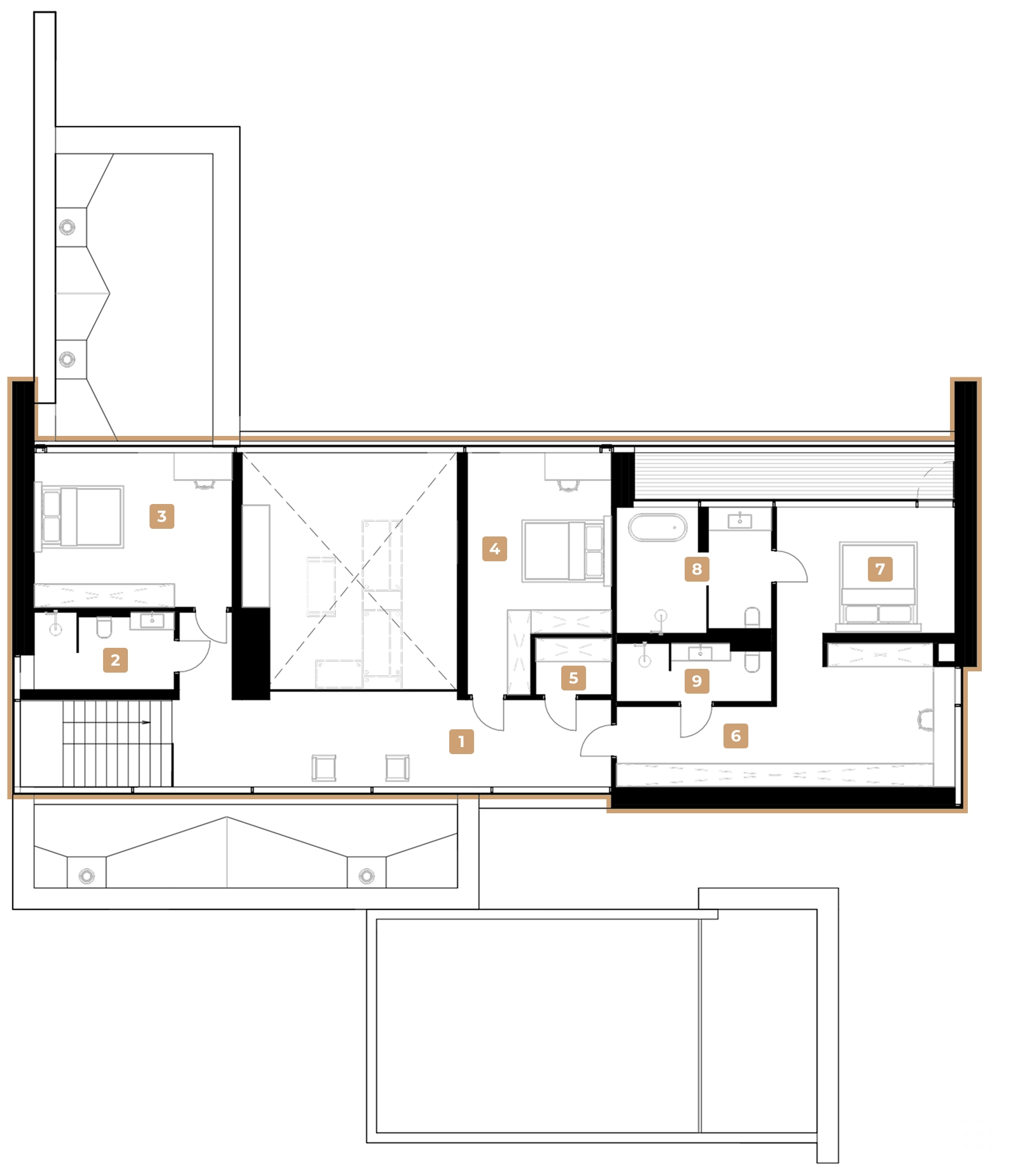
2nd floor plan

2nd floor plan
Plan details


Like this project?

Get an individual consultation with our architect and find out the price for your project


Our projects

Interested in our full portfolio? Click below to view all of our completed projects.

Book A Consultation
And we will answer any questions you have