PROJECT 18 INTERIOR

Private house
  • Studio: ZROBIM architects
  • Area: 673 m2
  • Year: 2020
  • Year of engineering: 2017

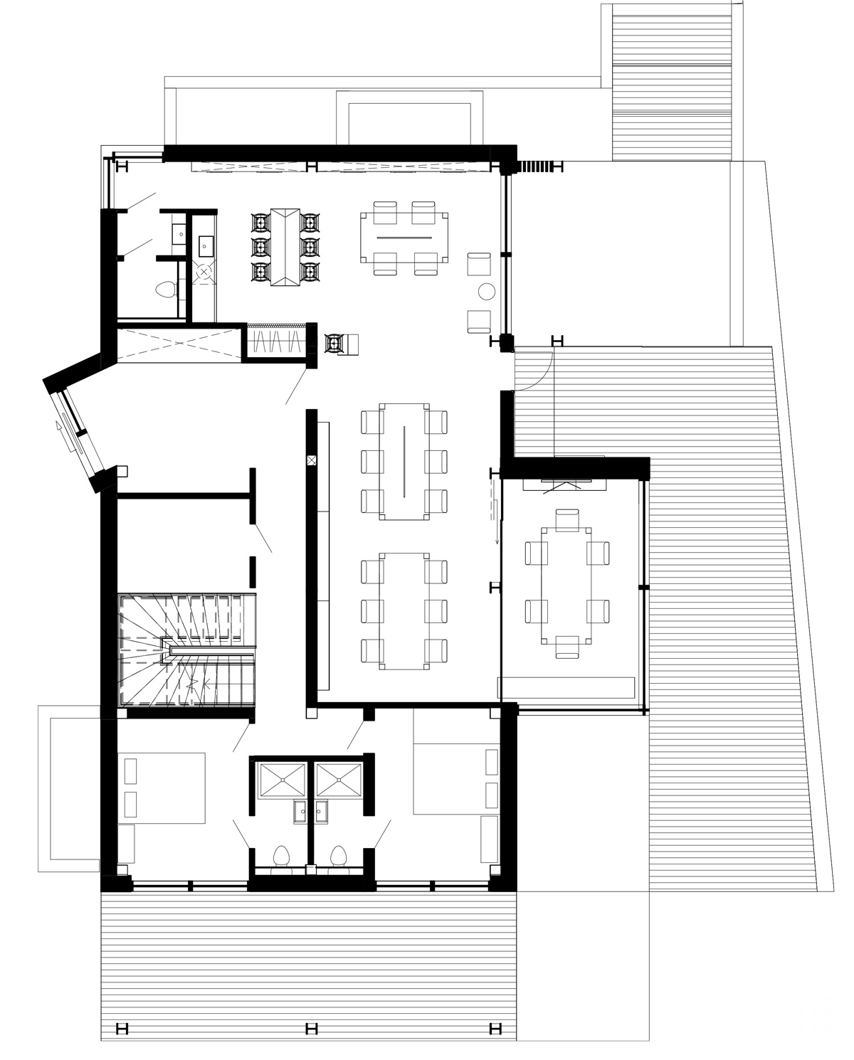
1st floor plan

1st floor plan

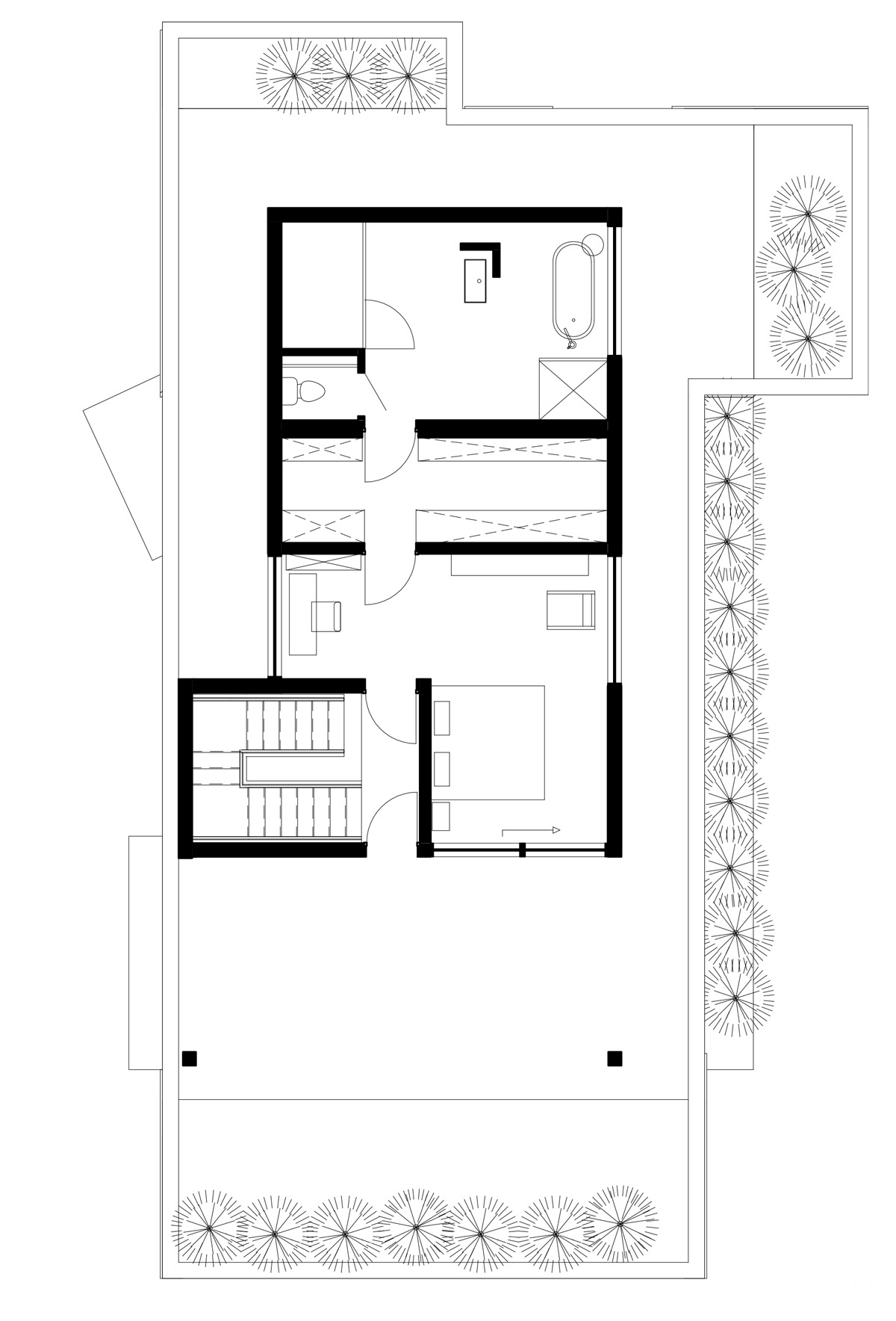
2nd floor plan

2nd floor plan

3rd floor plan

3rd floor plan

See an overview of the project



Like this project?

Get an individual consultation with our architect and find out the price for your project


Our projects

Interested in our full portfolio? Click below to view all of our completed projects.

Book A Consultation
And we will answer any questions you have