PRS Apartment

Apartment design
  • Studio: ZROBIM architects
  • Area: 132 m2
  • Year: 2020

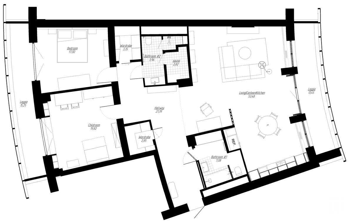
1st floor plan

1st floor plan
Plan details

See an overview of the project

Press publications



Like this project?

Get an individual consultation with our architect and find out the price for your project


Our projects

Interested in our full portfolio? Click below to view all of our completed projects.

Book A Consultation
And we will answer any questions you have