• Studio: ZROBIM architects
  • Area: 96 m2
  • Year: 2016

Project Description

Interior 2-room apartment.

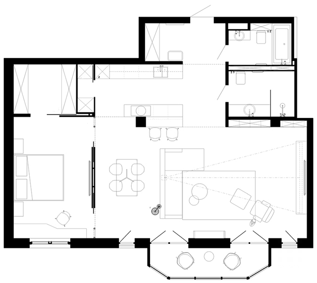
1st floor plan

1st floor plan
Plan details


Like this project?

Get an individual consultation with our architect and find out the price for your project


Our projects

Interested in our full portfolio? Click below to view all of our completed projects.

Book A Consultation
And we will answer any questions you have