WOOBE HOUSE

Architectural project
  • Studio: ZROBIM architects
  • Area: 240 m2
  • Year: 2025

Project Description

This is the case when the limitation in the form of the existing foundation on the site affected both the shape of the house and the concept of the project as a whole.

The customer approached us with a request for a minimalist house that could be built while maintaining the existing foundation measuring 1,311 meters. At the same time, it was important to make the architecture a continuation of the surroundings and dissolve the house in the forest as much as possible. To achieve this, we used a charismatic facade finish that resembles tree bark and enhances the effect of naturalness. And the parapet stained glass windows make the appearance of the house laconic and modern.

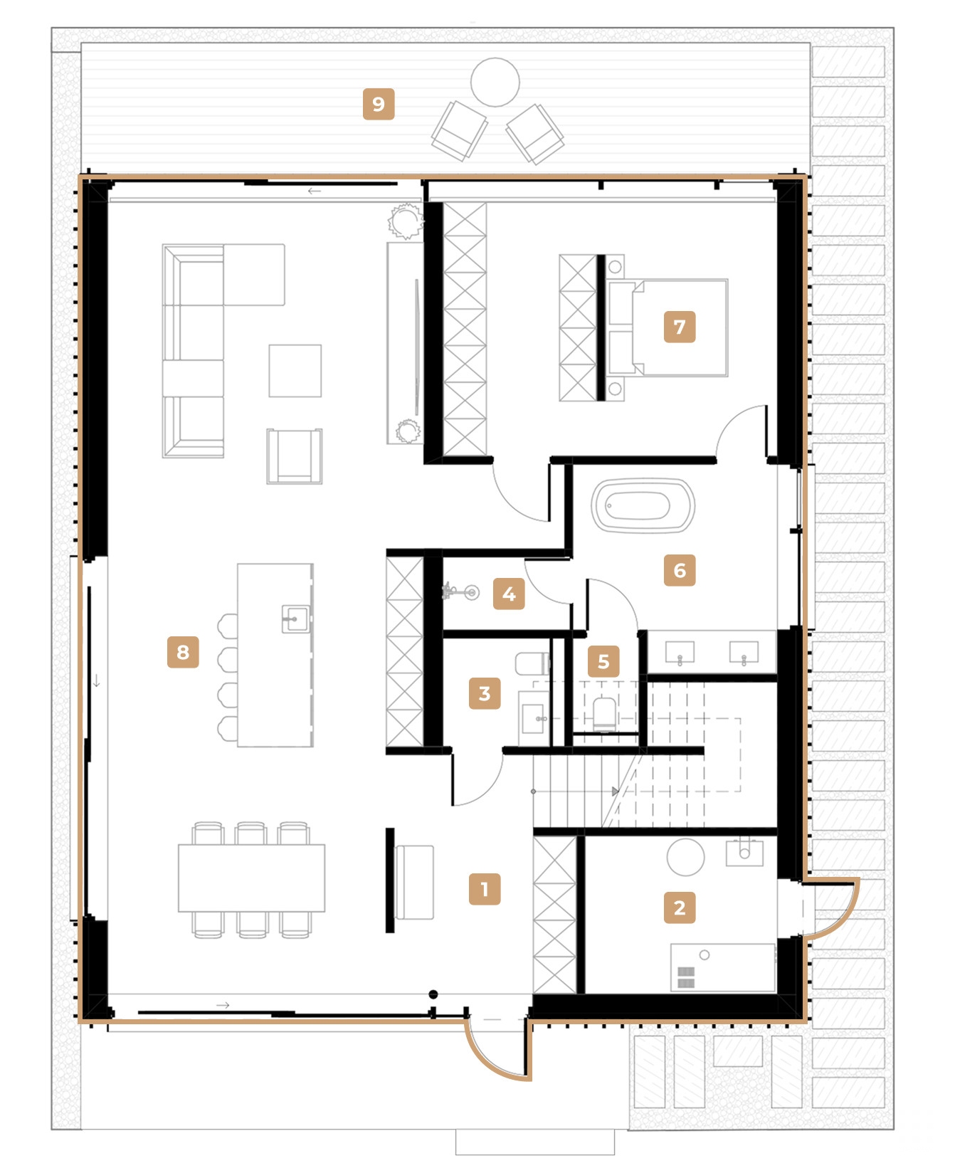
1st floor plan

1st floor plan
Plan details

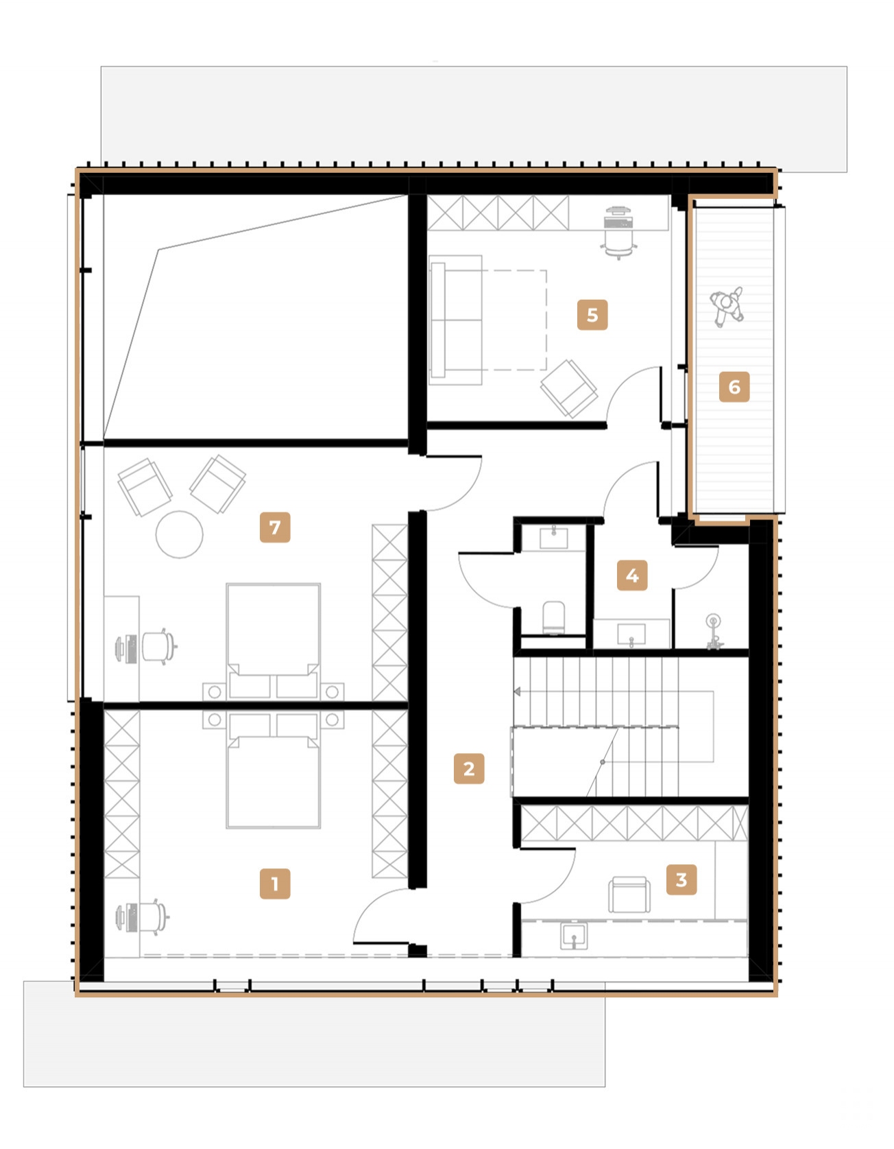
2nd floor plan

2nd floor plan
Plan details


Like this project?

Get an individual consultation with our architect and find out the price for your project


Our projects

Interested in our full portfolio? Click below to view all of our completed projects.

Book A Consultation
And we will answer any questions you have