SQUARE PLACE

Architectural project
  • Studio: ZROBIM architects
  • Area: 249 m2
  • Year: 2022

Project Description

This house was designed for a client who referenced a previous project from our portfolio. We carefully analyzed the original project, identified its essential elements, and reimagined it to meet the client's personalized needs.

The goal was to create a sleek, minimalist home with a dark gray faсade complemented by natural-toned plank. The site's location, nestled near a dense forest, dictated the main design focus. We incorporated large panoramic windows, including a striking 20-foot-high "jumbo" window to capture these scenic views. This feature floods the double-height living space with natural light, welcoming the morning sun into the heart of the home.
For most private rooms, we added external folding shutters that limit light when needed while seamlessly enhancing the home's architectural design.

Privacy from neighboring properties was also a priority, though the challenge was that a concrete base and poles for the fence had already been installed. Our solution was to integrate a covered gallery along the back of the property, connecting one side of the house to the existing fence. To ensure privacy and aesthetic appeal, we camouflaged the supports with a fine mesh. We introduced climbing plants, which not only blocked the view of the neighbor's yard but also created a serene walking area under the gallery.

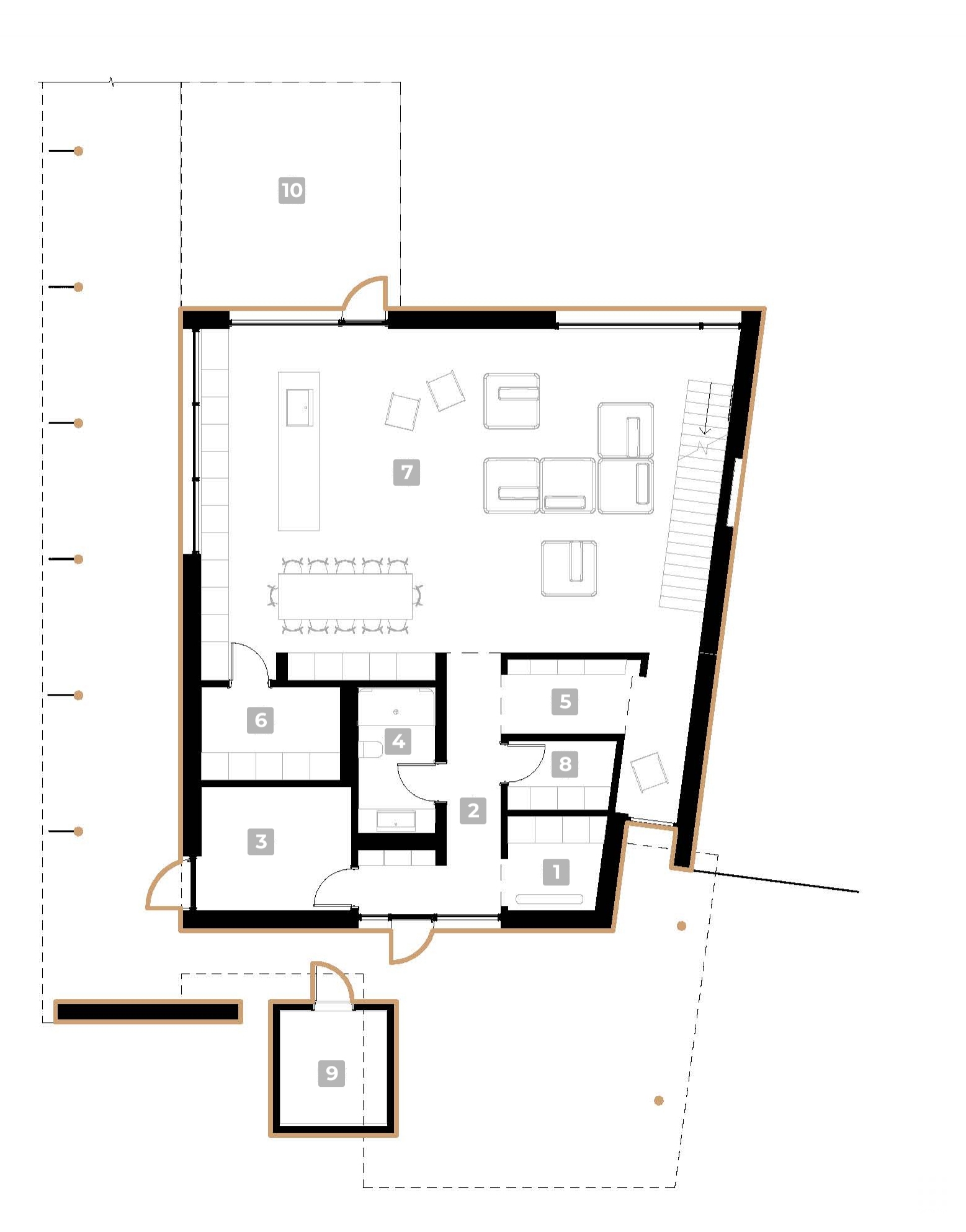
1st floor plan

1st floor plan
Plan details

2nd floor plan

2nd floor plan
Plan details

Press publications



Like this project?

Get an individual consultation with our architect and find out the price for your project


Our projects

Interested in our full portfolio? Click below to view all of our completed projects.

Book A Consultation
And we will answer any questions you have