SMUGA

Modular house project
  • Studio: ZROBIM architects
  • Location: Minsk region, dacha cooperative «Ouzghorye», Belarus
  • Area: 68 m2
  • Year: 2017

Project Description

The Smuga project blends the essence of a traditional Belarusian home with a gable roof and the simplicity of Scandinavian design.

This prefabricated, modern modular house offers customizable configurations to meet the customer's specific needs. All load-bearing components, utilities, and facade materials are pre-installed in the production modules, allowing on-site assembly like a construction set. As family needs evolve, additional modules can be added, expanding the home as desired.

The project combines eco-friendly materials, energy efficiency, functionality, and affordability. The foundation uses an insulated Swedish plate, while cedar wood and Scandinavian larch are featured in both the facade and interior finishes.

A double-height living area, panoramic windows, distinctive exterior design, and a cozy terrace create a spacious, inviting atmosphere.

For more information or to order, please visit our modular homes website at https://modular-house.by/

  • SMUGA
  • SMUGA

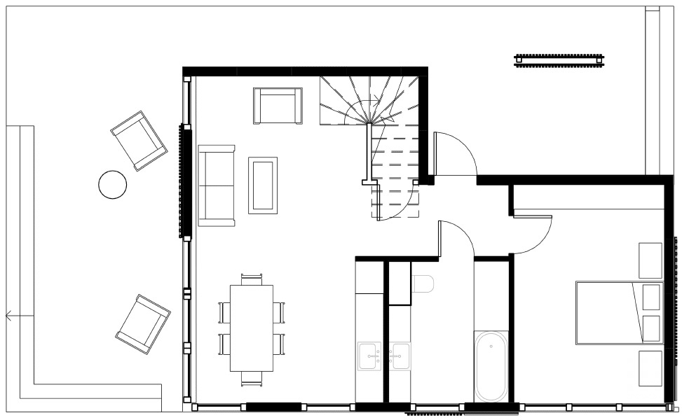
1st floor plan

1st floor plan

2nd floor plan

2nd floor plan

See an overview of the project

Press publications



Like this project?

Get an individual consultation with our architect and find out the price for your project


Our projects

Interested in our full portfolio? Click below to view all of our completed projects.

Book A Consultation
And we will answer any questions you have