Raven's house

Architectural project
  • Studio: ZROBIM architects
  • Area: 288,2 m2
  • Year: 2021

Project Description

This project presented a unique challenge due to a gas pipe running across the entire site, leading to a denser layout and positioning the house toward the north.

The house spans two levels with subtle cantilevered sections, incorporating natural materials contrasting with its minimalist design. Untreated larch used on the first-floor facades "breathes" and naturally changes color with age and season.

Despite site constraints and the house's complex positioning, expansive panoramic windows allow ample sunlight to fill the interiors and offer views of the surrounding landscape.

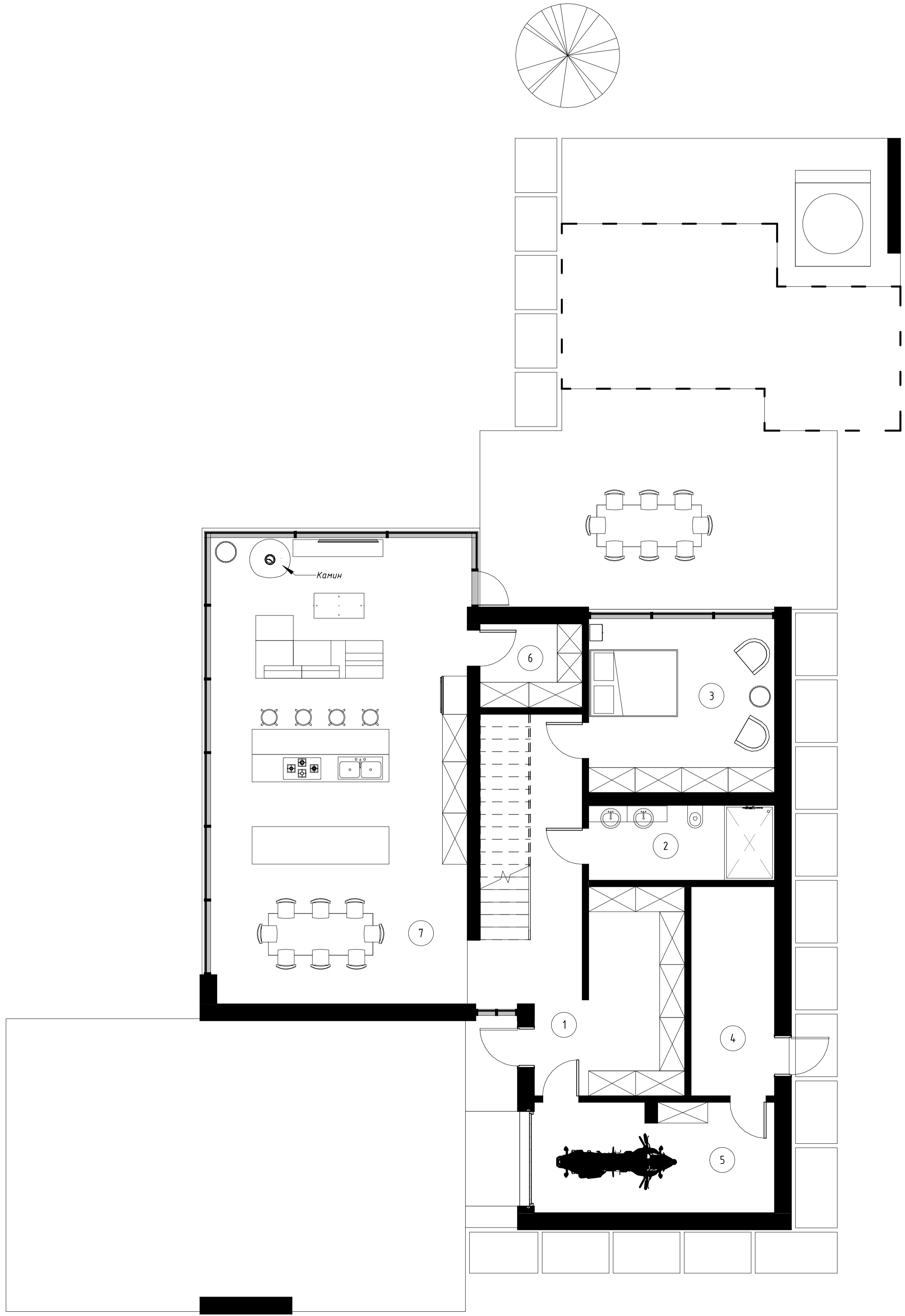
1st floor plan

1st floor plan
Plan details

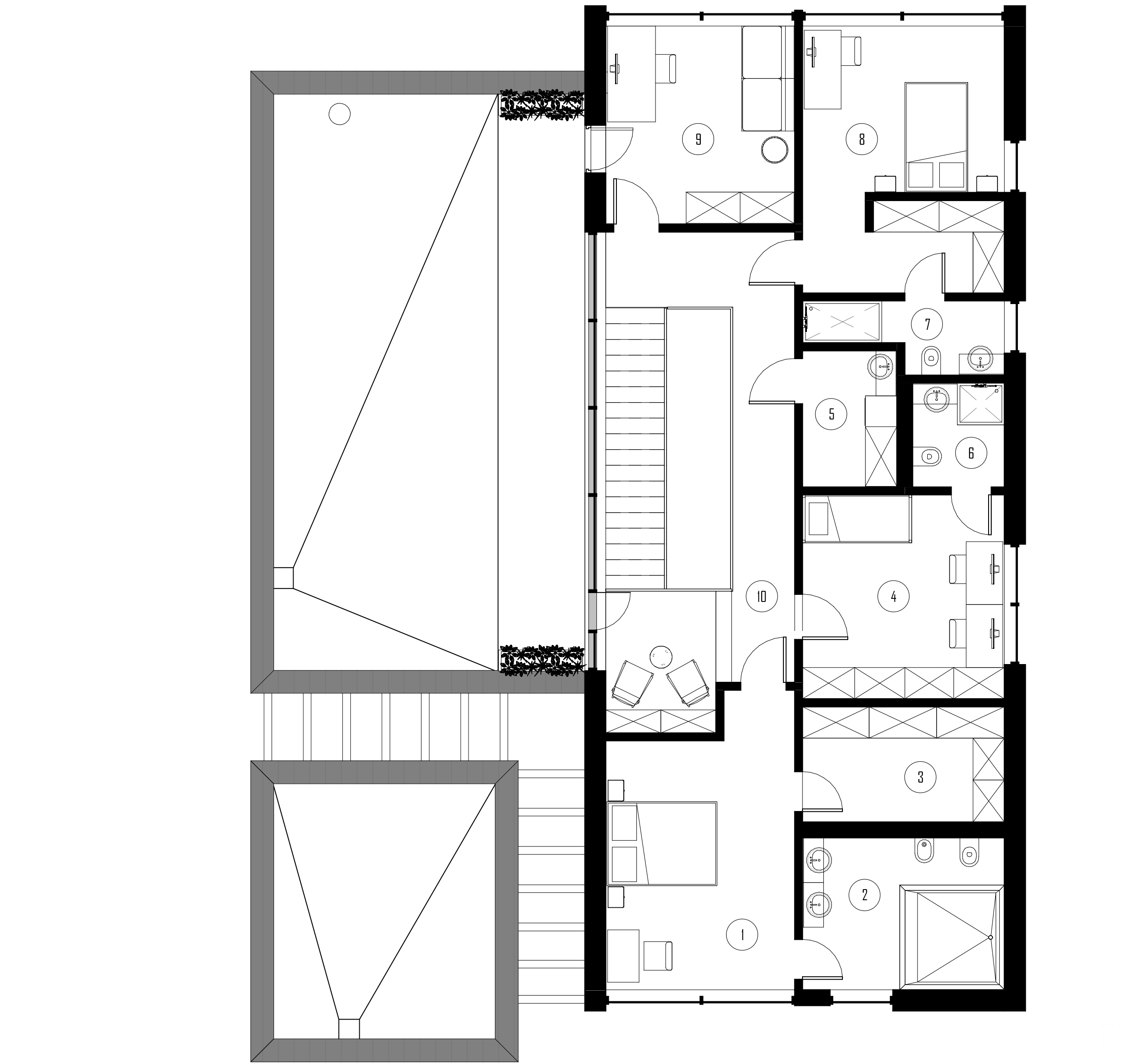
2nd floor plan

2nd floor plan
Plan details


Like this project?

Get an individual consultation with our architect and find out the price for your project


Our projects

Interested in our full portfolio? Click below to view all of our completed projects.

Book A Consultation
And we will answer any questions you have