PERSPECTIVE HOUSE

Architectural project
  • Studio: ZROBIM architects
  • Area: 260 m2
  • Year: 2021

Project Description

The primary goal of this project was to create a house that inspires a wide range of emotions with its unique, slightly avant-garde architecture.

Designed for rental, the house’s layout encourages shared experiences and relaxation. This concept is further enhanced by the dense forest surroundings and the water feature, which begins with a pool and flows into a cascading system, visually merging the house with its natural environment.

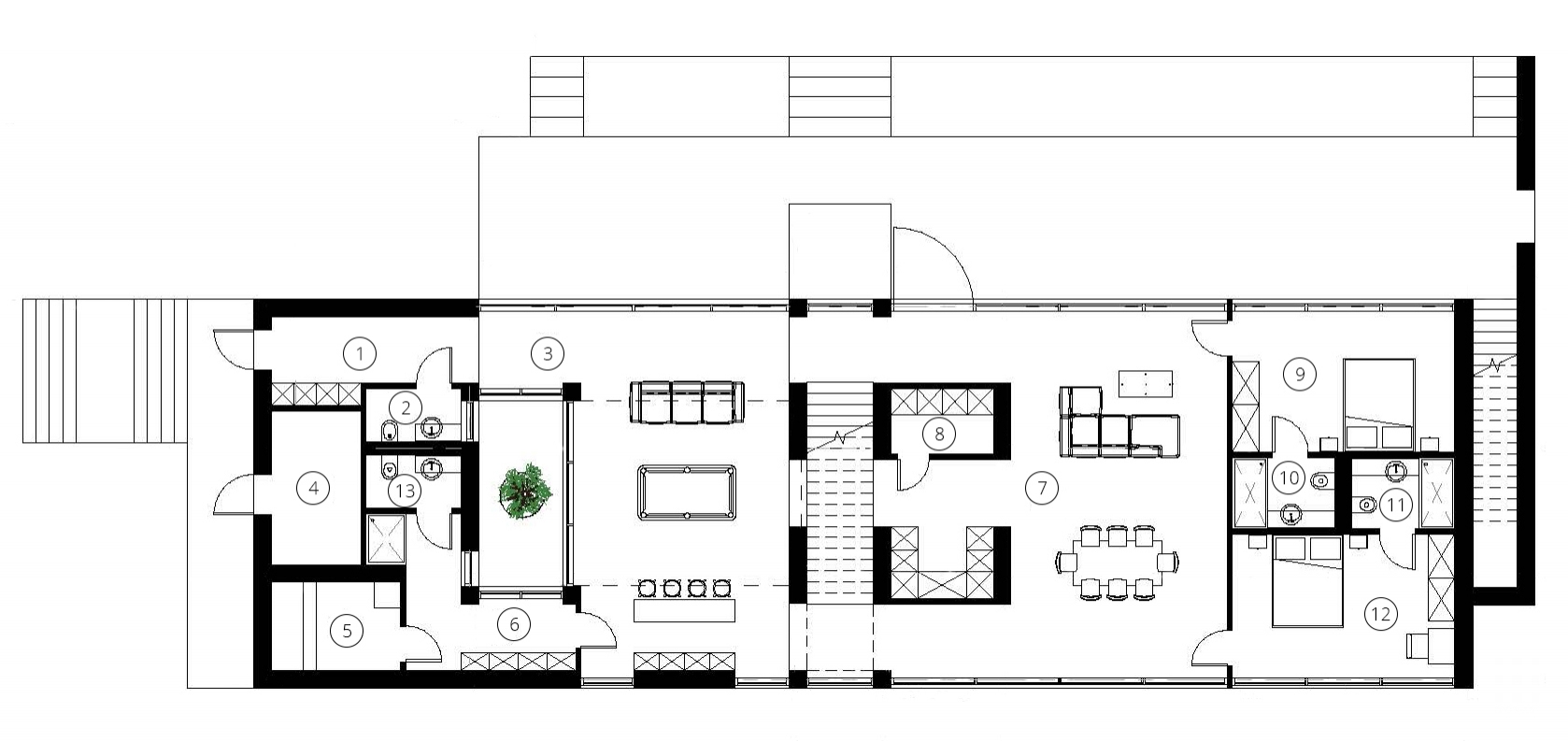
1st floor plan

1st floor plan
Plan details

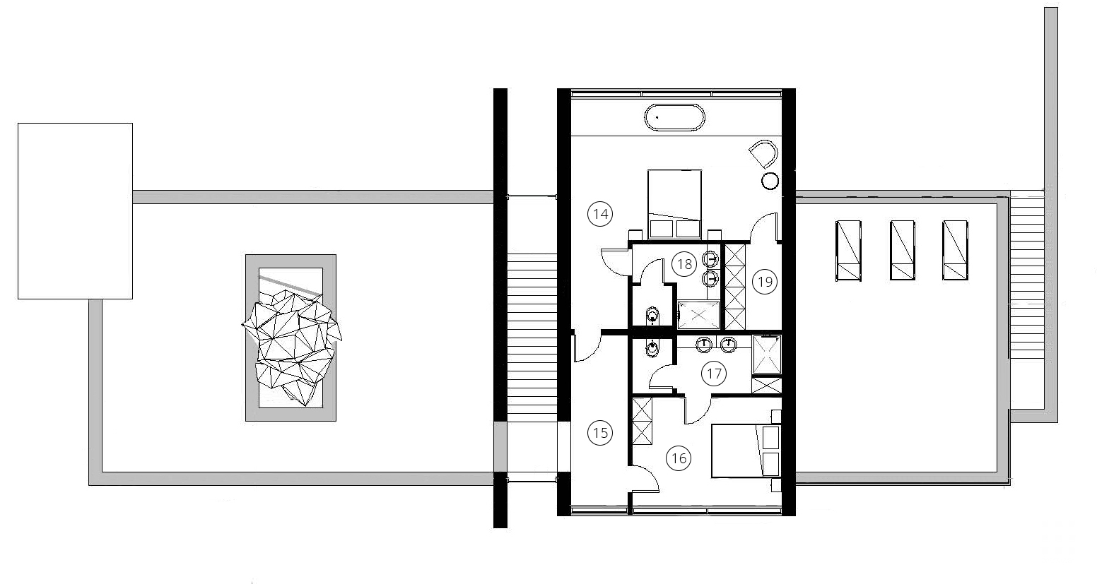
2nd floor plan

2nd floor plan
Plan details


Like this project?

Get an individual consultation with our architect and find out the price for your project


Our projects

Interested in our full portfolio? Click below to view all of our completed projects.

Book A Consultation
And we will answer any questions you have