OIA DOWNTOWN

Architectural project
  • Studio: ZROBIM architects
  • Location: Saudi Arabia
  • Area: 1609 m2
  • Year: 2024

Project Description

This project is a modern women's club in Saudi Arabia, where our primary goal was to create a landscape and façade design that fosters a comfortable, private environment while offering a wide range of services and recreational facilities. The club includes restaurants, cafes, co-working spaces, beauty salons, beaches, swimming pools, and more.

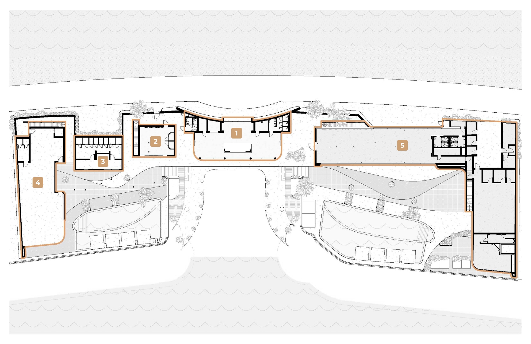
The complex is designed in a "U" shape, with an enclosed courtyard featuring swimming pools, water access, and a private beach. The symmetrical layout is inspired by palace complexes and is divided into three sections: the central block and the left and right wings.

The central block is at the heart of the complex, which also serves as the main entrance. This block is a solid, opaque structure from the outside, with entry through a brass portal and a flowing waterfall. In contrast, the inner façade features extensive glazing and terraces that, along with recreational spaces and carefully designed landscaping, create a private and tranquil atmosphere shielded from public view, with direct access to the ocean.

  • OIA DOWNTOWN

1st floor plan

1st floor plan
Plan details


Like this project?

Get an individual consultation with our architect and find out the price for your project


Our projects

Interested in our full portfolio? Click below to view all of our completed projects.

Book A Consultation
And we will answer any questions you have