MARUPE HOUSE

Architectural project
  • Studio: ZROBIM architects
  • Location: Riga, Latvia
  • Area: 386 m2
  • Year: 2022

Project Description

In designing this house in the suburbs of Riga, our primary goal was to preserve the picturesque forest and integrate the house seamlessly into its natural surroundings. We achieved this harmony between architecture and nature by thoughtfully positioning the home on a plot with pronounced elevation changes and using warm, natural materials.

The layout features two planning and viewing axes, with the house composed of several functional blocks that are "threaded" along these axes. This design creates a spacious central living room that serves as the heart of the home.

Plans for the project include expanding the landscape with natural elements and adding a tea house and a bathhouse equipped with a summer kitchen, further enhancing the connection to the natural environment.

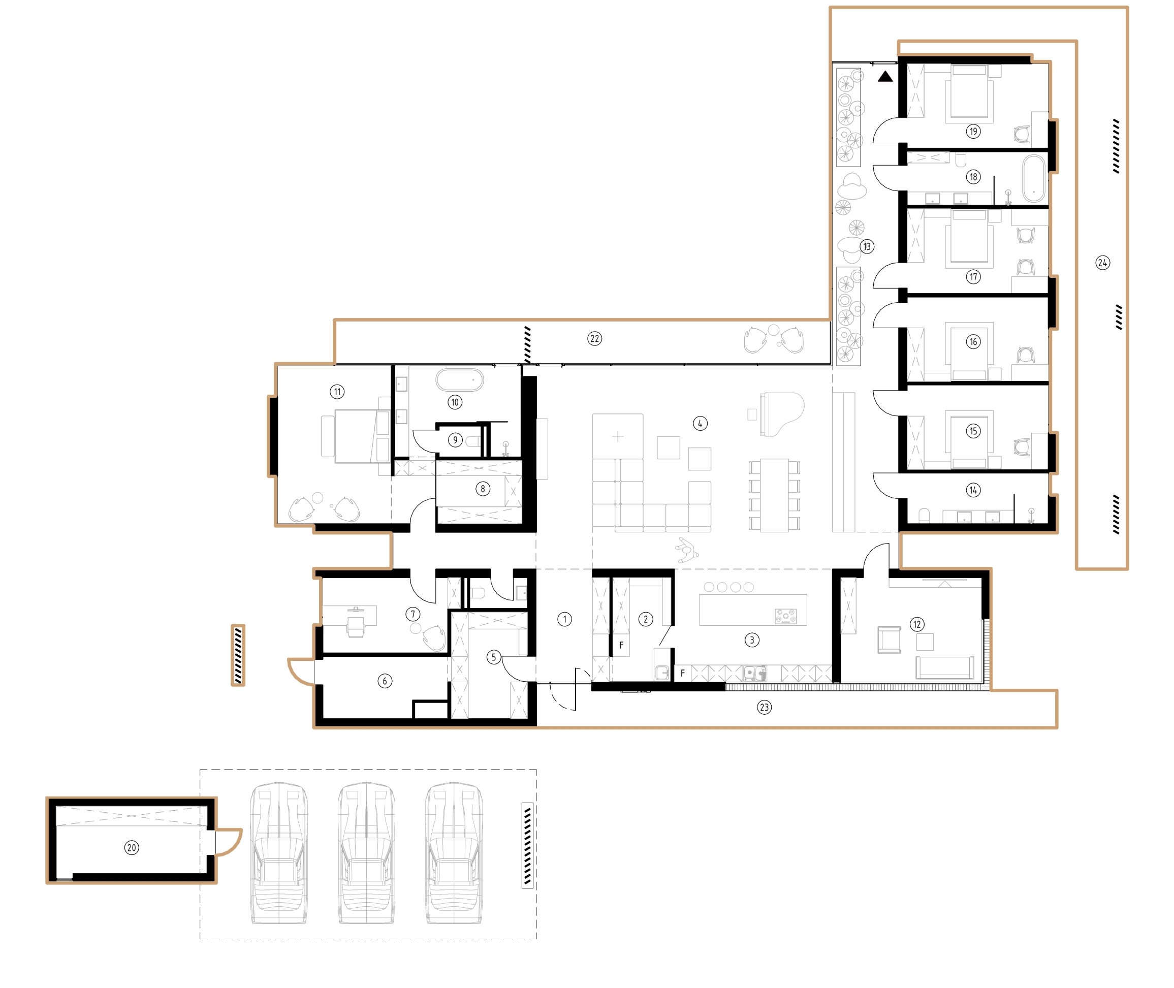
1st floor plan

1st floor plan
Plan details


Like this project?

Get an individual consultation with our architect and find out the price for your project


Our projects

Interested in our full portfolio? Click below to view all of our completed projects.

Book A Consultation
And we will answer any questions you have