M Residence

Architectural project
  • Studio: ZROBIM architects
  • Area: 207 m2
  • Year: 2020

Project Description

This home near Moscow is on a sloped site, featuring numerous outdoor terraces and open spaces oriented along the incline. Constructed with a laminated veneer lumber frame on screw piles, the design includes an extended terrace that doubles as a carport due to the terrain.

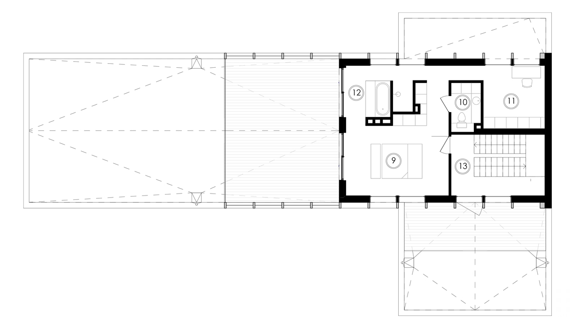
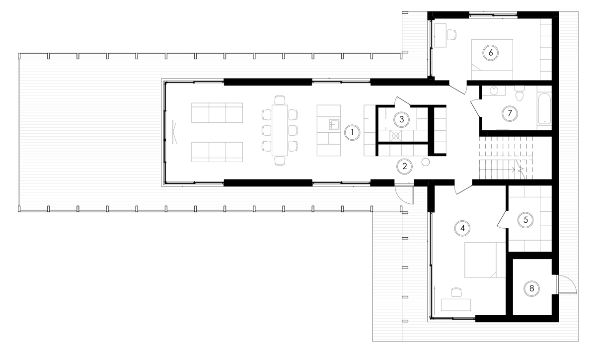
The ground floor features a living room with an open-plan kitchen, oriented westward to capture the best views along the slope. The T-shaped layout maximizes views from all living spaces, particularly those in the eastern part of the house. The second floor houses a master bedroom with an open bathroom facing the window, a secluded office, and access to the functional rooftop.

The project’s core concept centers on simple, authentic, yet modern architecture, emphasizing openness to the environment and a seamless connection with the surrounding landscape.

1st floor plan

1st floor plan
Plan details

2nd floor plan

2nd floor plan
Plan details


Like this project?

Get an individual consultation with our architect and find out the price for your project


Our projects

Interested in our full portfolio? Click below to view all of our completed projects.

Book A Consultation
And we will answer any questions you have