FJORD A2

Architectural project
  • Studio: ZROBIM architects
  • Area: 250 m2
  • Year: 2025

Project Description

The house's architecture is built on contrasting forms and materials. The cantilevered volume of the second floor seems to hover in mid-air, creating a cozy shelter for the terrace and giving the house an expressive, flowing character.

At its core lies an honest dialogue of materials—the warm clinker brick of the first floor and the cool texture of the corrugated metal of the second. Together, they create a character in which the rigor of geometry is combined with a sense of warmth and comfort.

All the public spaces are concentrated on the ground floor: a spacious living room and a kitchen-dining room with access to the terrace. Several bedrooms with en-suite bathrooms and dressing rooms are also located here. The second floor is a private area: a master suite and a study, providing a comfortable retreat for both relaxation and work.

The house combines simplicity of form, the strength of materials, and the openness of light. This is a space where architecture collaborates with nature, creating an atmosphere of harmony and inner comfort.

  • FJORD A2

1st floor plan

1st floor plan
Plan details

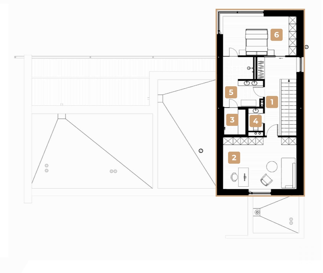
2nd floor plan

2nd floor plan
Plan details


Like this project?

Get an individual consultation with our architect and find out the price for your project


Our projects

Interested in our full portfolio? Click below to view all of our completed projects.

Book A Consultation
And we will answer any questions you have