Концепция 1
Концепция 2
Концепция 3
Концепция 4
ECHO is a renovation project transforming an industrial site into a modern cultural quarter with developed infrastructure, leisure zones, and commercial spaces adaptable for various purposes and needs.
The project is based on the idea of merging history and modernity through functional zoning and careful preservation of the existing environment. Special attention is given to retaining greenery and emphasizing the site’s uniqueness by creatively reinterpreting its industrial past.
Most industrial renovation projects in the city are concentrated closer to the center. Our site is located slightly further out — and this very fact becomes its advantage. Thanks to its location, it can attract not only residents of central districts but also those from the city’s periphery, while remaining in immediate proximity to prestigious residential quarters.
At the same time, the territory maintains excellent transport accessibility: it is situated on one of the city’s key thoroughfares — Independence Avenue — ensuring convenient connectivity for both motorists and public transport users.
Legend
|
|
Residential Development |
|
|
Industrial and Utility Facilities |
|
|
Educational Institutions |
|
|
Public Facilities |
|
|
VOGUE Residential Complex |
|
|
Proposed Development Area |
Our goal was to create the most diverse functional program possible, ensuring a broad audience — thereby increasing foot traffic and, consequently, enhancing the space’s appeal to potential tenants.
The zoning accounts for client needs, architectural vision, and city residents’ interests — ensuring comfort and a variety of usage scenarios across seasons. This approach enabled the creation of a balanced space where industrial heritage harmoniously coexists with the modern urban rhythm.

Based on preliminary analysis of the complex’s internal and external spaces, we developed an optimal functional layout for the renovated «Luch» factory buildings and adjacent areas.

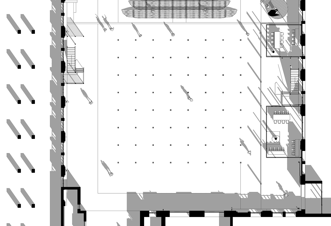
The first floor is a dynamic space combining a market, sports zones, production and technical areas, service and individual practitioner units, an event hall, and a food court — the very rhythm-setting core of the entire complex.
Legend
|
|
Market |
|
|
Food & Beverage / Bar |
|
|
Event Hall |
|
|
Services + Private Practitioners |
|
|
Technical Zone |
|
|
Order Pickup Points |
|
|
Production Area |
|
|
Sports Zone |

The second floor is the hub of life and social interaction: sports and services coexist here with a food court, coworking space, and event hall — a space of energy, ideas, and new connections.
Legend
|
|
Food & Beverage / Bar |
|
|
Event Hall |
|
|
Coworking Space |
|
|
Services + Private Practitioners |
|
|
Sports Zone |

The third floor is dedicated to a spacious sports area, thoughtfully zoned for training, recovery, and relaxation.
Legend
|
|
Sports Zone |
We designed a modular, transformable space capable of evolving over time — shifting scenarios from fair to art installation.









Interested in our full portfolio? Click below to view all of our completed projects.