CNA Residence

Architectural project
  • Studio: ZROBIM architects
  • Area: 223 m2
  • Year: 2024
  • Year of design: 2021

Project Description

The CNA HOUSE concept is rooted in a horizontal modernist design characterized by precise geometry and balanced proportions. Combining steel structures, wood textures, and concrete panels creates a cohesive material palette that preserves the house's overall integrity.

The second floor is offset from the ground floor, lending visual lightness without adding bulk to the composition. A carefully planned layout optimizes room comfort within the home's size, while the kitchen-living area extends to an outdoor terrace lounge, enhancing the living environment with thoughtful decorative elements.

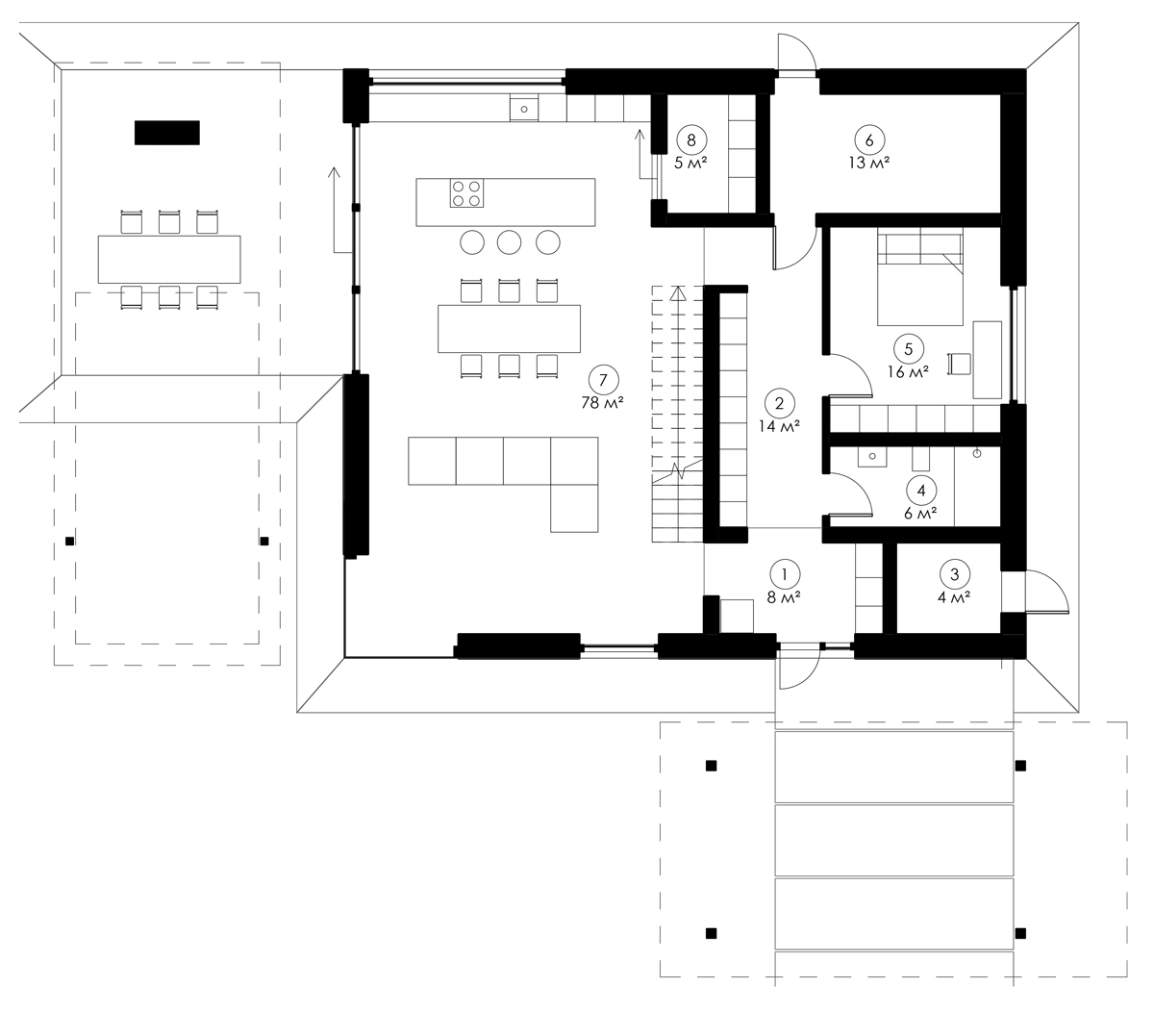
1st floor plan

1st floor plan
Plan details

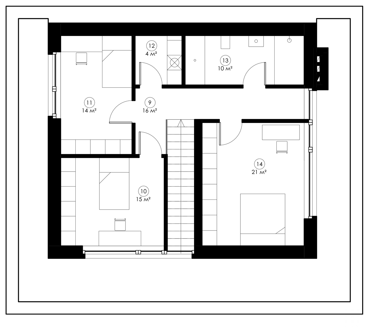
2nd floor plan

2nd floor plan
Plan details

See an overview of the project

Press publications



Like this project?

Get an individual consultation with our architect and find out the price for your project


Our projects

Interested in our full portfolio? Click below to view all of our completed projects.

Book A Consultation
And we will answer any questions you have