CHIARO HOUSE

Architectural project
  • Studio: ZROBIM architects
  • Area: 2421,9 ft2
  • Year: 2023

Project Description

This house is located on the shoreline of the Gulf of Finland and was designed for a young, creative family with two children as an occasional residence. Our goal was to create a visually striking home, evident both in its architectural form and layout. To achieve this, we positioned the master bedroom on the second floor, featuring an impressive panoramic window and an in-room bathroom. Additionally, we incorporated a glass bridge that crosses the double-height living room, leading to a functional rooftop space.

The architectural design was driven by the need to address multiple factors: maximizing the stunning views of the Gulf of Finland while ensuring protection from the area's strong, gusty winds. We arranged all living areas to provide maximum shelter while maintaining open, scenic views.

A unique aspect of the project is the inclusion of a helipad, allowing helicopter access to the property and adding a distinct and practical feature to the design.

  • CHIARO HOUSE

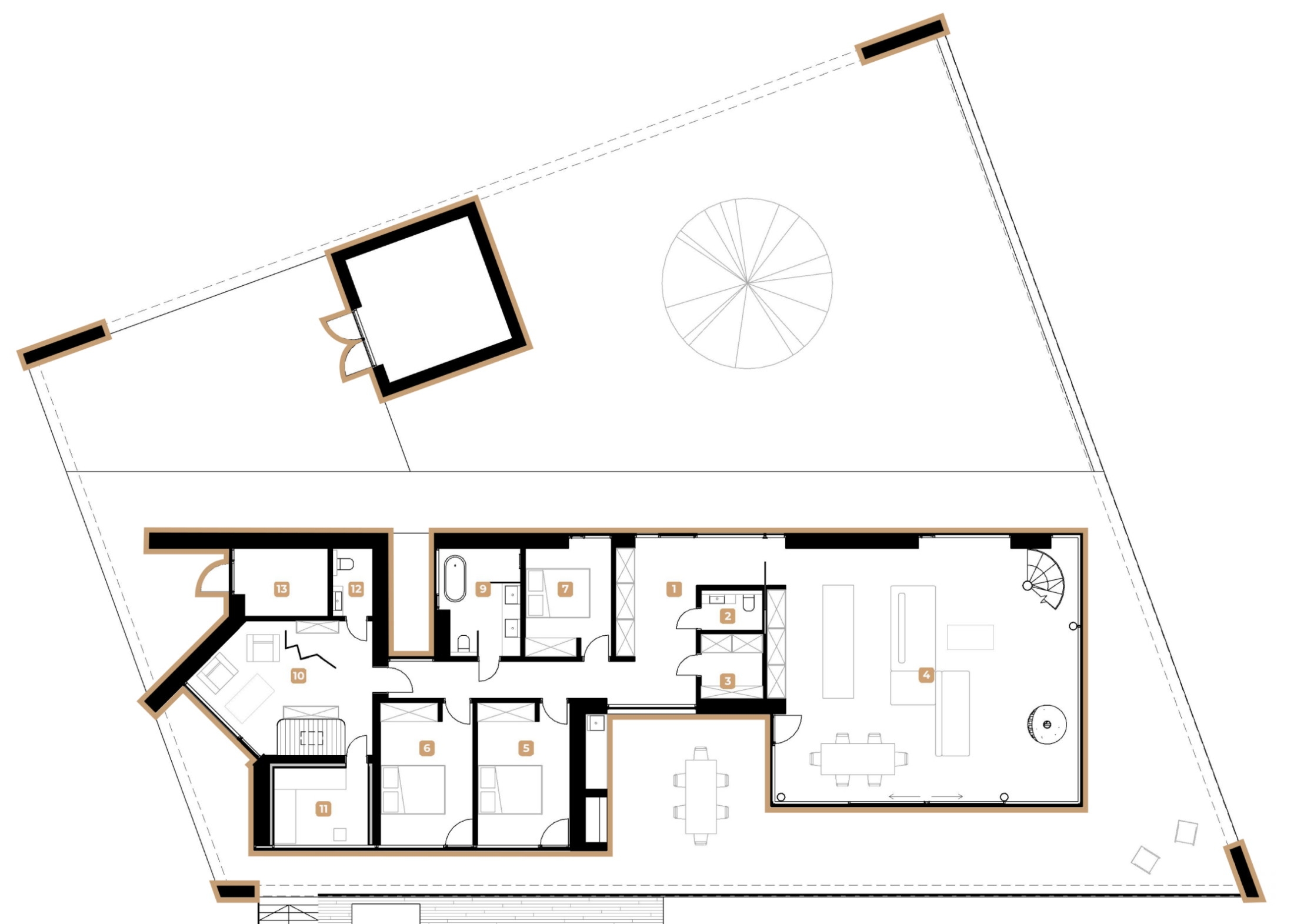
1st floor plan

1st floor plan
Plan details

2nd floor plan

2nd floor plan
Plan details

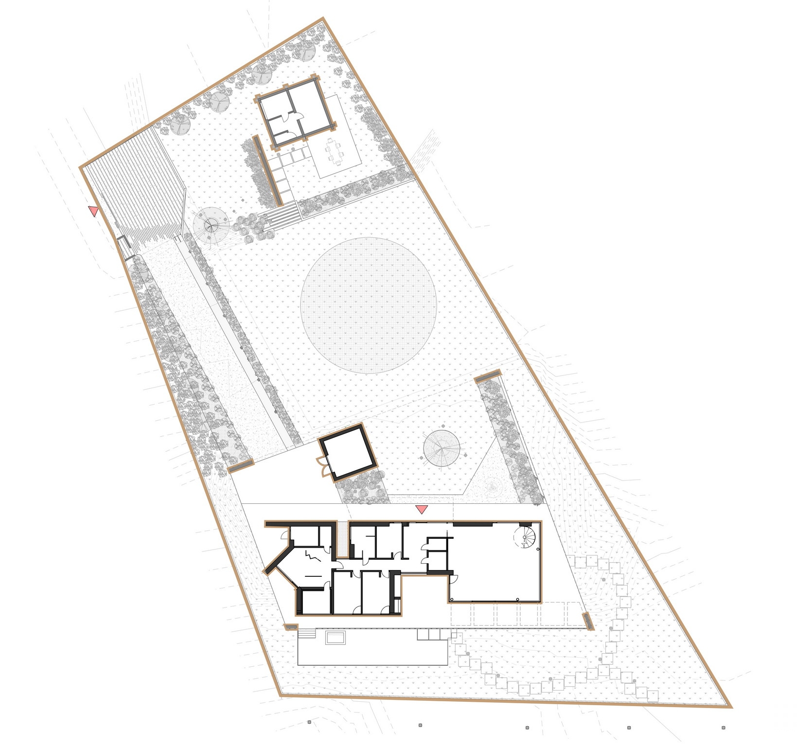
General plan

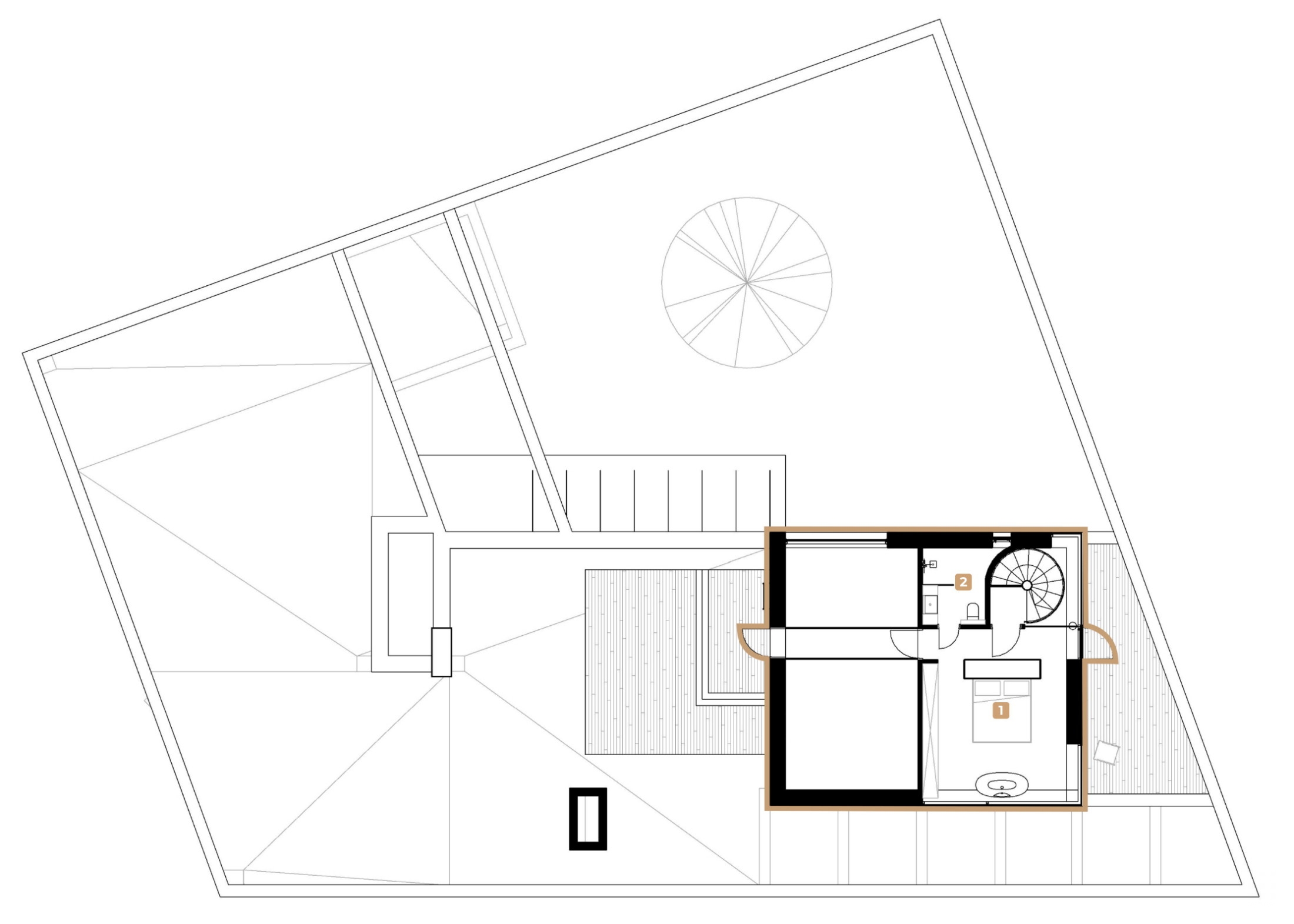
3rd floor plan


Like this project?

Get an individual consultation with our architect and find out the price for your project


Our projects

Interested in our full portfolio? Click below to view all of our completed projects.

Book A Consultation
And we will answer any questions you have