SOUTH APARTMENT

Apartment design
  • Studio: ZROBIM architects
  • Area: 115 m2
  • Year: 2019

Project Description

The client's main request was to create a comfortable and highly functional space. To achieve this, we used a restrained color palette, natural textures, and sustainable materials throughout. The residence, thanks to its curved panoramic windows, benefits from abundant natural light.

Our clients, a sophisticated married couple, value comfort and functionality highly. The furniture is crafted in rich, deep tones and elegant wood finishes. To balance this, wall treatments were kept light, making the space feel open and airy. Subtle color accents are included in the hallway and bedroom to add visual interest.

The high ceilings allowed us to incorporate a loft space, a cozy guest room with a bathroom and storage system.

Custom-designed furniture and lighting were tailored for seamless zoning, ensuring the dining area's lamp complements the focal lighting in the living room's lounge space. The geometric accents in the decor align purposefully with the architectural axes, creating a cohesive and balanced atmosphere.

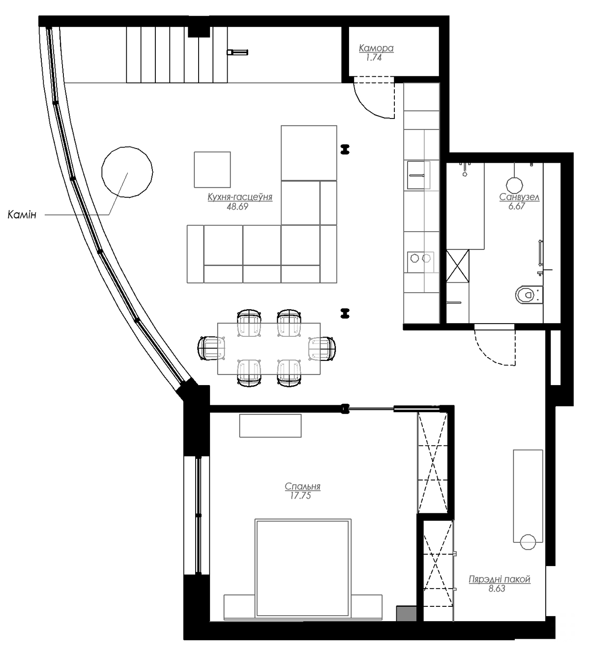
1st floor plan

1st floor plan
Plan details

2nd floor plan

2nd floor plan
Plan details


Like this project?

Get an individual consultation with our architect and find out the price for your project


Our projects

Interested in our full portfolio? Click below to view all of our completed projects.

Book A Consultation
And we will answer any questions you have