VESNINKA HOUSE

Architectural project
  • Studio: ZROBIM architects
  • Area: 4800 ft2
  • Year: 2020

Project Description

This house showcases a variety of unique features and custom design solutions, blending innovative engineering with striking architectural design.

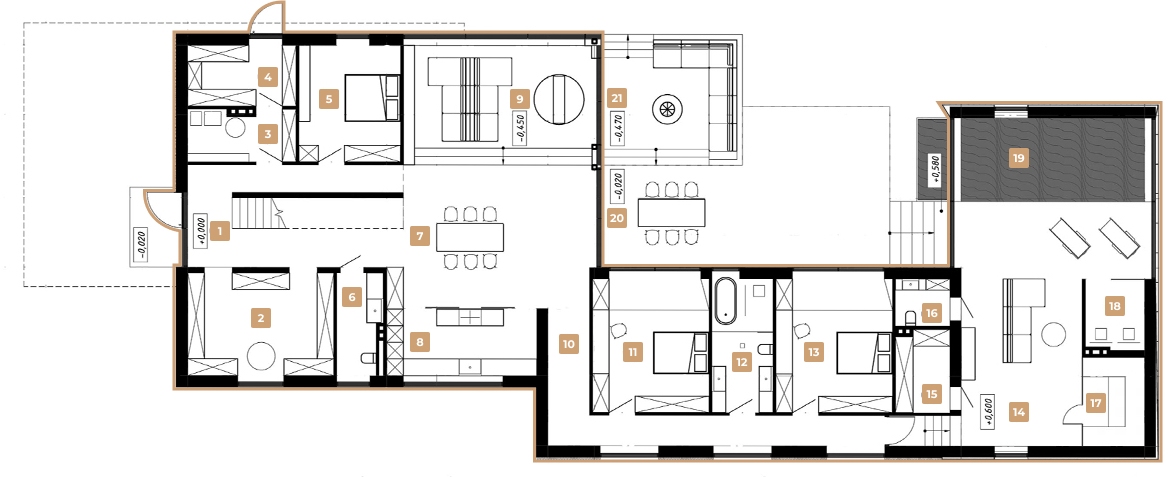
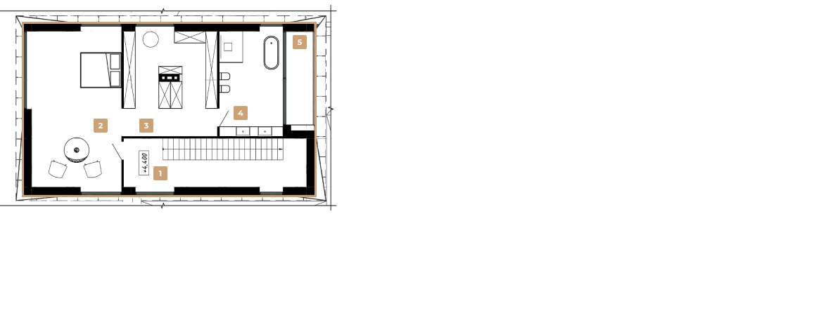
The first floor is seamlessly integrated into the landscape, incorporating all essential functional areas within its layout. The second floor, distinguished by its unique shape, is dedicated to the master bedroom, complete with its own fireplace.

The facade materials further enhance the home's character, combining Parlex panels with fiber cement to create a minimalist yet visually appealing architectural style.

  • VESNINKA HOUSE
  • VESNINKA HOUSE
  • VESNINKA HOUSE
  • VESNINKA HOUSE
  • VESNINKA HOUSE

1st floor plan

1st floor plan
Plan details

2nd floor plan

2nd floor plan
Plan details

See an overview of the project



Like this project?

Get an individual consultation with our architect and find out the price for your project


Our projects

Interested in our full portfolio? Click below to view all of our completed projects.

Book A Consultation
And we will answer any questions you have