SHELEST HOUSE

Architectural project
  • Studio: ZROBIM architects
  • Location: Kiev, Ukraine
  • Area: 228,6 m2
  • Year: 2022

Project Description

This project is a unique house designed as part of a recreational complex intended for rental. Our primary goal was to create a charismatic and memorable space that offers guests an exceptional experience.

One of the standout features is the pond, which flows from the exterior into the interior, serving as a striking visual element inside and outside the house.

We greatly emphasized privacy since multiple houses will be part of this complex. We carefully oriented all main rooms toward private areas, ensuring they remain shielded from outside views and providing guests with a secluded and relaxing atmosphere.

1st floor plan

1st floor plan
Plan details

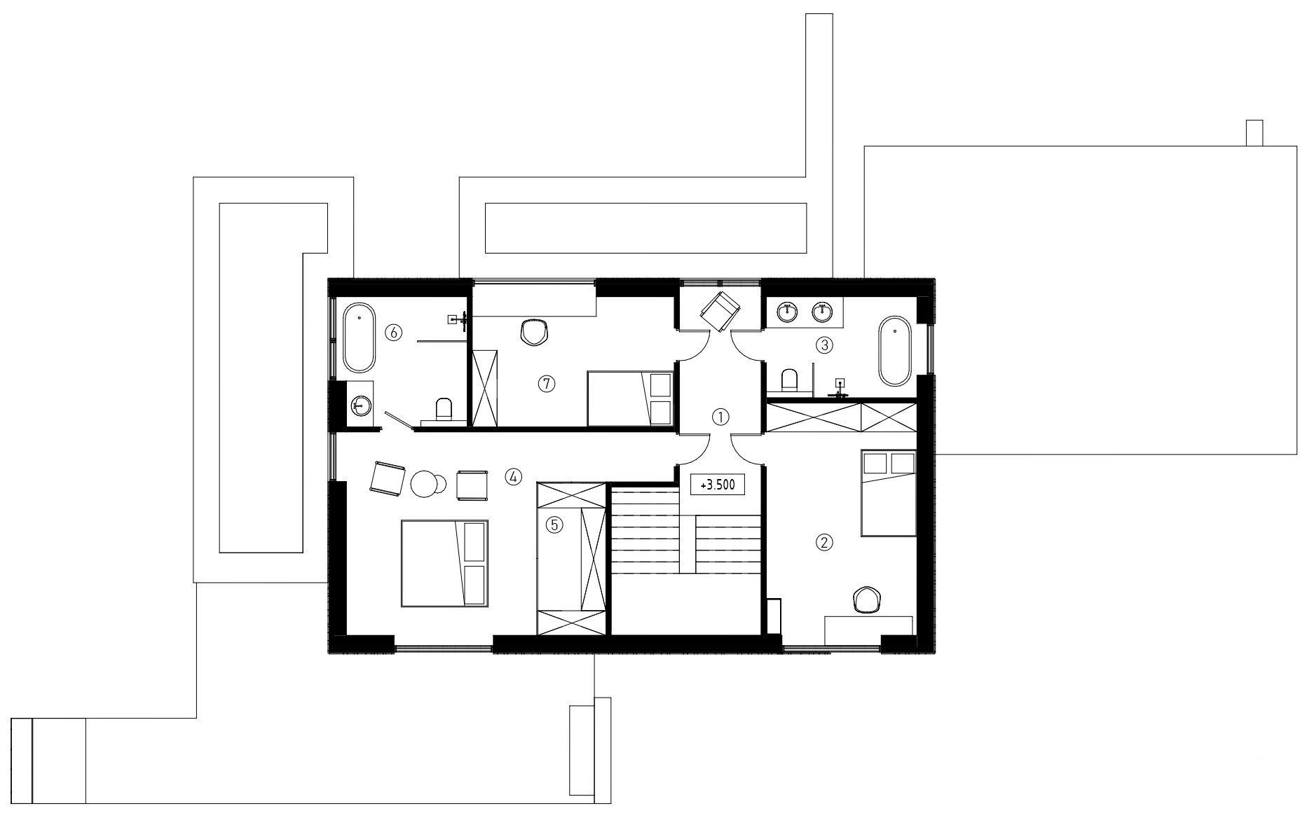
2nd floor plan

2nd floor plan
Plan details


Like this project?

Get an individual consultation with our architect and find out the price for your project


Our projects

Interested in our full portfolio? Click below to view all of our completed projects.

Book A Consultation
And we will answer any questions you have