RAUBICHI HOUSE

Architectural project
  • Studio: ZROBIM architects
  • Area: 480 m2
  • Year: 2025
  • Year of design: 2020

Project Description

This three-story home, built on steep terrain, includes an entirely underground basement, along with a first and second floor. An elevator connects all levels to ensure ease of movement for years to come.

A tree on the property that the client wished to preserve influenced the home’s positioning on the site. The first floor is across the plot to ensure privacy and provide panoramic backyard views.

Due to view corridor limitations from surrounding vegetation and neighboring structures, the second floor was carefully angled to grant the master bedroom a stunning view of the nearby reservoir.

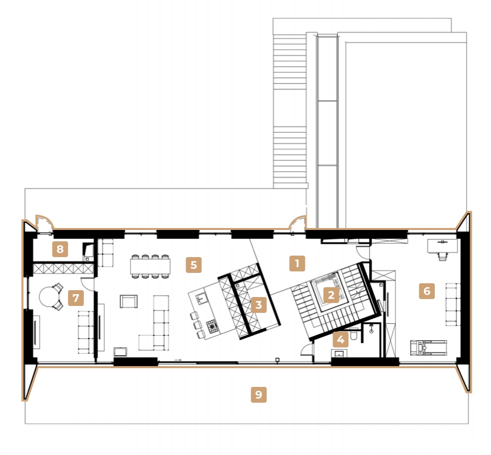
1st floor plan

1st floor plan
Plan details

2nd floor plan

2nd floor plan
Plan details

3rd floor plan

3rd floor plan
Plan details

See an overview of the project

Press publications



Like this project?

Get an individual consultation with our architect and find out the price for your project


Our projects

Interested in our full portfolio? Click below to view all of our completed projects.

Book A Consultation
And we will answer any questions you have