BRIX HOUSE

Architectural project
  • Studio: ZROBIM architects
  • Area: 488 m2
  • Year: 2020
  • BRIX HOUSE
  • BRIX HOUSE

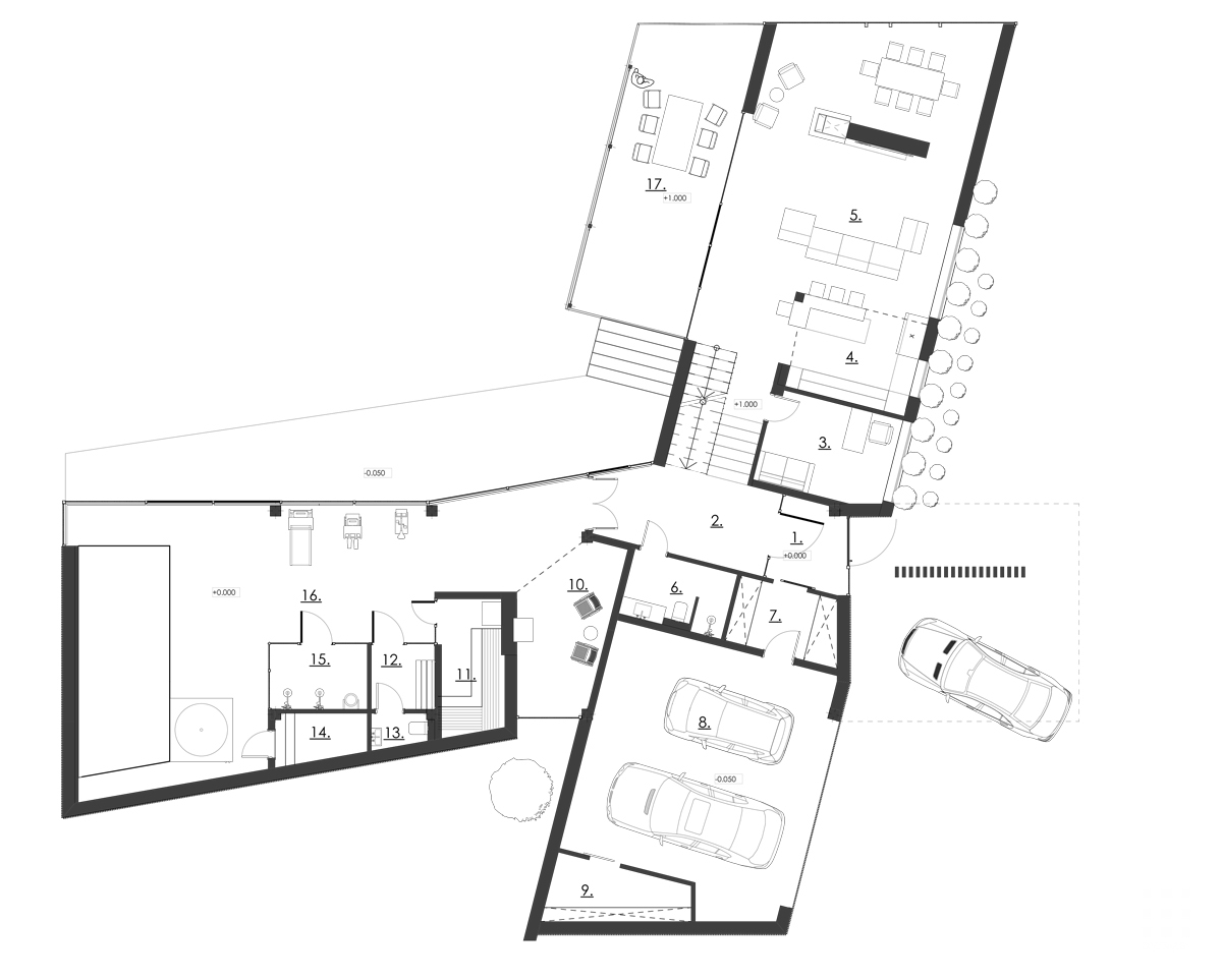
1st floor plan

1st floor plan
Plan details

2nd floor plan

2nd floor plan
Plan details

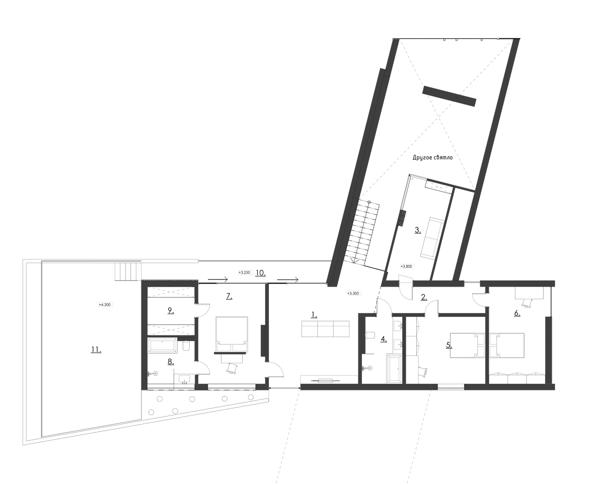
3rd floor plan

3rd floor plan
Plan details

See an overview of the project



Like this project?

Get an individual consultation with our architect and find out the price for your project


Our projects

Interested in our full portfolio? Click below to view all of our completed projects.

Book A Consultation
And we will answer any questions you have