BIOPHILIC HOUSE

Architectural project
  • Studio: ZROBIM architects
  • Area: 343,1 m2
  • Year: 2022

Project Description

Our goal was to create a functionally rich, modern, and aesthetically pleasing home on a small lot while providing an independent guest unit for the client's grandmother to ensure comfort and privacy during her visits.

The final design features three bedrooms, including a master suite with a bathroom and two dressing rooms. The house also includes a private guest apartment for the grandmother, a fitness room, a kitchen separated from the main living space by glass partitions, and a spacious living-dining area. Additionally, the design incorporates a summer kitchen and a terrace on the usable roof of the first floor, maximizing outdoor living space and enhancing the home's overall functionality.

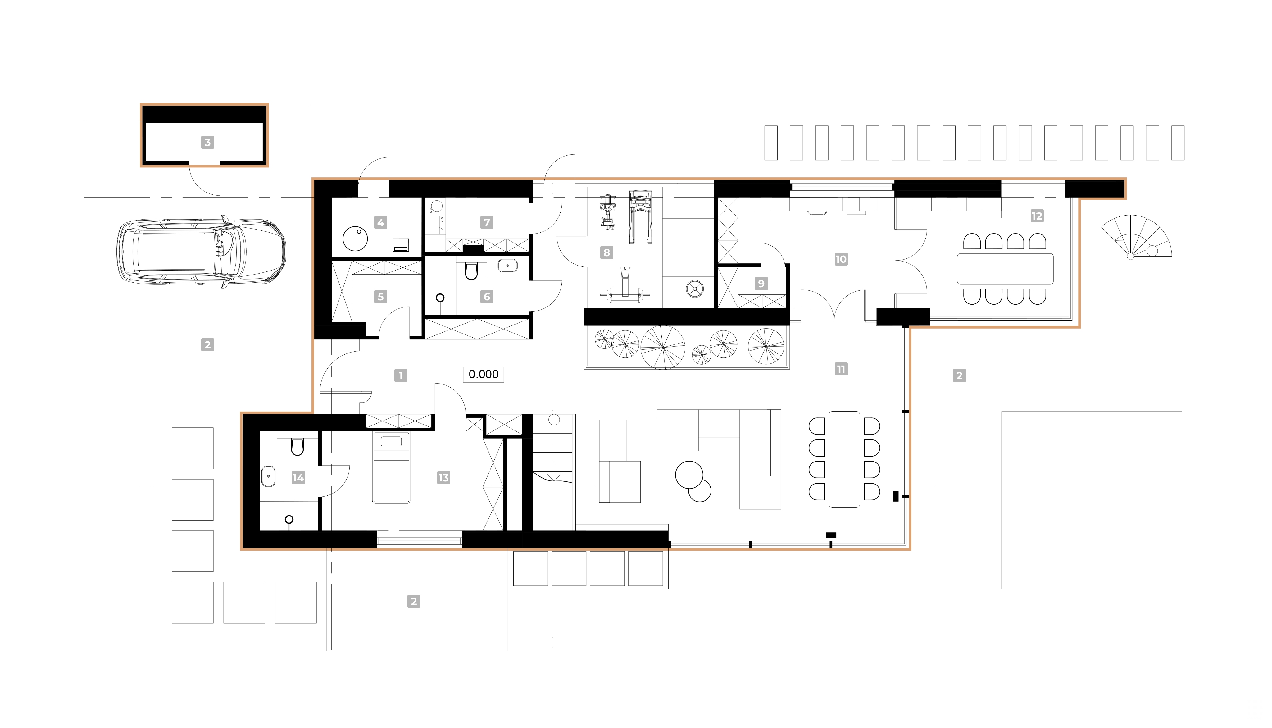
1st floor plan

1st floor plan
Plan details

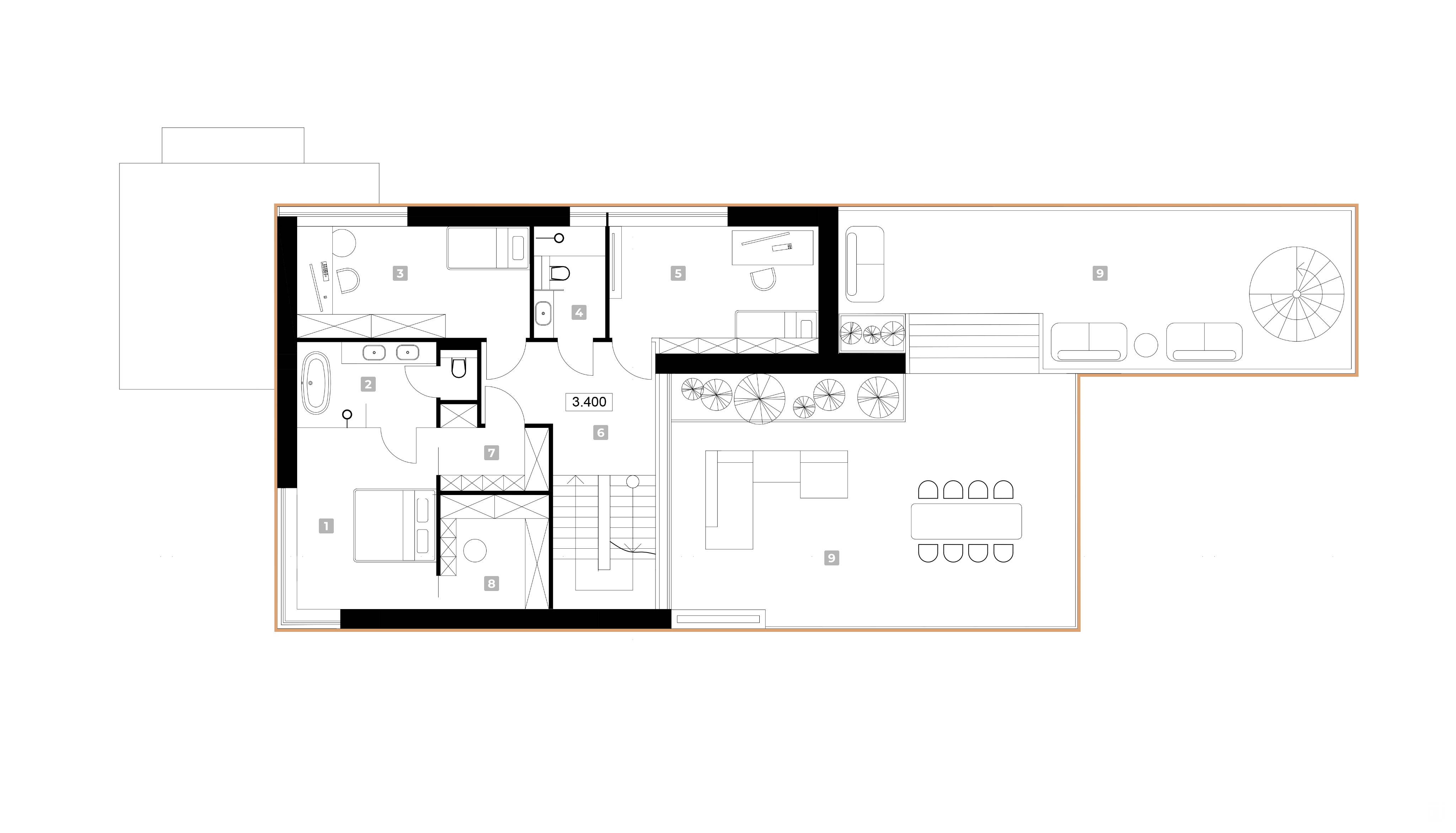
2nd floor plan

2nd floor plan
Plan details


Like this project?

Get an individual consultation with our architect and find out the price for your project


Our projects

Interested in our full portfolio? Click below to view all of our completed projects.

Book A Consultation
And we will answer any questions you have